Котел Beretta FABULA 27E CAI 90 - инструкция пользователя по применению, эксплуатации и установке на русском языке. Мы надеемся, она поможет вам решить возникшие у вас вопросы при эксплуатации техники.
Если остались вопросы, задайте их в комментариях после инструкции.
"Загружаем инструкцию", означает, что нужно подождать пока файл загрузится и можно будет его читать онлайн. Некоторые инструкции очень большие и время их появления зависит от вашей скорости интернета.

37
ВНУТРИ
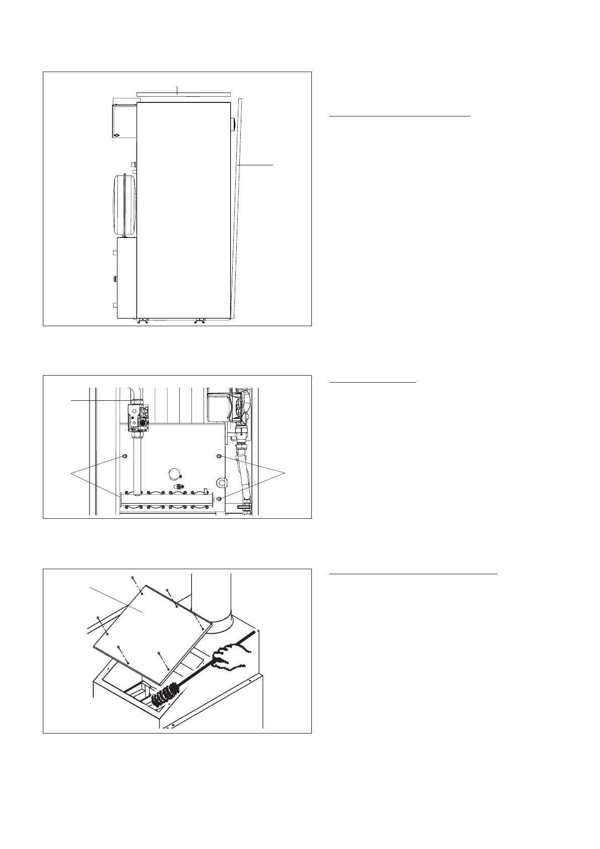
Демонтаж панелей облицовки
- Откройте и снимите верхние панели (1) и
верхнюю панель (2) облицовки
Демонтаж горелки
b
перед демонтажем горелки закройте
газовый кран.
- Отвинтите зажимную гайку (5) и отсое-
дините газовый клапан от линии подво-
дки газа
- Отвинтите гайки (6) и снимите горелку
Демонтаж и чистка теплообменника
b
Перед процедурой чистки теплооб-
менника демонтируйте горелку.
После этого:
- Снимите теплоизоляцию
- Снимите крышку (F) (рис. 6.6) дымовой
камеры
- С помощью ёршика или другого подхо-
дящего инструмента очистите каналы
теплообменника, внутренние поверхно-
сти и горелку.
- Удалите всю грязь после чистки
- Установите обратно крышку (F) и тепло-
изоляцию.
1
2
рис. 6.3
5
6
6
рис. 6.4
F
рис. 6.5