Кондиционеры Timberk CW1 TIM 600 CT2 - инструкция пользователя по применению, эксплуатации и установке на русском языке. Мы надеемся, она поможет вам решить возникшие у вас вопросы при эксплуатации техники.
Если остались вопросы, задайте их в комментариях после инструкции.
"Загружаем инструкцию", означает, что нужно подождать пока файл загрузится и можно будет его читать онлайн. Некоторые инструкции очень большие и время их появления зависит от вашей скорости интернета.

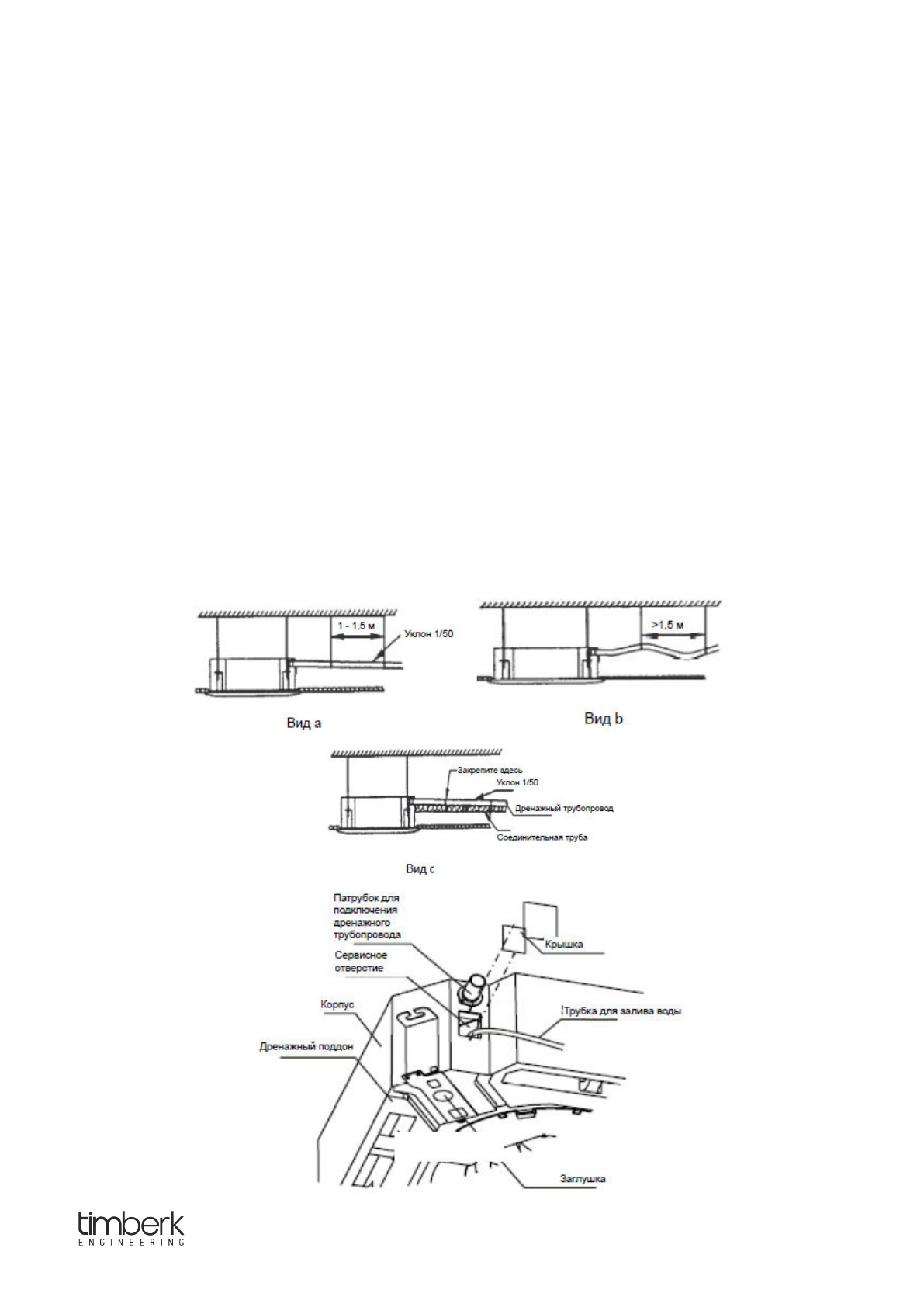
5. Подсоединение дренажного трубопровода.
А. Установка дренажного трубопровода
В качестве дренажного трубопровода допускается использование полиэтиленовой трубы
(внешний
диаметр 37~39 мм, внутренний диаметр 32 мм).
Разместите дренажный трубопровод на уровне, где установлен дренажный насос, закрепите
дренажный трубопровод и выходной патрубок агрегата с помощью хомута.
Внимание:
Аккуратно обращайтесь с дренажным насосом.
Дренажный трубопровод и выходной патрубок агрегата должны быть плотно соединены с
помощью
хомута во избежание протечек и появления воздушных пробок.
Во избежание обратного потока воды в случае остановки агрегата необходимо сделать изгиб
дренажного
трубопровода вниз к выходному патрубку под углом более 1/50 (см. рис. а).
При монтаже трубопровода не следует сильно тянуть за него. Каждые 1~1,5 м необходимо
устанавливать подпорку во избежание прогиба (см. рис. b). При необходимости можно также
использовать дренажный трубопровод с соединительным патрубком для фиксации (см. рис. с). В
случае большой длины трубопровода рекомендуется использовать армированную трубу.
Если выходной дренажный патрубок расположен выше уровня насоса, необходимо стремиться
разместить трубопровод вертикально. Высота подъема должна быть менее
20
мм, в противном
случае при отключении агрегата произойдет перелив воды
.
32
Содержание
- 4 Введение
- 6 Обозначение моделей
- 9 Особенности конструкции
- 10 Технические характеристики
- 14 Уровень звукового давления; Схема испытаний шумовых характеристик фанкойла
- 17 Поиск и устранение неисправностей; Выявление неисправностей; Тестирование и индикация неисправностей
- 18 Компактные кассетные фанкойлы
- 19 Особенности конструкции
- 30 Установка основного корпуса
- 31 Установка панели
- 34 Подсоединение дренажного трубопровода.
- 38 Проводной пульт управления