Кондиционеры Daikin EWYQ-BAWN - инструкция пользователя по применению, эксплуатации и установке на русском языке. Мы надеемся, она поможет вам решить возникшие у вас вопросы при эксплуатации техники.
Если остались вопросы, задайте их в комментариях после инструкции.
"Загружаем инструкцию", означает, что нужно подождать пока файл загрузится и можно будет его читать онлайн. Некоторые инструкции очень большие и время их появления зависит от вашей скорости интернета.

Инструкция
по
монтажу
и эксплуатации
39
EWAQ016~064BAW + EWYQ016~064BAW
Моноблочный
чиллер
для
воды
с воздушным охлаждением
4PW70082-1D – 2015.05
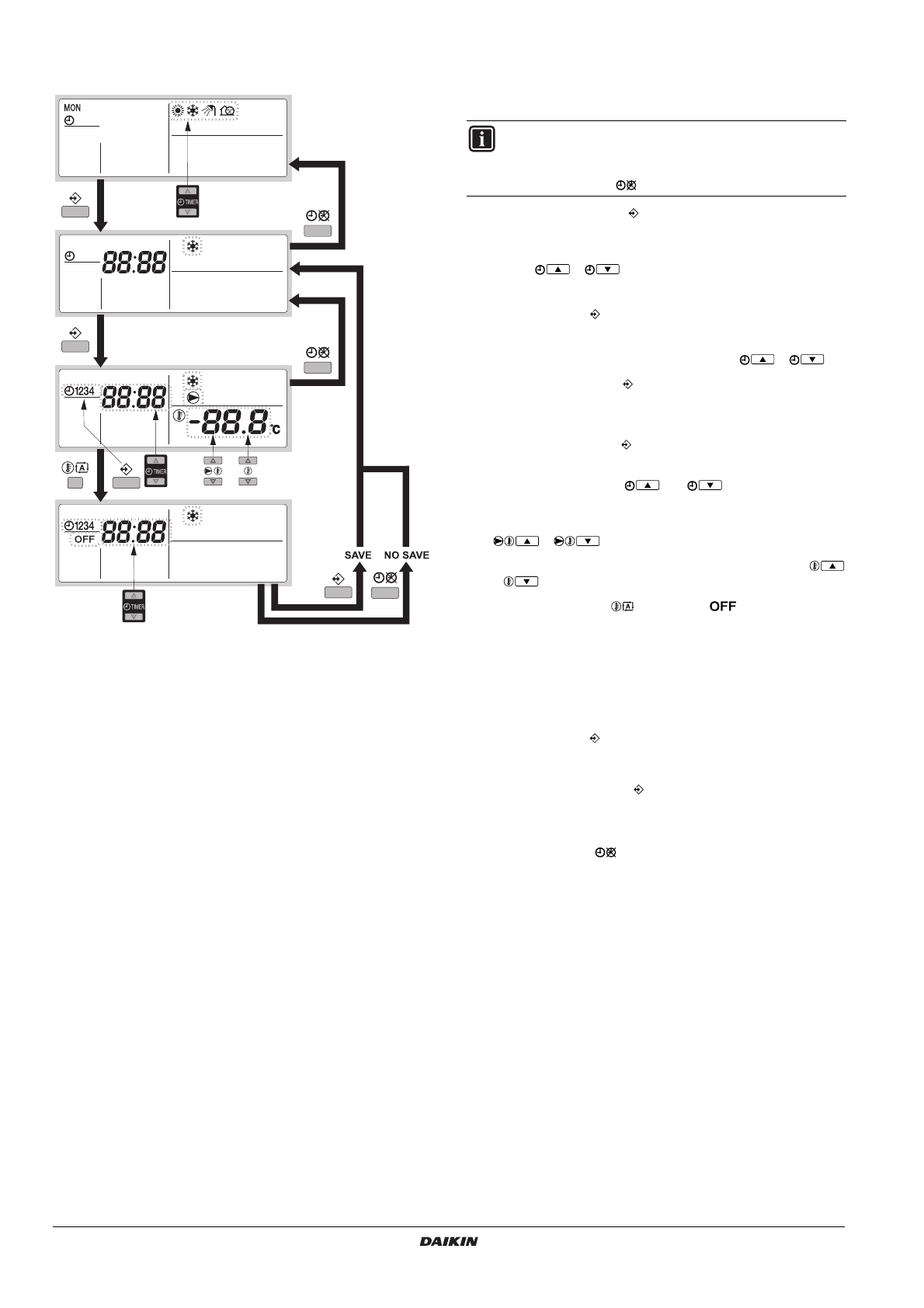
5.9.2.
Программирование
Программирование
помещения
Программирование
охлаждения
помещения
осуществляется
следующим
образом
:
1
Нажмите
кнопку
,
чтобы
войти
в
режим
программирования
/
просмотра
.
2
Выберите
режим
работы
для
программирования
с
помощью
кнопок
и
.
Текущий
режим
начнет
мигать
.
3
Нажмите
кнопку
и
подтвердите
выбранный
режим
.
Время
начнет
мигать
.
4
Просмотрите
действие
с
помощью
кнопок
и
.
5
Удерживайте
кнопку
в
нажатом
положении
в
течение
5
секунд
,
чтобы
запрограммировать
подробные
действия
.
Появится
первое
запрограммированное
действие
.
6
Используйте
кнопку
,
чтобы
выбрать
номер
действия
,
которое
вы
желаете
запрограммировать
или
изменить
.
7
Используйте
кнопки
и
,
чтобы
установить
правильное
время
действия
.
8
Задайте
температуру
воды
на
выходе
с
помощью
кнопок
и
.
9
Задайте
температуру
в
помещении
с
помощью
кнопок
и
.
10
Используйте
кнопку
для
выбора
,
чтобы
выключить
охлаждение
и
пульт
дистанционного
управления
.
11
Для
программирования
других
действий
повторите
шаги
с
до
.
Запрограммировав
все
действия
,
убедитесь
в
том
,
что
дисплей
показывает
самый
большой
номер
действия
их
тех
,
которые
вы
желаете
сохранить
.
12
Нажмите
кнопку
и
удерживайте
ее
в
нажатом
положении
в
течение
5
секунд
,
чтобы
сохранить
запрограммированные
действия
.
Если
нажать
кнопку
,
когда
отображается
действие
номер
3,
то
действия
под
номерами
1, 2
и
3
будут
сохранены
,
а
действие
под
номером
4
удалено
.
Вы
автоматически
вернетесь
к
действию
Нажав
кнопку
несколько
раз
,
вы
,
возвращаясь
к предыдущим
действиям
этой
процедуры
,
в
конце
вернетесь
в
нормальный
рабочий
режим
.
13
Вы
автоматически
вернетесь
к
действию
и
начнете
программировать
следующий
день
.
5 sec
5 sec
ИНФОРМАЦИЯ
Возврат
к
предыдущему
действию
без
сохранения
изменений
во
время
программирования
осуществляется
нажатием
кнопки
.
Содержание
- 6 ГЛАВЛЕНИЕ; Инструкция
- 8 ВЕДЕНИЕ; Малый; Daikin; EW; рисунок
- 12 ПРЕДУПРЕЖДЕНИЕ
- 13 Пример; аблица; RC; ИНФОРМАЦИЯ
- 17 maximum volume; ВНИМАНИЕ
- 18 Минимальная
- 22 PCB
- 25 HAP; Возможные
- 26 ABC; MODE
- 27 Настройка
- 28 Функция
- 29 EWYQ
- 30 Shift value
- 32 UH
- 33 Код
- 34 GWP; Приложение; Передача
- 35 ПРЕДЕЛЕНИЯ
- 36 ОСТОРОЖНО
- 37 Ведущий Ведомый
- 43 Просмотр
- 44 Программирование
- 45 Установка
- 48 Процедура
- 49 Fri
- 53 AE












