Холодильник WEISSGAUFF WRKI 2402 NF - инструкция пользователя по применению, эксплуатации и установке на русском языке. Мы надеемся, она поможет вам решить возникшие у вас вопросы при эксплуатации техники.
Если остались вопросы, задайте их в комментариях после инструкции.
"Загружаем инструкцию", означает, что нужно подождать пока файл загрузится и можно будет его читать онлайн. Некоторые инструкции очень большие и время их появления зависит от вашей скорости интернета.

RU - 44 -
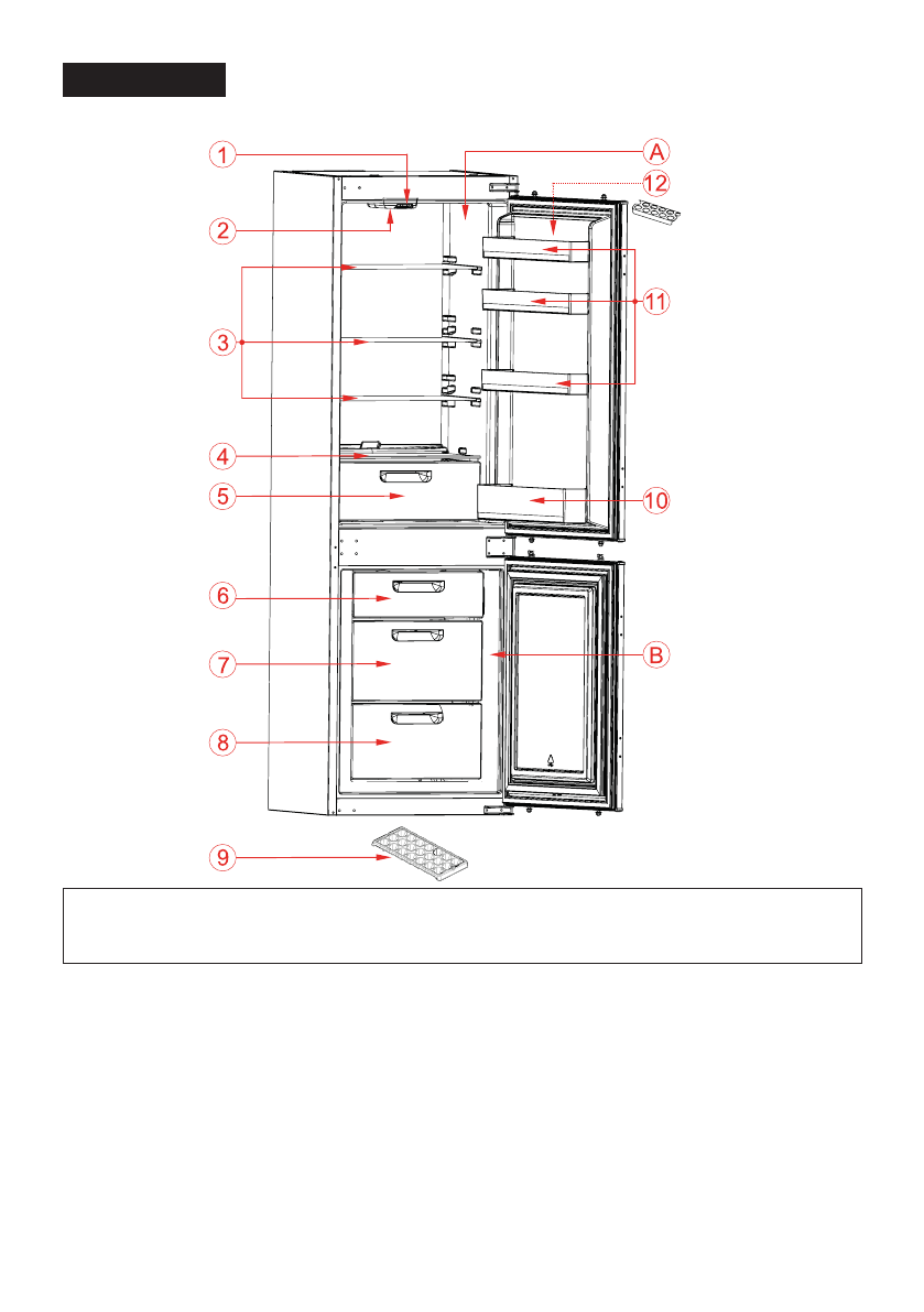
Ниже приведен простой перечень деталей холодильника.
Детали могут отличаться в зависимости от модели.
ДЕТАЛИ И УСТРОЙСТВО ХОЛОДИЛЬНИКА
ЧАСТЬ - 7.
А) Холодильная камера
B) Морозильная камера
1) Ручка термостата
2) Лампа холодильника и плафон
3) Полочки холодильника
4) Полка ящика для фруктов и овощей
5) Ящик для фруктов и овощей
6 Крышка морозильного отделения
7) Выдвижной ящик морозильного
отделения
8) Нижний выдвижной ящик
морозильного отделения
9) Ящичек для льда
10) Полочка для бутылок
11) Дверные полки
12) Держатель яиц
Содержание
- 26 Содержание; РУКОВОДСТВО ПО ЭКСПЛУАТАЦИИ
- 27 Предупреждения общего характера
- 30 Рекомендации по утилизации
- 31 Правила и условия безопасной эксплуатации
- 32 Установка и эксплуатация холодильника
- 33 Перед началом эксплуатации холодильника
- 34 КАК ЭКСПЛУАТИРОВАТЬ УСТРОЙСТВО; Информация о технологии Frost Free
- 35 Холодильная камера
- 36 Аксессуары
- 37 ХРАНЕНИЕ ПРОДУКТОВ В ХОЛОДИЛЬНИКЕ
- 38 Морозильное отделение
- 42 ОЧИСТКА И ОБСЛУЖИВАНИЕ; Размораживание
- 43 Замена лампы освещения; ДОСТАВКА И ИЗМЕНЕНИЕ МЕСТА УСТАНОВКИ
- 44 Если продукты в холодильнике недостаточно охлаждаются:
- 45 Рекомендации; Советы по энергосбережению; Информация о соответствии требованиям
- 46 ДЕТАЛИ И УСТРОЙСТВО ХОЛОДИЛЬНИКА
- 47 Установка
- 50 Перевешивание дверцы; петлю