Страница 3 - Содержание; Охрана окружающей среды/утилизация 32
Содержание Logano G221 – 6 720 801 320 (2011/12) 2 Содержание 1 Пояснения условных обозначений и правила техники безопасности . . . . . . . . . 3 1.1 Пояснения условных обозначений . . . . 3 1.2 Правила техники безопасности . . . . . . 3 2 Информация об оборудовании . . . . . . . . . . 6 2.1 Примене...
Страница 4 - Правила техники безопасности
1 Пояснения условных обозначений и правила техники безопасности Logano G221 – 6 720 801 320 (2011/12) 3 1 Пояснения условных обозначений и правила техники безопасности 1.1 Пояснения условных обозначений Предупреждения Выделенные слова в начале предупреждения обозначают вид и степень тяжести последст...
Страница 5 - Осторожно открывайте двери котла.
1 Пояснения условных обозначений и правила техники безопасности Logano G221 – 6 720 801 320 (2011/12) 4 Монтаж, эксплуатация B Монтаж оборудования должно производить только уполномоченное специализированное предприятие. B Не допускается изменять элементы системы отвода дымовых газов. B Не эксплуатир...
Страница 6 - Никогда не перекрывайте отопительный контур.
1 Пояснения условных обозначений и правила техники безопасности Logano G221 – 6 720 801 320 (2011/12) 5 Воздух для горения / воздух в помещении B Воздух для горения не должен содержать агрессивные вещества (например, галогеносодержащие углеводороды, соединения хлора или фтора). Это позволит предотвр...
Страница 7 - Информация об оборудовании; Применение по назначению; Условия для пуска котла в эксплуатацию; Максимальная температура котла:; Указания по монтажу; Не кладите горючие предметы на котёл.
2 Информация об оборудовании Logano G221 – 6 720 801 320 (2011/12) 6 2 Информация об оборудовании Настоящая инструкция содержит важную информацию о безопасном и правильном монтаже, вводе в эксплуатацию и техническом обслуживании отопительного котла. Эта инструкция предназначена для специалистов, кот...
Страница 8 - Приточный воздух; угроза для жизни из-за; Горючесть строительных материалов; негорючие
2 Информация об оборудовании Logano G221 – 6 720 801 320 (2011/12) 7 B Котёл не должен работать при опасности взрыва, пожара, выделения горючих газов или паров (например, при наклеивании линолеума, PVC и др.) B Учитывайте горючесть строительных материалов. 2.5 Приточный воздух 2.6 Минимальные рассто...
Страница 9 - Описание оборудования; Основные части котла:; Дымовая заслонка
2 Информация об оборудовании Logano G221 – 6 720 801 320 (2011/12) 8 2.8 Описание оборудования Logano G221... - это твердотопливный котёл, вырабатывающий тепло от сжигания кокса. Другие разрешённые виды топлива см. в главе 3 на стр. 15. Основные части котла: • Рычаг дымовой заслонки [1] • Загрузочна...
Страница 10 - Комплект поставки; Дополнительное оборудование; Комплект поставки; Узел; Их можно заказать дополнительно.
2 Информация об оборудовании Logano G221 – 6 720 801 320 (2011/12) 9 2.9 Комплект поставки При получении котла учтите следующее: B При получении груза проверьте целостность упаковки. B Проверьте комплектность поставки. B При утилизации упаковки соблюдайте экологические нормы. Рис. 3 Комплект поставк...
Страница 11 - Заводская табличка; Заводская табличка
2 Информация об оборудовании Logano G221 – 6 720 801 320 (2011/12) 10 2.11 Заводская табличка На заводской табличке приведены следующие данные о котле: Заводская табличка Пояснение Изготовитель Festbrennstoff-Kessel nach EN 303-5 (07/23/EG) Исполнение котла Ser._Nr. x xxx xxx xxx-xx-xxxx-xxxxxx Сери...
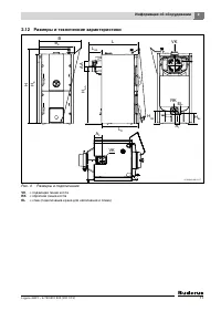
Страница 12 - Размеры и технические характеристики; Размеры и подключения; = подающая линия котла; = обратная линия котла; VK; RK
2 Информация об оборудовании Logano G221 – 6 720 801 320 (2011/12) 11 2.12 Размеры и технические характеристики Рис. 4 Размеры и подключения VK = подающая линия котла RK = обратная линия котла EL = слив (подключение крана для наполнения и слива) B K B H H K H AA AA L AA L L K VK H RK H EL A 1 RK EL ...
Страница 13 - Размеры
2 Информация об оборудовании Logano G221 – 6 720 801 320 (2011/12) 12 Обозначение Единицы измерения Типоразмер котла 20 25 34 40 Высота H мм 1100 Высота котлового блока H K мм 1025 Высота с предохранительным теплообменником – мм 1370 Высота подключения к дымовой трубе H AA мм 855 Высота обратной лин...
Страница 14 - Технические характеристики
2 Информация об оборудовании Logano G221 – 6 720 801 320 (2011/12) 13 2.12.1 Технические характеристики Единицы измерения Типоразмер котла 20 25 34 40 Класс котла по EN 303-5 – 1 Количество секций – 4 5 6 7 Объем воды l 27 31 35 39 Объём топочной камеры l 25,5 34 42,5 51 КПД % от 72 до 78 Температур...
Страница 15 - Потери давления; Гидравлическое сопротивление, мбар; mbar
2 Информация об оборудовании Logano G221 – 6 720 801 320 (2011/12) 14 2.12.2 График гидравлического сопротивления Рис. 5 Потери давления x Объёмный расход Q, m³ /ч y Гидравлическое сопротивление, мбар 0 1 2 3 4 5 6 0 0,5 1 1,5 2 2,5 3 3,5 Q [m³/h] mbar 6 720 643 469-33.1T
Страница 16 - Общие рекомендации по топливу; Максимальная длина поленьев
3 Общие рекомендации по топливу Logano G221 – 6 720 801 320 (2011/12) 15 3 Общие рекомендации по топливу Основным топливом для котла является кокс – сорт орех 1 (20 – 40 мм). Разрешаются также следующие виды топлива (пониженная мощность и более короткие интервалы проведения техобслуживания): • камен...
Страница 17 - Транспортировка и установка; Транспортировка; Транспортировка грузовыми тележками; Подъём котла краном; Крановая проушина
4 Транспортировка и установка Logano G221 – 6 720 801 320 (2011/12) 16 4 Транспортировка и установка 4.1 Транспортировка Котёл можно перемещать краном или грузовой тележкой. B Снимите облицовку. Транспортировка грузовыми тележками B Перевезите груз в помещение установки котла. Подъём котла краном B ...
Страница 18 - Установка котла; Минимальные расстояния от стен; Расстояния от стен; Фундамент или несгораемое основание; угроза жизни от взрыва и; Размер; Горючие материалы
4 Транспортировка и установка Logano G221 – 6 720 801 320 (2011/12) 17 4.2 Установка котла 4.2.1 Требования к помещению установки оборудования 4.2.2 Минимальные расстояния от стен При установке котла по возможности соблюдайте рекомендуемые расстояния от стен. При уменьшении этих расстояний будет зат...
Страница 19 - Поднимите котёл со специального поддона.
4 Транспортировка и установка Logano G221 – 6 720 801 320 (2011/12) 18 Установка и выравнивание котла B Отсоедините и удалите транспортировочные ленты специального поддона. B Поднимите котёл со специального поддона. B Установите котёл на подготовленный фундамент. B При необходимости выровняйте котёл...
Страница 20 - Монтаж; Монтаж регулятора горения; Откройте загрузочную дверцу.; Монтаж облицовки; Монтаж кронштейнов; Рис. 10 Установка передней траверсы; Монтаж тяги в левой стенке котла; Наверните ручку на тягу.
5 Монтаж Logano G221 – 6 720 801 320 (2011/12) 19 5 Монтаж 5.1 Монтаж регулятора горения B Откройте загрузочную дверцу. B Установите регулятор горения с уплотнением в муфту 3/4“ так, чтобы отверстие для конуса (метка) находилось спереди. Рис. 9 Монтаж регулятора горения 1 Заглушка 3/4" 2 Метка 3...
Страница 21 - Рис. 12 Монтаж боковых стенок; Установка верхней крышки котла; Рис. 13 Установка крышки котла и
5 Монтаж Logano G221 – 6 720 801 320 (2011/12) 20 5.2.3 Монтаж боковых стенок Порядок монтажа левой и правой стенок одинаковый. B Навесьте боковые стенки [1] с вложенной теплоизоляцией [3] на фиксирующие штифты кронштейнов [2]. B Выровняйте боковые стенки по передней стороне и закрепите гайками с ша...
Страница 22 - Установите регулятор давления при 30; Соединение тяги с дымовой заслонкой
5 Монтаж Logano G221 – 6 720 801 320 (2011/12) 21 5.2.5 Соединение регулятора горения с воздушной заслонкой B Установите регулятор давления при 30 °C на красную полоску. B Вставьте конус [1] под красной меткой в регулятор давления. B Вставьте шестигранную тягу [2] в отверстие стопорного винта.Подсое...
Страница 23 - Рис. 18 Установка задней панели; Задняя панель; Установка передней панели; Рис. 19 Установка передней панели; Передняя панель; Снимите переднюю панель.; Штифт шарнирного кронштейна
5 Монтаж Logano G221 – 6 720 801 320 (2011/12) 22 5.2.7 Установка задней панели B Разместите заднюю панель с вложенной теплоизоляцией на штифтах между двумя боковыми стенками. B "Защёлкните" заднюю панель [1] на фиксирующих штифтах. Рис. 18 Установка задней панели 1 Задняя панель 2 Фиксирующ...
Страница 24 - Указания по подаче приточного воздуха
6 Монтаж Logano G221 – 6 720 801 320 (2011/12) 23 6 Монтаж 6.1 Подача приточного воздуха и отвод дымовых газов 6.1.1 Указания по подаче приточного воздуха 6.1.2 Указания по подключению отвода дымовых газов Хорошая тяга в дымовой трубе является основным условием правильной работы котла. Она существен...
Страница 25 - Рис. 21 Расположение ограничителя тяги /; Топливо; номинальной мощности
6 Монтаж Logano G221 – 6 720 801 320 (2011/12) 24 6.1.3 Подсоединение отвода дымовых газов На рис. 21 показано правильное подключение котла к дымовой трубе с регулятором подачи дополнительного воздуха. Рис. 21 Расположение ограничителя тяги / регулятора подачи дополнительного воздуха 1 Оптимальное р...
Страница 26 - Выполнение гидравлических подключений; Подключение системы отопления; Подключите обратную линию к патрубку RK.
6 Монтаж Logano G221 – 6 720 801 320 (2011/12) 25 6.2 Выполнение гидравлических подключений 6.2.1 Подключение системы отопления B Подключите обратную линию к патрубку RK. B Подключите подающую линию к VK. B Установите кран для заполнения и слива воды с уплотнением в резьбовое отверстие EL. Рис. 22 К...
Страница 27 - Рис. 24 Термоманометр
6 Монтаж Logano G221 – 6 720 801 320 (2011/12) 26 6.2.3 Монтаж, выполняемый заказчиком B Смонтируйте другие защитные устройства (например, предохранительный клапан) и дополнительное оборудование (например, бак-накопитель) в соответствии с местными нормами и правилами. 6.3 Заполнение отопительной сис...
Страница 28 - Ввод в эксплуатацию; Создание рабочего давления; Рис. 25 Термоманометр
7 Ввод в эксплуатацию Logano G221 – 6 720 801 320 (2011/12) 27 7 Ввод в эксплуатацию В этой главе разъясняется как выполняется первый пуск отопительной системы. B При проведении пуска в эксплуатацию заполните протокол ( Æ глава 7.8, стр. 31). 7.1 Создание рабочего давления Для пуска отопительной сис...
Страница 29 - Настройка регулятора горения; производится по красной шкале регулятора.; Рис. 27 Заводская табличка
7 Ввод в эксплуатацию Logano G221 – 6 720 801 320 (2011/12) 28 B В процессе заполнения необходимо выпускать воздух из отопительной установки. B Занесите рабочее давление и характеристики воды в инструкцию по эксплуатации. 7.2 Настройка регулятора горения B Установите регулятор давления на красную ме...
Страница 30 - Растапливание котла; Рис. 28 Открытая дымовая заслонка; Дверца топочной камеры
7 Ввод в эксплуатацию Logano G221 – 6 720 801 320 (2011/12) 29 7.4 Растапливание котла B Откройте зольную дверцу. B Выньте оставшиеся принадлежности в зольном ящике. B Откройте дымовую заслонку для увеличения тяги в котле. Рис. 28 Открытая дымовая заслонка B Положите слой бумаги. B Положите на бумаг...
Страница 31 - Энергопотребление; опасность получения
7 Ввод в эксплуатацию Logano G221 – 6 720 801 320 (2011/12) 30 B Чтобы предотвратить потери тепла в дымовой трубе, по возможности в зависимости от тяги прикройте дымовую заслонку ( Æ рис. 31, нижний). Если дымовые газы выходят плохо (недостаточная тяга), то снова откройте дымовую заслонку ( Æ рис. 3...
Страница 32 - Рис. 32 Дозагрузка дров; Проверка термической защиты; Работы при пуске в эксплуатацию; Таб. 12 Протокол пуска в эксплуатацию
7 Ввод в эксплуатацию Logano G221 – 6 720 801 320 (2011/12) 31 Рис. 32 Дозагрузка дров B Закройте загрузочную дверцу [1] и дымовую заслонку ( Æ рис. 31, внизу). 7.7 Проверка термической защиты Устройство термической защиты обеспечивает надежную работу котла при сбоях в отопительной системе. В этом с...
Страница 33 - Прекращение топки котла; Тщательно очистите отопительную систему при; Временное прекращение эксплуатации котла; Очистите зольную камеру.; Действия в аварийной ситуации; Упаковка; возможно повреждение
8 Прекращение топки котла Logano G221 – 6 720 801 320 (2011/12) 32 8 Прекращение топки котла B Тщательно очистите отопительную систему при прекращении эксплуатации на длительный срок (например, в конце отопительного периода), так как наличие влаги в золе может привести к коррозии. B Защитите отопите...
Страница 34 - Чистка и техническое обслуживание; Периодичность чистки котла; Таб. 13 Периодичность чистки котла
10 Чистка и техническое обслуживание Logano G221 – 6 720 801 320 (2011/12) 33 10 Чистка и техническое обслуживание B Предложите потребителю заключить договор на ежегодное техническое обслуживание. Работы, которые должны быть включены в этот договор, перечислены в протоколе контрольного осмотра и тех...
Страница 35 - Очистите загрузочную и зольную дверцы.; Зольный ящик; Осторожно снимите крышку люка.; Крепёжная вставка
10 Чистка и техническое обслуживание Logano G221 – 6 720 801 320 (2011/12) 34 10.1.1 Чистка топочной и зольной камеры B Очистите загрузочную и зольную дверцы. B Очистите щёткой газоотводящие каналы от золы. B Очистите щёткой дверцу топочной камеры от золы. B Сметите остатки продуктов горения в зольн...
Страница 36 - Проверка рабочего давления; Рис. 36 Термоманометр; Проверка термической защиты
10 Чистка и техническое обслуживание Logano G221 – 6 720 801 320 (2011/12) 35 10.2 Проверка рабочего давления B Проверьте рабочее давление. Если давление в отопительной системе опускается ниже 1 бар (ниже красной стрелки), то нужно долить воду. Рис. 36 Термоманометр B Добавьте воды, чтобы давление с...
Страница 37 - Протокол контрольного осмотра и технического обслуживания
10 Чистка и техническое обслуживание Logano G221 – 6 720 801 320 (2011/12) 36 10.5 Протокол контрольного осмотра и технического обслуживания Протокол контрольного осмотра и технического обслуживания можно использовать как образец для копирования. B Подпишите протокол проведенного осмотра и поставьте...
Страница 38 - Неисправности и их устранение; Неисправность
11 Неисправности и их устранение Logano G221 – 6 720 801 320 (2011/12) 37 11 Неисправности и их устранение При ремонте используйте только оригинальные запчасти фирмы Buderus. Неисправность Причина Устранение Низкая мощность котла. Низкая теплотворная способность используемого топлива, влажность топл...
Страница 39 - Алфавитный указатель
Алфавитный указатель Logano G221 – 6 720 801 320 (2011/12) 38 Алфавитный указатель А Авария ............................................................... 32 Б Бойлер, отслуживший свой срок ....................... 32 В Вид древесины .................................................. 15 Воздух для г...