Страница 2 - Содержание; 5 Контрольные осмотры и техническое
Содержание Logamax U072 – 6720813751 (2015/02) 2 Содержание 1 Пояснения условных обозначений и указания по безопасности . . . . . . . . . . . . . . . . . . . . . . . . . . . . . . . . . . . . . . . . 3 1.1 Пояснения условных обозначений . . . . . . . . . . . . . . . 3 1.2 Общие указания по технике б...
Страница 3 - Пояснения условных обозначений; Указания для целевой группы
Содержание Logamax U072 – 6720813751 (2015/02) 3 1 Пояснения условных обозначений и указания по безопасности 1.1 Пояснения условных обозначений 1.2 Общие указания по технике безопасности H Указания для целевой группы Эта инструкция предназначена для специалистов по монтажу газового, водопроводного, ...
Страница 4 - Информация об изделии; Комплект поставки; Таб. 1 Данные допуска; Идентификация изделия; Данные допуска
2 Информация об изделии Logamax U072 – 6720813751 (2015/02) 4 ▶ Не закрывайте и не уменьшайте отверстия приточной и вытяжной вентиляции в дверях, окнах и стенах. ▶ Также обеспечьте достаточную подачу воздуха для горения при монтаже теплогенераторов в помещениях, где уже установлено другое оборудован...
Страница 5 - Обзор типов; - двухконтурные котлы для отопления и приготовления; Размеры и минимальные расстояния; Таб. 3 Размер К в зависимости от толщины стены S и диаметра
2 Информация об изделии Logamax U072 – 6720813751 (2015/02) 5 2.4 Обзор типов U072-..K - двухконтурные котлы для отопления и приготовления горячей воды, работающие по проточному принципу. U072-.. - котлы для отопления и приготовления горячей воды с насосом отопительного контура и 3-ходовым клапаном ...
Страница 6 - Таб. 4 Расстояние А в зависимости от подсоединения к; Узел отвода дымовых газов; Раздельное подключение труб Ø 80/80 мм
2 Информация об изделии Logamax U072 – 6720813751 (2015/02) 6 Таб. 4 Расстояние А в зависимости от подсоединения к горизонтальной трубе отвода дымовых газов Таб. 5 Расстояние В в зависимости от подсоединения к вертикальной трубе отвода дымовых газов Узел отвода дымовых газов A [мм] Ø 60/100 мм Колен...
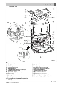
Страница 7 - Конструкция котла
2 Информация об изделии Logamax U072 – 6720813751 (2015/02) 7 2.6 Конструкция котла Рис. 3 [1] Расширительный бак [2] Вентилятор [3] Камера сгорания [4] Горелка атмосферного типа [5] Запальный электрод [6] Предохранительный клапан (отопительный контур) [7] Автоматический воздухоотводчик [8] Насос си...
Страница 8 - Рекомендации по монтажу
3 Инструкции Logamax U072 – 6720813751 (2015/02) 8 3 Инструкции Выполняйте следующие нормы и правила:• Строительные нормы• Требования предприятия газоснабжения• EnEG (закон об экономии энергии) • EnEV (Положение об эффективной теплоизоляции и энергосберегающем оборудовании зданий) • Правила для коте...
Страница 9 - Вертикальный отвод дымовых газов B; Рис. 5 Вертикальный отвод дымовых газов B; Плохое горение без дроссельной диафрагмы.; при отводе дымовых газов B; Ступень
4 Отвод дымовых газов Logamax U072 – 6720813751 (2015/02) 9 4.3.1 Горизонтальный отвод дымовых газов B 22 УВЕДОМЛЕНИЕ: Плохое горение без дроссельной диафрагмы. ▶ Установите дроссельную диафрагму (изделие 7 736 995 123) при отводе дымовых газов B 22 и мощности котла < 35 кВт. ▶ Установите дроссел...
Страница 10 - Отвод дымовых газов
4 Отвод дымовых газов Logamax U072 – 6720813751 (2015/02) 10 4.3.3 Горизонтальный отвод дымовых газов с концентрической трубой C 12 , C 42 Рис. 6 Горизонтальный отвод дымовых газов с концентрической трубой C 12 Колено 90 ° на котле учтено в максимальной длине.• каждое дополнительное колено 90 ° соот...
Страница 11 - Длина трубы воздуха для сжигания топлива
4 Отвод дымовых газов Logamax U072 – 6720813751 (2015/02) 11 4.3.5 Вертикальный отвод дымовых газов через концентрическую трубу C 32 Рис. 8 Вертикальный отвод дымовых газов через концентрическую трубу C 32 • каждое дополнительное колено 90 ° соответствует 1 м.• каждое дополнительное колено 45 ° соот...
Страница 12 - Таб. 12 Вертикальный отвод дымовых газов через отдельную трубу; Монтаж; Условия; Рис. 11 Требования к воде для заполнения и подпитки, котлы < 50
5 Монтаж Logamax U072 – 6720813751 (2015/02) 12 • каждое дополнительное колено 90 ° на трубе отвода дымовых газов соответствует 2 м. • каждое дополнительное колено 45 ° на трубе отвода дымовых газов соответствует 1 м. • каждое дополнительное колено 90 ° на трубе подачи воздуха для горения соответств...
Страница 13 - Таб. 14 Допустимые средства защиты от коррозии; Проверка объёма расширительного бака; Рис. 12 Характеристики расширительного бака; Монтаж котла; Обозначение; IV
5 Монтаж Logamax U072 – 6720813751 (2015/02) 13 филиал производителя за консультациями по этому вопросу. Это касается также каскадных установок. • Если фактически необходимое количество воды для заполнения системы больше, чем количество воды за срок службы ( рис. 11), то требуется водоподготовка. ...
Страница 14 - Рис. 13 Монтажный шаблон; Подвеска котла; Рис. 14 Подвешивание котла на крюки; Откиньте блок управления вниз; Рис. 15 Откиньте блок управления вниз; Монтаж трубопроводов
5 Монтаж Logamax U072 – 6720813751 (2015/02) 14 ▶ Если требуется, сделайте проём в стене для отвода дымовых газов. Рис. 13 Монтажный шаблон ▶ Удалите монтажный шаблон. Подвеска котла ▶ Удалите упаковку, при этом учитывайте указания на упаковке.▶ Проверьте указанную на заводской табличке страну назна...
Страница 15 - Рис. 16 Крепление переходника; Пуск в эксплуатацию без воды повредит котёл!
5 Монтаж Logamax U072 – 6720813751 (2015/02) 15 ▶ Установите переходник и закрепите прилагаемыми винтами. Рис. 16 Крепление переходника [1] Винты [2] Труба отвода дымовых газов / переходник [3] Уплотнение Рис. 17 При отводе дымовых газов B 22 и мощности котла < 35 кВт: установите переходник и дро...
Страница 16 - Рис. 19 Подключения газопровода и водяного контура; Заполнение отопительного контура и удаление воздуха; Электрический монтаж; Общие указания; Угроза для жизни от удара электрическим током!; Подключение котла; Рис. 20 Зоны безопасности
6 Электрический монтаж Logamax U072 – 6720813751 (2015/02) 16 Рис. 19 Подключения газопровода и водяного контура (дополнительная комплектация) [1] Кран подающей линии отопления 1) [2] Котлы U072-..: подающая линия бака,котлыU072-..K: горячая вода [3] Газовый кран 1) [4] Котлы U072-..: обратная линия...
Страница 17 - Таб. 15 Сетевой провод; Подключения к блоку управления; Остатки проводов могут повредить блок управления.; Рис. 23 Подключение датчика температуры бака-водонагревателя; Подключение сигнала тревоги; Рис. 24 Подключение сигнала тревоги; Зона подключения
6 Электрический монтаж Logamax U072 – 6720813751 (2015/02) 17 Подключение вне зон безопасности 1 и 2:▶ Подсоедините подходящую сетевую вилку к проводу.▶ Вставьте вилку в розетку с заземляющим контактом. -или- ▶ Подсоедините сетевой провод к распределителю. Подключение в зоне безопасности 1 и 2:▶ Отс...
Страница 18 - Пуск котла; Панель управления; Рис. 26 Показания на дисплее; Включение котла; Первое включение / установка ступени вентилятора; Установка температуры подающей линии; Таб. 16 Максимальная температура подающей линии; Пример использования
7 Пуск котла Logamax U072 – 6720813751 (2015/02) 18 7 Пуск котла УВЕДОМЛЕНИЕ: Пуск в эксплуатацию без воды повредит котёл! ▶ Котёл можно эксплуатировать только заполненным водой. Перед пуском в эксплуатацию ▶ Проверьте давление заполнения отопительной системы.▶ Убедитесь, что открыты все сервисные к...
Страница 19 - Выключение котла; Применение защиты от замерзания
8 Выключение котла Logamax U072 – 6720813751 (2015/02) 19 7.5 Настройка приготовления горячей воды 7.5.1 Установка температуры горячей воды Температуру горячей воды можно задать от 35 °C до 60 °C. ▶ Нажимайте кнопку " – ", пока на дисплее не появится знак . ▶ Нажмите кнопку "ok". На ...
Страница 20 - Защита от блокировки; Опасность ошпаривания горячей водой!; Насос системы отопления; Рис. 29 Характеристики насоса отопительного контура (мощность
9 Термическая дезинфекция (только U072-..) Logamax U072 – 6720813751 (2015/02) 20 ▶ Активируйте летний режим ( глава 7.8) или оставьте котёл в режиме ожидания (Stand-by) ( глава 7.3). УВЕДОМЛЕНИЕ: Опасность замерзания отопительной системы. В летнем режиме/режиме ожидания работает защита от замер...
Страница 21 - Настройки в сервисном меню; Работа с сервисным меню; Вызов меню; Обзор сервисных функций; выделенными
11 Настройки в сервисном меню Logamax U072 – 6720813751 (2015/02) 21 11 Настройки в сервисном меню Сервисное меню позволяет удобно настраивать и контролировать различные функции котла. Оно включает:• Меню 1• Меню 2 • Меню 3 11.1 Работа с сервисным меню Вызов меню Описание приведено перед обзорными т...
Страница 24 - Переналадка на другой вид газа; Таб. 20 Переналадка на другой вид газа; Настройка газа (природный и сжиженный газ); Рис. 31 Подвешенный на раме блок управления для; Метод регулировки давления на форсунках
12 Переналадка на другой вид газа Logamax U072 – 6720813751 (2015/02) 24 11.2.4 Сброс параметров на первоначальные значения Для сброса всех параметров в сервисных меню 1 и 2 на первоначальные значения: ▶ Во втором сервисном меню вызовите функцию 2.8E и сохраните значение 1 . Котёл перезапустится с п...
Страница 25 - Замеры дымовых газов; Регулировка мощности котла; Рис. 33 Штуцер для измерения дымовых газов и штуцер для; Вид газа
13 Замеры дымовых газов Logamax U072 – 6720813751 (2015/02) 25 ▶ Отверните уплотнительный винт штуцера измерения давления на форсунках ( рис.32, [1]) и подсоедините U-образный манометр. ▶ Снимите крышку ( рис.32, [3]).▶ Значение «max» давления (мбар) на форсунках приведено в таб. на стр. 42. Установ...
Страница 26 - Охрана окружающей среды и утилизация
14 Охрана окружающей среды и утилизация Logamax U072 – 6720813751 (2015/02) 26 ▶ Вызовите сервисную функцию 1.2F и установите режим работы 0 ( глава 11.2, со стр. 21) или нажмите кнопку "Назад". ▶ Выключите котёл.▶ Удалите зонд дымовых газов.▶ Установите заглушку. 13.3 Измерение СО в дымов...
Страница 27 - Описание различных этапов работ; Вызов последней сохранённой неисправности; Рис. 35 Демонтаж предохранительного клапана (отопительного
15 Контрольные осмотры и техническое обслуживание Logamax U072 – 6720813751 (2015/02) 27 H Вспомогательные средства для контрольных осмотров и технического обслуживания • Требуются следующие измерительные приборы: – Электронный прибор для измерения содержания CO 2 , O 2 , CO и температуры дымовых га...
Страница 28 - Контрольные осмотры и техническое обслуживание; Рис. 36 Проверка фильтра в трубе холодной воды; Не прочищайте форсунки металлическими
15 Контрольные осмотры и техническое обслуживание Logamax U072 – 6720813751 (2015/02) 28 Рис. 36 Проверка фильтра в трубе холодной воды 15.2.4 Чистка поддона горелки, форсунок и горелки ▶ Отверните пять винтов и снимите крышку камеры сгорания вниз и вперед. Рис. 37 Открытие горелки [1] Винты [2] Кры...
Страница 29 - Рис. 40 Демонтаж датчика температуры горячей воды; Показания манометра
15 Контрольные осмотры и техническое обслуживание Logamax U072 – 6720813751 (2015/02) 29 15.2.7 Регулирование рабочего давления в отопительной системе Таб. 22 ▶ Если стрелка находится ниже 1 бар (при холодной отопительной системе): доливайте воду пока стрелка не встанет между 1 и 2 бар бар. ▶ Если д...
Страница 30 - Показания на дисплее; Таб. 24 Показания на дисплее; Показываемое значение
16 Показания на дисплее Logamax U072 – 6720813751 (2015/02) 30 15.3 Контрольный список работ для осмотров и технического обслуживания Таб. 23 16 Показания на дисплее На дисплее может быть показано следующее (таб. 24 и 25): Таб. 24 Показания на дисплее Таб. 25 Специальные показания дисплея Дата 1 Выз...
Страница 31 - Неисправности; Устранение неисправностей; Возможен удар электрическим током!; Неисправности, показываемые на дисплее; Дисплей
17 Неисправности Logamax U072 – 6720813751 (2015/02) 31 17 Неисправности 17.1 Устранение неисправностей OПACHO: Возможность взрыва! ▶ Закройте газовый кран перед выполнением работ с газовым оборудованием. ▶ После завершения работ проверьте отсутствие утечек в газовом оборудовании. OПACHO: Возможно о...
Страница 33 - Неисправности, не показываемые на дисплее; Таб. 27 Неисправности без индикации на дисплее; Неисправности котла
17 Неисправности Logamax U072 – 6720813751 (2015/02) 33 17.3 Неисправности, не показываемые на дисплее Таб. 27 Неисправности без индикации на дисплее Неисправности котла Устранение Шум потока ▶ Правильно установите частоту вращения насоса на клеммной коробке. Разогрев длится слишком долго ▶ Правильн...
Страница 34 - ГАРАНТИЙНЫЙ ТАЛОН; FD
18 ГАРАНТИЙНЫЙ ТАЛОН Logamax U072 – 6720813751 (2015/02) 34 18 ГАРАНТИЙНЫЙ ТАЛОН Тип оборудования: Заводской и Серийный номер: FD Название, адрес, телефон фирмы продавца: (место для печати) Дата продажи: Фамилия и подпись Продавца: Адрес установки оборудования:Телефон: Данные мастера, осуществившего...
Страница 35 - Гарантийные обязательства; оборудования конечному Потребителю.
18 ГАРАНТИЙНЫЙ ТАЛОН Logamax U072 – 6720813751 (2015/02) 35 Гарантийные обязательства 1. Гарантия предоставляется на четко определенные характеристики товара или отсутствие недостатков согласно соответствующему уровню техники. Основанием для гарантийного обслуживания является гарантийный талон. Прет...
Страница 36 - Приложение; Протокол пуска котла в эксплуатацию; В интересах Вашей безопасности; для каждого котла заполнить отдельный протокол!
19 Приложение Logamax U072 – 6720813751 (2015/02) 36 19 Приложение 19.1 Протокол пуска котла в эксплуатацию 7. При предъявлении претензии к качеству товара потребитель обязан обеспечить доступ к оборудованию для проведения проверки его качества. Не реже 1 раза в год оборудование должно проходить тех...
Страница 39 - Электрическая схема
19 Приложение Logamax U072 – 6720813751 (2015/02) 39 19.2 Электрическая схема Рис. 42 [1] Запальный трансформатор [2] Трансформатор [3] Предохранители [4] Соединительный провод 230 В [5] Диагностический разъём [6] Подключение датчика наружной температуры [7] Подключение Open Therm или регулятора On/...
Страница 40 - Технические характеристики; Единицы
19 Приложение Logamax U072 – 6720813751 (2015/02) 40 19.3 Технические характеристики U072-12 K U072-18/U072-18K Единицы измерения Природный газ Сжиженный газ Природный газ Сжиженный газ Макс. номинальная тепловая мощность (P макс ) 80/ 60 °C кВт 12,0 12,0 18,0 18,0 Макс. номинальная тепловая нагрузк...
Страница 41 - Таб. 29 Технические характеристики
19 Приложение Logamax U072 – 6720813751 (2015/02) 41 Таб. 29 Технические характеристики Номинальный объём (котловой воды) л 1,6 1,6 1,6 1,6 Вес (без упаковки) (U072-.. / U072-..K) кг – /29 – /29 28/29 28/29 Размеры Ш × В × Г мм 400 × 700 × 29 9 400 × 700 × 299 400 × 700 × 299 400 × 700 × 299 1) Режи...
Страница 42 - Таб. 30 Технические характеристики; Характеристики датчиков; Таб. 31 Датчик температуры подающей линии
19 Приложение Logamax U072 – 6720813751 (2015/02) 42 Таб. 30 Технические характеристики 19.4 Характеристики датчиков 19.4.1 Датчик температуры подающей линии Таб. 31 Датчик температуры подающей линии 19.4.2 Датчик температуры горячей воды Таб. 32 Датчик температуры горячей воды 19.5 Параметры настро...
Страница 45 - Алфавитный указатель; Испытание на герметичность системы отвода дымовых газов. . . 25
Алфавитный указатель Logamax U072 – 6720813751 (2015/02) 45 Алфавитный указатель 1 1.2F . . . . . . . . . . . . . . . . . . . . . . . . . . . . . . . . . . . . . . . . . . . . . . . . . . . . 211.6.A . . . . . . . . . . . . . . . . . . . . . . . . . . . . . . . . . . . . . . . . . . . . . . . . . . ...
Страница 46 - Сервисные функции
Алфавитный указатель Logamax U072 – 6720813751 (2015/02) 46 Сервисные функции выбор и настройка . . . . . . . . . . . . . . . . . . . . . . . . . . . . . . . . . . . . 21Последняя сохранённая неисправность (сервисная функция 1.6A) . . . . . . . . . . . . . . . . . . . . . . . . . . . . . . . . . . ....