Страница 3 - Содержание
www.huter.su DY 5000L(LX), DY 6500L(LX) 3 Содержание : 1. Введение 4 2. Назначение 4 3. Технические характеристики 4 4. Состав изделия , элементы управления 8 5. Устройство и работа изделия 10 6. Средства измерения и индикации , инструмент и принадлежности 14 7. Маркировка 15 8. Упаковка 15 9. Техни...
Страница 5 - Генератор; Основные
www.huter.su DY 5000L(LX), DY 6500L(LX) 5 Генератор с воздушным охлаждением двигателя DY5000L(LX), DY6500L(LX). Основные параметры . Номинальное напряжение , В 220 Исполнение по напряжению ( холостой ход ), В 228—234 Исполнение по напряжению ( полная нагрузка ), В 212—218 Номинальная частота перемен...
Страница 6 - составе; Тип; LX
DY 5000L(LX), DY 6500L(LX) 6 Параметры двигателей 182F / 188F В составе генератора . Тип и конструкция двигателей 182F / 188F Способ охлаждения Воздушный принудительный Конструкция камеры сгорания Полусферическая Расположение цилиндра Наклонное Конструкция и расположение клапана Верхнее ( над цилинд...
Страница 7 - Параметры; Принадлежности
www.huter.su DY 5000L(LX), DY 6500L(LX) 7 Параметры двигателей 182F / 188F В составе генератора . Принадлежности Тип свечи зажигания NHSP LD F6TC, Esso, PSB6E2, Bosch W6DC, NGK BP5ES, Champion N11YC, Denso W16EX-U, AC Delco 44XLS, Motor Craft AG24C, Beru 14-7DU, Россия А 17 Д и аналогичные Система п...
Страница 9 - Наименование
www.huter.su DY 5000L(LX), DY 6500L(LX) 9 Параметры двигателей 182F / 188F В составе генератора . № Наименование Назначение 1 Бензиновый кран Манипуляция подачей топлива 2 Ручка стартера Пуск двигателя 3 Высоковольтный провод Электропитание свечи зажигания 4 Глушитель Снижение уровня шума выхлопа , ...
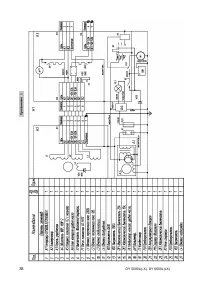
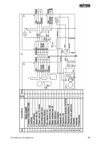
Страница 10 - Внимание
DY 5000L(LX), DY 6500L(LX) 10 5. Устройство и работа изделия 5.1 Устройство и конструктивные особенности . − Изделие относится к классу генераторных установок переменного тока , приводимых в движение поршневыми двигателями внутреннего сгорания общего назначения . Генераторная установка состоит из по...
Страница 15 - Маркировка
www.huter.su DY 5000L(LX), DY 6500L(LX) 15 В этом случае следует устранить причину перегрузки и нажать кнопку или клавишу сброса соответствующего автоматического выключателя после его остывания . 6.3 Измерение напряжения цепи постоянного тока может быть произведено с помощью универсальных измеритель...
Страница 25 - Комплектность; Гарантийные
www.huter.su DY 5000L(LX), DY 6500L(LX) 25 температуре воздуха от 0 до +40° С и влажности воздуха до 80%. Изделие должно храниться в заводской упаковке . Гарантийный срок хранения масляных уплотнений не менее 6- ти месяцев при нормальных условиях хранения и транспортировки . 12. Комплектность Наимен...
Страница 29 - Гарантийный; ter»; ФИО
www.huter.su DY 5000L(LX), DY 6500L(LX) 29 Гарантийный талон Электрогенератор «H ű ter» Зав № _______________________ Модель ______________________ Дата продажи _________________ Наименование и адрес торговой организации _____________________________________________________ признан годным для эксплу...
Страница 30 - ter» — 1
DY 5000L(LX), DY 6500L(LX) 30 Дорогой покупатель ! Мы выражаем вам огромную признательность за выбор электрогенератора «H ű ter». Он прослужит вам долго . Мы сделали все возможное , чтобы данное изделие удовлетворяло Вашим запросам , а качество соответствовало лучшим мировым образцам . Гарантийный с...
Страница 32 - Наработка
DY 5000L(LX), DY 6500L(LX) 32 16. Движение изделия при эксплуатации . Наработка , ч ( мес .) Дата на ч ала экспл уат ации Дата за вер ш ения экспл уат ации С нач ала экспл уат ации После послед не го ремо нта Прич ина за верше ния экспл уат ации Подп ись лиц а , прово д ивш его уста новку на экспл у...
Страница 35 - Учёт
www.huter.su DY 5000L(LX), DY 6500L(LX) 35 Учёт технического обслуживания ( ТО ). Лист 3 Графы отметки о прове дении 1) Проверка свечи зажигания ( п . 9.3) 2) Замена свечи зажигания , очистка искрог асителя ( п . 9.3) 3) Обсл уживание воздушно го фил ьт ра ( п . 9. 4) 4) Обсл уживание топл ивных фил...
Страница 37 - Внеплановые
www.huter.su DY 5000L(LX), DY 6500L(LX) 37 Внеплановые работы при эксплуатации В данном формуляре учитываются все внеплановые работы и ремонты , а также периодические ТО , проводимые на изделиях , снятых с авторизованного технического обслуживания или законсервированных для хранения . Должность , фа...
Страница 41 - Для
www.huter.su DY 5000L(LX), DY 6500L(LX) 41 Для заметок : _____________________________________________________________ _____________________________________________________________ _____________________________________________________________ _________________________________________________________...