Страница 3 - www.huter.su; Содержание
www.huter.su HT 1000L 3 Содержание : 1. Введение 4 2. Назначение 4 3. Технические характеристики 4 4. Состав изделия , элементы управления 8 5. Устройство и работа изделия 10 6. Средства измерения и индикации , инструмент 13 7. Маркировка 13 8. Упаковка 14 9. Техническое обслуживание , консервация 1...
Страница 5 - Генератор; Основные
www.huter.su HT 1000L 5 Генератор с воздушным охлаждением двигателя HT1000L. Основные параметры . Номинальное напряжение , В 220 Исполнение по напряжению ( холостой ход ), В 228—234 Исполнение по напряжению ( полная нагрузка ), В 212—218 Номинальная частота переменного тока , Гц 50 Частота холостого...
Страница 6 - составе; Тип
HT 1000L 6 Параметры двигателей 152F В составе генератора . Тип и конструкция двигателей 152F Способ охлаждения Воздушный принудительный Конструкция камеры сгорания Полусферическая Расположение цилиндра Наклонное Конструкция и расположение клапана Верхнее ( над цилиндром ) Расположение распредвала Н...
Страница 7 - Параметры; Принадлежности
www.huter.su HT 1000L 7 Параметры двигателей 152F В составе генератора . Принадлежности Тип свечи зажигания NHSP LD F6TC, Esso, PSB6E2, Bosch W6DC, NGK BP5ES, Champion N11YC, Denso W16EX-U, AC Delco 44XLS, Motor Craft AG24C, Beru 14-7DU, Россия А 17 Д и аналогичные Система питания Карбюратор RXH124 ...
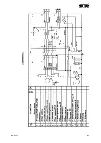
Страница 9 - Перечень
www.huter.su HT 1000L 9 Перечень составных частей изделия № Наименование Назначение 1 Бензиновый кран Манипуляция подачей топлива 2 Ручка стартера Пуск двигателя 3 Высоковольтный провод Электропитание свечи зажигания 4 Свеча зажигания Воспламенение свечи зажигания 5 Глушитель Снижение уровня шума вы...
Страница 11 - Внимание
www.huter.su HT 1000L 11 5.4 Заземление корпуса генератора . − При установке генератора следует подключить к резьбовой клемме ( поз . 18 рис . 1) проводник заземляющего устройства , удовлетворяющего требованиям раздела « Обеспечение требований безопасности ». 5.5 Заправка топливом . − В качестве топ...
Страница 23 - Требования; Наименование
www.huter.su HT 1000L 23 11. Требования к транспортировке и хранению 11.1 Транспортировка . При погрузке и транспортировке следует полностью исключить возможность механических повреждений и любых перемещений изделий , положение упаковки должно соответствовать предупредительным обозначениям . 11.2 Хр...
Страница 27 - Единая
www.huter.su HT 1000L 27 14. Единая служба технической поддержки Электронная почта : servis@huter.su Сайт : www.huter.su Адрес Вашего сервисного центра : ___________________________________________________________ ___________________________________________________________ __________________________...
Страница 28 - ter»; ФИО
HT 1000L 28 Гарантийный талон Электрогенератор «H ű ter» Зав № _______________________ Модель ______________________ Дата продажи _________________ Наименование и адрес торговой организации _____________________________________________________ признан годным для эксплуатации . М . П . Я покупатель /...
Страница 29 - ter» — 1; Гарантийные
www.huter.su HT 1000L 29 Дорогой покупатель ! Мы выражаем вам огромную признательность за выбор электрогенератора «H ű ter». Он прослужит вам долго . Мы сделали все возможное , чтобы данное изделие удовлетворяло Вашим запросам , а качество соответствовало лучшим мировым образцам . Гарантийный срок э...
Страница 31 - Движение; Наработка
www.huter.su HT 1000L 31 16. Движение изделия при эксплуатации . Наработка , ч ( мес .) Дата на ч ала экспл уат ации Дата за вер ш ения экспл уат ации С нач ала экспл уат ации После послед не го ремо нта Прич ина за верше ния экспл уат ации Подп ись лиц а , прово д ивш его уста новку на экспл уат ац...
Страница 35 - Учёт
www.huter.su HT 1000L 35 Учёт технического обслуживания ( ТО ). Лист 4 Графы отметки о прове дении 1) Проверка свечи зажигания ( п . 9.3) 2) Замена свечи зажигания , очистка искрог асителя ( п . 9.3) 3) Обсл уживание воздушно го фил ьт ра ( п . 9. 4) 4) Обсл уживание топл ивных фильтров ( п . 9.5) 5...