Страница 4 - Введение; Особое внимание следует уделить разделу «Обеспечение; Назначение
1. Введение Конструкция непрерывно дорабатывается, поэтому приобре - тенное вами изделие может отличаться от описываемого в данном паспорте. Внимание! Изделие является источником повышенной пожароопасности, взрывоопасности, электроопасности. Комплексные полное техническое обслуживание и ремонт в объ...
Страница 5 - Генератор с воздушным охлаждением двигателя; Основные параметры
www.huter.su Генератор с воздушным охлаждением двигателя DY2500L(LX)), DY3000L(LX), DY4000L(LX) Основные параметры Номинальное напряжение, В * 220 Исполнение по напряжению (холостой ход), В 228—234 Исполнение по напряжению (полная нагрузка), В 212—218 Номинальная частота переменного тока, Гц 50 Част...
Страница 6 - Параметры двигателей; В составе генератора; LX
Параметры двигателей 168F, 168F-2, 170F В составе генератора Способ охлаждения Воздушный принудительный Конструкция камеры сгорания Полусферическая Расположение цилиндра Наклонное Конструкция и расположение клапана Верхнее (над цилиндром) Расположение распредвала Нижнее (в картере) Основные параметр...
Страница 7 - Принадлежности; LD F6; Топливо и смазочное масло
www.huter.su Параметры двигателей 168F, 168F-2, 170F В составе генератора Принадлежности Тип свечи зажигания NHSP LD F6 TC, Esso , PSB 6E 2, Bosch W6 DC, NGK BP 5 ES, Champion N11 YC, Denso W16EX-U , AC Delco 44 XLS, Motor Craft AG24 C, Beru 14-7DU , Россия А17Д и аналогичные Система питания Карбюра...
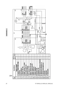
Страница 10 - Устройство и работа изделия
5. Устройство и работа изделия 5.1 Устройство и конструктивные особенности. − Изделие относится к классу генераторных установок переменного тока, приводимых в движение поршневыми двигателями внутреннего сгорания общего назначения. Генераторная установка состоит из поршневого двигателя внутреннего сг...
Страница 15 - Средства измерения и индикации, инструмент и
www.huter.su 6. Средства измерения и индикации, инструмент и принадлежности. 6.1 Наличие и величина напряжения переменного тока индици - руется и измеряется вольтметром (поз. 11 рис. 1). 6.2 Причиной отсутствия напряжения при работающем генераторе может служить срабатывание автоматических выключател...
Страница 22 - Расчет нагрузки; Пример расчета нагрузки:
Наработка часов Календарный период, месяцев П ере д ка ж ды м пуск ом 10 (об кат ка) , од ин ра з 50 100 500 3 6 1 Уровень масла (9.2) 2 Проверка свечи зажигания (9.3) 3 Замена свечи зажигания, очистка сетки искрогасителя (9.3) 4 Воздушный фильтр (9.4) 5 Топливные фильтры (9.5) ...
Страница 24 - Обеспечение требований безопасности.
Потребитель Вид потребителя Мощность пусковая (пиковая) Мощность номинальная (рабочая) Лампы накаливания Ом. 75 Лазерный принтер Инд. 950 350 Утюг Ом. 1200 Заточной станок Инд. 2400 1200 Циркулярная пила Инд. 2300 1400 Кофеварка Ом. 1500 Компьютер (17" монитор) Ом. 800 Морозильная камера Инд. 10...
Страница 27 - Требования к транспортировке и хранению.
www.huter.su 6. В качестве мер дополнительной безопасности рекомендуется применять вилки и удлинители с УЗО (АВДТ) на 30 мА. 7. Во время работы генератора его клемма защитного заземления должна быть постоянно подключена к заземлителю, любого из указанных в п. 10.3.3 типов. 8. Не подключать генератор...
Страница 28 - Гарантийные обязательства.
13. Комплектность. Наименование Кол - во ед. Электрогенератор 1 Вилка разъёма 1 Эксплуатационная документация Паспорт (руководство по эксплуатации) 1 Инструменты и принадлежности поставляются с изделием при наличии согласованных с поставщиком требований заказчика Комплект инструментов и принадлежнос...
Страница 30 - ter
14.8 В том случае, если неисправность изделия вызвана нарушением условий его эксплуатации или Покупателем нарушены условия, предусмотренные п. 13.5, Продавец с согласия Покупателя вправе осуществить ремонт изделия за отдельную плату. 15. Единая служба технической поддержки Электронная почта: HU serv...
Страница 31 - Гарантийные обязательства
www.huter.su Гарантийный срок эксплуатации электрогенератора « Hű ter » — 1 год. Моментом начала эксплуатации считается дата, указанная Организацией - продавцом в гарантийном талоне. Гарантийные обязательства 1. Изготовитель гарантирует работу электрогенератора на протяжении одного года со дня прода...
Страница 33 - Свидетельство о приемке; Hű
www.huter.su Гарантийный ремонт не производится при нарушении гарантийной пломбы Данный документ не ограничивает определенные законом права потребителя, но дополняет и уточняет оговоренные законом обязательства, предполагающие соглашения сторон Свидетельство о приемке Электрогенератор « Hű ter » ___...
Страница 41 - Внеплановые работы при эксплуатации; В данном формуляре учитываются все внеплановые работы и
www.huter.su 19. Внеплановые работы при эксплуатации В данном формуляре учитываются все внеплановые работы и ремонты, а также периодические ТО, проводимые на изделиях, снятых с авторизованного технического обслуживания или законсервированных для хранения. Д ат а Наименование работы и причина ее выпо...