Graco Reactor E-XP2i_repair- инструкции и руководства
Graco Reactor E-XP2i_repair- инструкции пользователя по применению, эксплуатации и установке на русском языке читайте онлайн в формате pdf
Инструкции:
Инструкция по эксплуатации Graco Reactor E-XP2i_repair
Краткое содержание
Contents Предупреждения ................................................. .. 3Важная информация о двухкомпонентных материалах ............................................... 7 Модели дозаторов ................................................ . 9Системы ..................................................
Предупреждения Предупреждения Приведенные ниже предупреждения относятся к настройке, эксплуатации, заземлению, техническому обслуживанию и ремонту данного оборудования. Символ восклицательного знака служит предупреждением общего характера, а знак опасности указывает на возможность ее возникновения п...
Важная информация о двухкомпонентных материалах Важная информация о двухкомпонентных материалах Меры предосторожности при работе с изоцианатами При распылении и дозировании материалов, содержащих изоцианаты, образуются потенциально вредные туманы, пары и взвешенные твердые частицы. Для ознакомления ...
Важная информация о двухкомпонентных материалах Пенопласт на основе смолы с пенообразующими агентами 245 fa Некоторые пенообразующие вещества, не будучи под давлением, вспениваются при температурах выше 33 °C (90 °F), особенно при перемешивании. Для снижения риска вспенивания минимизируйте предварит...
Модели дозаторов Модели дозаторов Серия E-30i Комплектация. Деталь Доступ ный доп олнит ельный ток при 240 В, 60 Гц* Усилит- ельный нагреват- ель (4000 Вт) Воздушный компрессор (5000 Вт) Напряже- ние (фазы) Полная нагрузка системы † (Вт) Макс. расход, фунто- в/мин. (кг/мин.) Приблиз- ительны...
Модели дозаторов Соответствие стандартам Модель Соответствие стандартам. 259079 Соответствие стандарту ANSI/UL 73 Сертифицировано по стандарту CAN/CSA C22.2 № 68 259080259081 Соответствие стандарту ANSI/UL 499 Сертифицировано по стандарту CAN/CSA C22.2 № 88 10 3A2926F
Системы Системы Шланг с подогревом Пистолет Деталь Максимальное рабочее давление жидкости, фунты на кв. дюйм (МПа, бары) Дозатор Комплект модуля удаленного дисплея 15 м (50 футов) 3 м (10 футов) Модель Деталь AP9079 2000 (13.8, 138) 259079 24K240 246050 Fusion™ AP 246101 AP9080 2000 (13.8, 138) 2590...
Дополнительные принадлежности Системы с воздушным компрессором Шланг с подогревом Пистолет Деталь Максимальное рабочее давление жидкости, фунты на кв. дюйм (МПа, бары) Дозатор Воздушный компрессор Комплект модуля удаленного дисплея 15 м (50 футов) 3 м (10 футов) Модель Деталь AP9089 2000 (13.8, 138)...
Руководства , входящие в комплект поставки Руководства, входящие в комплект поставки В комплект поставки дозатора Reactor входят указанные далее руководства. В этих документах содержатся подробные сведения об оборудовании. Руководства также можно найти на веб-сайте www.graco.com. Вручную Описание 3A...
Поиск и устранение неисправностей Поиск и устранение неисправностей Коды ошибок и устранение неисправностей Note Коды ошибок хранятся в журнале ошибок и отображаются на экране отчетов об ошибках и экране устранения неисправностей на расширенном модуле дисплея (ADM). Существует три вида ошибок, котор...
Поиск и устранение неисправностей Система Перед выполнением процедуры поиска и устранения неисправностей выполните указанные ниже действия. 1. Снимите давление. См. раздел Процедура снятия давления . 2. Переведите главный выключатель питания в положение выключения.3. Дождитесь охлаждения оборудовани...
Поиск и устранение неисправностей Система подачи охлаждающей жидкости Проблема Причина Решение Контур охлаждения дозатора Воздух попал в охлаждающую жидкость теплообменника. См. раздел Заправка контура охлаждения дозатора . Шланги подачи охлаждающей жидкости между контуром охлаждения дозатора и конт...
Поиск и устранение неисправностей Система нагрева шланга Перед выполнением процедуры поиска и устранения неисправностей выполните указанные ниже действия. 1. Снимите давление. См. раздел Процедура снятия давления . 2. Переведите главный выключатель питания в положение выключения.3. Дождитесь охлажде...
Поиск и устранение неисправностей Усилительный нагреватель Перед выполнением процедуры поиска и устранения неисправностей выполните указанные ниже действия. 1. Снимите давление. См. раздел Процедура снятия давления . 2. Переведите главный выключатель питания в положение выключения.3. Дождитесь охлаж...
Поиск и устранение неисправностей Диагностика центра приложения нагрузки Справочную информацию см. в разделах Замена плавких предохранителей и реле и Центр приложения нагрузки, page 140 . Светодиодные индикаторы на центре приложения нагрузки служат удобными инструментами диагностики при поиске и уст...
Поиск и устранение неисправностей Двигатель Проблема Причина Решение Убедитесь в том, что напряжение аккумулятора составляет 11–13 В пост. тока. Аккумулятор разряжен или неисправен. Зарядите или замените аккумулятор при необходимости. См. раздел Замена аккумулятора . Ослабленные или неисправные соед...
Ремонт Ремонт Ремонт оборудования требует доступа к деталям, неправильное обращение с которыми может привести к поражению электрическим током или иной серьезной травме. Перед ремонтом обязательно отключите электропитание оборудования. Подготовка к ремонту УВЕДОМЛЕНИЕ Правильное выполнение процедур п...
Ремонт Промывка Во избежание пожара и взрыва промывайте оборудование только в хорошо вентилируемом месте. Не распыляйте горючие жидкости. Не включайте нагреватели при промывке горючими растворителями. • Прежде чем подавать новую жидкость, очистите насос от старой жидкости с помощью совместимого раст...
Ремонт Промывка сетчатого впускного фильтра Впускные фильтры отфильтровывают частицы, которые могут засорить впускные обратные клапаны насоса. Ежедневно проверяйте сетки в рамках процедуры запуска и при необходимости осуществляйте очистку. Изоцианат может кристаллизироваться в результате поглощения ...
Ремонт Окончание работы УВЕДОМЛЕНИЕ Правильное выполнение процедур подготовки, запуска и выключения системы определяет степень надежности электрооборудования. Описанные ниже процедуры позволяют обеспечить стабильность напряжения. Невыполнение этих процедур приводит к колебаниям напряжения, в результ...
Ремонт Слив охлаждающей жидкости Во избежание ожогов не выполняйте обслуживание системы охлаждения, пока она не остынет до температуры окружающей среды. Сливайте охлаждающую жидкость из контуров охлаждения двигателя и дозатора раз в год или при необходимости отсоединения линий подачи охлаждающей жид...
Ремонт 5. Для опорожнения контура охлаждения двигателя выполните указанные ниже действия. a. Снимите крышку (RC) контура охлаждения двигателя. См. рис. 5 . b. Снимите защитные устройства двигателя, как показано на рисунке. Для доступа к дренажному клапану обоприте защитные устройства о двигатель. Др...
Ремонт 6. Посмотрите в смотровое окошко (SG) и проверьте отсутствие пузырьков воздуха в потоке охлаждающей жидкости. Убедитесь в наличии потока охлаждающей жидкости. 7. Осмотрите контуры охлаждения и убедитесь в отсутствии утечек из фитингов или клапанов. 8. Когда охлаждающая жидкость достигает рабо...
Ремонт Замена смазки насоса Ежедневно проверяйте пригодность смазки насоса для подачи изоцианатов. Заменяйте смазку при ее переходе в гелеобразную консистенцию, потемнении цвета или ее разбавлении изоцианатом.Гель формируется в результате впитывания смазкой влаги. Частота замены зависит от окружающе...
Ремонт Извлечение насоса В ходе работы шток и шатун насоса находятся в движении. Движущие части могут вызвать серьезную травму при защемлении конечности и привести к ее ампутации. При работе не подносите руки и пальцы к шатуну. Note Инструкции по ремонту насоса приведены в руководстве 309577. 1. Для...
Ремонт Установка насоса Note Действия 1–5 относятся к насосу В. Для подворного подсоединения насоса А перейдите к действию 6. 1. Убедитесь в том, что контргайка (G) навинчена на насос плоской стороной вверх. Ввинчивайте насос в корпус подшипника (M), пока отверстия под штифт не совместятся. Протолкн...
Ремонт Установка 1. Обильно нанесите смазку на шайбы (307, 308, 318), все шестерни и внутреннюю поверхность корпуса привода (302). 2. Установите одну бронзовую шайбу (308) в корпус привода, затем установите стальные шайбы (307, 318), как показано на рисунке. 3. Установите вторую бронзовую шайбу (308...
Ремонт Установка щеток УВЕДОМЛЕНИЕ При установке щеток тщательно выполняйте описанные действия. При неправильной установке детали будут повреждены и непригодны к эксплуатации. Note Установите щетки с парой тонких проводов в верхней части электродвигателя. Вставьте наконечник провода в разъем. 1. Уст...
Ремонт Ремонт модуля прерывателя цепи 1. См. раздел Подготовка к ремонту . 2. С помощью омметра проверьте, замкнута ли цепь каждого прерывателя цепи (слева направо). Если цепь разомкнута, отключите прерыватель цепи, установите в исходное положение и проверьте его снова. Если цепь по-прежнему разомкн...
Ремонт Замена плавких предохранителей и релеЗамена предохранителей и реле центра приложения нагрузки 1. Отсоедините отрицательный провод от отрицательной клеммы аккумулятора. См. раздел Замена аккумулятора . 2. Извлеките неисправное реле или неисправный предохранитель из центра приложения нагрузки (...
Ремонт Замена вентиляторов Во избежание повреждения электрическим током завершите работу системы. Во избежание ожогов не выполняйте обслуживание вентилятора, пока система не остынет до температуры окружающей среды. Замена вентилятора электродвигателя 1. Выполните инструкции раздела Окончание работы ...
Ремонт Замена вентилятора радиатора 1. Выполните инструкции раздела Окончание работы . 2. Извлеките четыре винта (605) и отсоедините кабель питания (РС). 3. Установите новый вентилятор (605) на кронштейн (601) с помощью винтов (605). 601 605 607 PC ti18475a Figure 21 Замена вентилятора электрическог...
Ремонт Ремонт усилительного нагревателяЗамена нагревательного элемента 1. Для остановки насосов нажмите . 2. Выключите зоны нагрева.3. Промойте насос.4. Для длительной остановки насоса подачи компонента А нажмите . 5. Для деактивации системы нажмите . 6. Выключите воздушный компрессор, осушитель воз...
Ремонт Ремонт реле перегрева 1. Выполните инструкции раздела Окончание работы . 2. Дайте усилительному нагревателю остыть.3. Снимите с нагревателя кожух.4. Вскройте гибкую изоляционную трубку на расстоянии примерно 457 мм (18 дюймов) от точки крепления реле перегрева к нагревателю. Убедитесь в том, ...
Ремонт 8. Для проверки напряжения между вторичными выводами трансформатора проведите измерение между клеммами 2 и 4 на прерывателе цепи CB20. В результате этого вы убедитесь в надлежащей работе прерывателя цепи. Модель Вторичное напряжение 94,48 м 90 В пер. тока* 64 м 62 В пер. тока* * Для сетевого ...
Ремонт Замена клапана управления Выполняйте эти инструкции для замены электромагнитной катушки клапана управления, а также для извлечения клапанов управления подачей компонентов А и В или перепускного регулирующего клапана.1. Выполните инструкции раздела Окончание работы . 2. Слейте охлаждающую жидк...
Ремонт Замена циркуляционного насоса Не выполняйте обслуживание системы охлаждения, пока она не остынет до температуры окружающей среды. 1. Выполните инструкции раздела Окончание работы . 2. Выполните инструкции раздела Слив охлаждающей жидкости . 3. Если установлена стенка, мешающая доступу к цирку...
Ремонт Ремонт смотрового окошка и фильтра Во избежание ожогов не выполняйте обслуживание системы охлаждения, пока она не остынет до температуры окружающей среды. 1. Опорожните контур охлаждения дозатора. См. раздел Слив охлаждающей жидкости . 2. Ослабьте зажим шланга (37) и извлеките шланг подачи ох...
Ремонт Извлечение топливного бака 1. Выполните инструкции раздела Окончание работы . 2. Отсоедините линии подачи топлива (38, 39). Во избежание откачивания держите линии в вертикальном положении или установите заглушки. 3. Снимите винты (24) и зажимы (30).4. Сдвиньте топливный бак с поддона на сторо...
Ремонт Ремонт жгута с плавкой перемычкой Выполняйте эту процедуру для замены плавких предохранителей внутри жгута с плавкой перемычкой (90). Соединения жгута с плавкой перемычкой и обозначения проводов см. в разделе Электрические схемы, page 131 . 1. Выполните инструкции раздела Завершение работы, p...
Ремонт Ремонт расширенного модуля дисплея (ADM) 1. Ослабьте винт в кронштейне (402). Поднимите кронштейн (402) и извлеките расширенный модуль дисплея (27). 2. Отсоедините кабель CAN (57).3. Проверьте расширенный модуль дисплея на наличие повреждений. При необходимости осуществите замену. ti18516a Fi...
Ремонт Извлечение агрегата Reactor Извлекайте дозатор из поддона только для ремонта теплообменников или клапанов подачи охлаждающей жидкости между дозатором и генератором. Во время извлечения и установки задняя часть дозатора может сместиться с поддона и опорных кронштейнов. Ни в коем случае не извл...
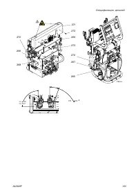
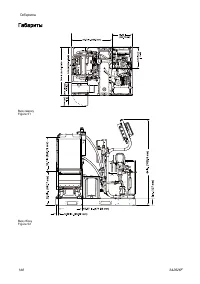
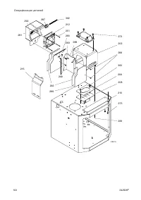
Спецификация деталей Спецификация деталей Системы 259079, E-30i 259080. E-30i с усилительным нагревателем 259081, E-XP2i с усилительным нагревателем Для систем с воздушным компрессором см. 259089, 259090 и 259091, page 97 . ti18533a 3A2926F 89
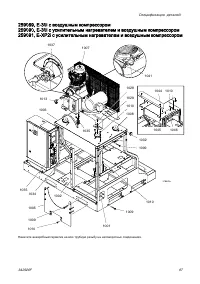
Спецификация деталей Количество Спр. Деталь Описание 259089 259090 259091 259079 Reactor, E-30i 1 259080 Reactor, E-30i с нагревателем 1 1014* 259081 Reactor, E-XP2i с нагревателем 1 * Информацию о деталях см. в руководствах 259079, 259080 и 259081, page 89 . Детали воздушного компрессора Все детали...
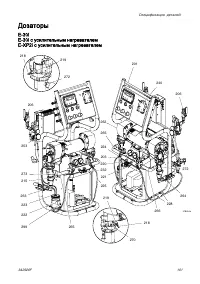
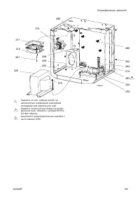
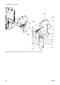
Спецификация деталей Дозаторы E-30i E-30i с усилительным нагревателем E-XP2i с усилительным нагревателем 206 253 273 215 263 223 222 228 228 299 219 218 265 224 203 232 225 221 266 264 272 240 201 265 206 ti18404a 270 220 262 219 218 272 3A2926F 101
Спецификация деталей Комплекты блока впускного отверстия насоса Описание Комплект Комплектация. E-30i, сторона A 24L926 263–1 295 297 E-30i, сторона В 24L927 263–3 295 297 E-XP2i, сторона А 24L928 263–2 295 297 E-XP2i, сторона В 24L929 263–4 295 297 Кол-во. 1 1 1 Полный комплект шлангов подачи охлаж...
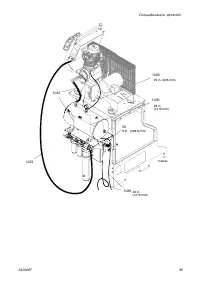
Спецификация деталей Модуль дозатора 24L924, модуль для системы E-30i 24L925, модуль для системы EXP2i 301 308 318 302 305 303 314 314 315 313 311 310 319 326 320 314 312 321 322 306 316 328 316 307 304 308 330 331 327 1 Плоская сторона должна быть обращена вверх. 2 На резьбу нужно нанести масло для...
Спецификация деталей Двухзонный нагреватель жидкости 4,0 кВт 24L936 360 355 356 370 358 351 368 352 359 354 362 361 369 371 353 366 353 372 357 ti18170a 1 Затяните с усилием 163 Н•м (120 футо-фунтов). 2 Затяните с усилием 31 Н•м (23 футо-фунта). 3 Нанесите термопасту. 4 Нанесите трубный герметик и н...
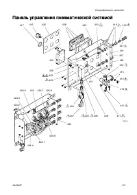
Спецификация деталей Панель управления пневматической системой 424-2 424-3 420 424-4 424-1 424-8 423 424-6 424-7 424-5 401 416 415 419 421 413 412 411 412 422 404 407 426 403 409 417 429 418 418 415 415 418 410 410 405 408 406 402 428 428 432 428 418 427 ti18341a 0 3A2926F 115
Спецификация деталей 1 Нанесите трубный герметик на все резьбовые нешарнирные трубные соединения. 2 Нанесите на резьбовые соединения анаэробный трубный герметик. 3 Затяните с усилием 34 Н●м (25 футо-фунтов +/- 2 футо-фунта) 4 Затяните с усилием 14 Н●м (10 футо-фунтов +/- 2 футо-фунта) 5 Направление ...
Спецификация деталей Жидкостный коллектор 24K382 451 453 462 463 465 465 454 454 467 452 452 456 457 458 458 468 468 455 455 464 464 466 1 1 1 Затяните с усилием 40–44,6 Н●м (355–395 дюйм-фунтов) 2 Нанесите на резьбу герметик (113500). 3 Клапан должен быть закрыт, а рукоятка должна находиться в тако...
Спецификация деталей Электрический блок Электрический блок с подогревом Электрический блок без подогрева 544 562 566 527 528 517 551 565 526 564 558 501 503 506b 525 552 542 537 541 554 549 519 553 516 555 529 508 509 510 531 573 512 502 551 530 567 506d 506c 506a 561 560 550 504 532 556 554 522 551...
Спецификация деталей Дизельный генератор 22 кВт 577 551, 552 556 557 558 558 563 564 565 559 569 570 558 572a 575 576 579 572b 572b 560 ti18176a 582 581 580 585 583 584 587 586 568 1 Затяните с усилием 35,25 Н●м (26 футо-фунтов) 2 Затяните с усилием 20 Н●м (15 футо-фунтов) 3 Затяните с усилием 135,6...
Спецификация деталей Радиатор См. примечания к блоку на следующей странице. 642 633 622 627 605 605 610 612 9 608 9 609 611 634 605 607 625 605 624 605 631 605 606 603 602b 602a 605 604 602c 601 612 630 626 17 617 616 615 615 621 623 618 616 617 614 613 619 632 22 622 620 636 638 625 605 635 640 622...
Спецификация деталей Модули прерывателей цепи 24J728, блок прерывателя цепи на рейке DIN См. раздел Электрические схемы, page 131 . 651 652 653 654 655 656 654 660 660 657 655 675 658 658 676 671 671 652 663 663 662 661 659 674 673 ti18510a Спр. Деталь Описание Ко- л-во 651 125666 РЕЙКА, DIN, 457,2 ...
Спецификация деталей 24J721, трансформатор и модуль прерывателя цепи вентилятора См. раздел Электрические схемы, page 131 . ti18514a Спр. Деталь Описание Ко- л-во 901 514014 РЕЙКА, монтажная 1 902 125667 КЛЕММА, остановка, концевая 2 903 125816 КОНТАКТНАЯ КОЛОДКА, 2-уровневая, 4 проводника 2 904 125...
Спецификация деталей Топливный бак 24K390 751 752 752 754 758 757 755 753 756 Сп- р. Деталь Описание Ко- л-во 751 - БАК, топливный 1 752 125645 ИЗОЛИРУЮЩАЯ ШАЙБА, бак 2 753 125646 ИЗОЛИРУЮЩАЯ ШАЙБА, бак 1 754 125647 ФИТИНГ, всасывающая трубка, зазубренный, 5/16 1 Сп- р. Деталь Описание Ко- л-во 755 ...
Спецификация деталей Блок теплообменника ti18492a 802 803 811 806 805 810 807 808 804 801 1 Убедитесь в том, что стрелки направления потока на электромагнитных клапанах (804) указывают вниз. 2 Перед сборкой нанесите на все неповоротные фитинги анаэробный трубный герметик. Сп- р. Деталь Описание Ко- ...
Спецификация деталей Комплект впускного отверстия для жидкости 24L934 1 Нанесите герметик на всю трубную резьбу. Нанесите герметик на внутреннюю резьбу. Нанесите, как минимум, на первые четыре паза резьбы, ширина слоя около 1/4 оборота. 2 Перед сборкой и установкой в корпус нанесите термопасту на ст...
Электрические схемы Электрические схемы Идентификация жгутов проводов Все жгуты проводов обозначены буквой. Первая буква на каждом проводе в жгуте обозначает соответствующий жгут. С помощью приведенной ниже таблицы можно определить необходимый жгут проводов, соединения компонентов системы и номера с...
Электрические схемы Код идентификации на бирках проводов Пластиковые бирки, прикрепляемые ко многим кабелям в системе, содержат код, с помощью которого указывается, к какому компоненту подключен ближний и дальний конец провода, помеченного этой биркой. Первая половина кода указывает на модуль или по...
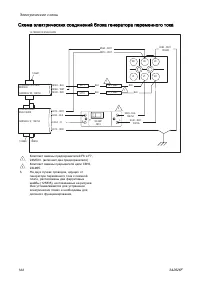
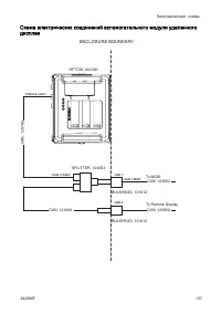
Электрические схемы Схема электрических соединений электрического блока TB 0 2 CA N , 123652 TO 120/240 V AC ALTER N ATOR TO LOAD CE N TER Circuit Breaker Ass’y, 24J72 8 E N CLOSURE BOU N DARY BULKHEAD,121612 125 8 5 9 G R N / YE L PO W ER CABLE ‘K’, 125753 HAR N ESS ‘H’, 16K299 HAR N ESS ‘ N ’, 125...
Электрические схемы Схема электрических соединений внешнего электрического блока со вспомогательным нагревателем 16A111 BOOSTER HEATER, 24L936 BLACK B LA CK Electrical Enclosure BLACK BLACK B LA C K W HITE 124262 124262 125760 12340 8 J23 OVERTEMP-SW J23 TCM-A/B TCM-B-1 J23 TCM-A-1 J23 TCM-A-3 HTR-A...
Электрические схемы Схема электрических соединений усилительного нагревателя CIRCUIT BREAKER 24J72 8 E N CLOSURE BOU N DARY BULKHEAD, 121612 CA N , 12 15 97 CA N , 1 257 8 9 PO W ER SUPPLY, 123374 CA N , 1257 8 9 W HT W HT BLK 16K799 B LK GR N 16K799 HPTCM, 24L950 LPTCM, 24L951 LPTCM, 24L951 CA N , ...
Электрические схемы Схема электрических соединений для отключения вспомогательного усилительного нагревателя CA N , 1 2 1 CA N , 1 PO W ER SUPPLY, 123374 W HT BLK 16K799 HPTCM, 24L950 LPTCM, 24L951 ‘TCM-H-6 TCM-A’ ‘TCM-B-CAN PSU’ ‘TCM-B-CAN TCM-A’ ‘TCM-B-5 PWR’ 1 4 5 3 GR N 4 Новое подключение подач...
Электрические схемы Схема электрических соединений питания вспомогательного оборудования клиента Таблицу идентификации прерывателей цепи и перечень доступных прерывателей см. в разделе Идентификация прерывателей цепи, page 132 . Прежде чем вносить изменения в стандартную конфигурацию вспомогательных...
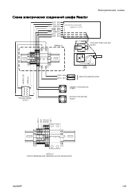
Электрические схемы Схема электрических соединений шкафа Reactor MOTOR COOLI N G FA N 126002 COOLA N T PUMP (240 V AC) 24L915 REACTOR HEATED HOSE CABI N ET COOLI N G FA N 115 8 34 } TO ELECTRICAL E N CLOSURE HAR N ESS ‘ N ’, 125756 N 210 - BLK N 22 0 - B LK TOP V IE W L N N 090 - BLK N 070 - BLK N 0...
Электрические схемы Схема электрических соединений центра приложения нагрузки TO E N GI N E CO N TROL MODULEHAR N ESS ‘F’ 16K297 F110 - BR N F100 - BLK/YELF0 8 0 - PUR F070 - W HT F120 - BLU F040 - ORGF030 - GRYF010 - BLK/YEL ‘L O A D C TR -J 4 M C M ’ HA R N ES S, 1 2 3 6 5 6 TO E N GI N E HAR N ES...
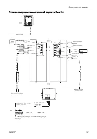
Электрические схемы Схема электрических соединений агрегата Reactor MCM-2 LOADCTR MCM-10 MTR SENSE MCM-1 CAN-1 MCM-1 ADM-CAN MCM-3 J21 SPL IT T ER , 1 2 5 8 06 J2 1 M C M CABLE, 121002 A D M-C A N M C M ADM 24L94 8 TO MOTOR24L923 MCM-6 PUMP-CYCLE MCM-9 PRESSURE-A MCM-8 PRESSURE-B MCM-5 J22 TO ELECTR...
Электрические схемы Схема электрических соединений двигателя TO LOAD CE N TER HAR N ESS ‘E’ 16K301 E630 - BLU E611 - BLK/YEL E100 - ORG E620 - BR N E190 - TA N E1 8 0 - W HT E032 - BLK/ W HT E034 - BLK/ W HT SI N GLE POI N T GROU N D E112 - BLK/ W HT E111 - BLK/ W HT E613 - BLK/YEL E612 - BLK/YEL E6...
Перечень деталей для ремонта и запасных деталей Перечень деталей для ремонта и запасных деталей Рекомендуемые обычные запасные детали Спр. Деталь Описание Деталь блока 71 24K207 Сенсор температуры жидкости (FTS) для шланга Системы 117 16P405 Предохранитель с плавкой перемычкой (замена для жгута с пл...
Перечень деталей для ремонта и запасных деталей Рекомендуемые запасные части для восстановления Справ. Деталь Описание Деталь блока 27 24L948 Расширенный модуль дисплея (ADM) Система 205 24L949 Модуль управления электродвигателем (MCM) Дозатор 212 115834 Охлаждающий вентилятор, дозатор Дозатор 233 2...
Стандартная гарантия компании Graco Компания Graco гарантирует, что во всем оборудовании, упомянутом в настоящем документе, произведенном компанией Graco и маркированном ее наименованием, на момент его продажи уполномоченным дистрибьютором Graco первоначальному покупателю отсутствуют дефекты материа...
Graco Инструкции
-
Graco XP_series
Инструкция по эксплуатации
- Graco Travel System Mirage + Инструкция
-
Graco Fire-Ball 300 50:1
Инструкция по эксплуатации
-
Graco FieldLazer S90
Инструкция по эксплуатации
-
Graco Stadium Duo
Инструкция по эксплуатации
-
Graco Reactor_repair
Инструкция по эксплуатации
-
Graco InvisiPac
Инструкция по эксплуатации
-
Graco Husky 1590_
Инструкция по эксплуатации
-
Graco EP4_repair
Инструкция по эксплуатации
-
Graco Probler P2
Инструкция по эксплуатации
-
Graco 262393
Инструкция по эксплуатации
-
Graco AquaMax 4043 BD
Инструкция по эксплуатации
-
Graco EVO
Инструкция
-
Graco GH
Инструкция по эксплуатации
-
Graco PETITE BASSINET
Инструкция
-
Graco Reactor E-XP2i
Инструкция по эксплуатации
-
Graco Contour Electra Vibe
Инструкция по эксплуатации
-
Graco VISCON HF
Инструкция по эксплуатации
-
Graco 24G621
Инструкция по эксплуатации
-
Graco AirMax 1310G
Инструкция по эксплуатации