Страница 2 - Contents
Contents Предупреждения ................................................. .. 3Важная информация о двухкомпонентных материалах ............................................... 7 Модели дозаторов ................................................ . 9Системы ..................................................
Страница 3 - Предупреждения; Предупреждение
Предупреждения Предупреждения Приведенные ниже предупреждения относятся к настройке, эксплуатации, заземлению, техническому обслуживанию и ремонту данного оборудования. Символ восклицательного знака служит предупреждением общего характера, а знак опасности указывает на возможность ее возникновения п...
Страница 7 - Важная информация о двухкомпонентных материалах
Важная информация о двухкомпонентных материалах Важная информация о двухкомпонентных материалах Меры предосторожности при работе с изоцианатами При распылении и дозировании материалов, содержащих изоцианаты, образуются потенциально вредные туманы, пары и взвешенные твердые частицы. Для ознакомления ...
Страница 8 - Пенопласт на основе смолы с
Важная информация о двухкомпонентных материалах Пенопласт на основе смолы с пенообразующими агентами 245 fa Некоторые пенообразующие вещества, не будучи под давлением, вспениваются при температурах выше 33 °C (90 °F), особенно при перемешивании. Для снижения риска вспенивания минимизируйте предварит...
Страница 9 - Модели дозаторов
Модели дозаторов Модели дозаторов Серия E-30i Комплектация. Деталь Доступ ный доп олнит ельный ток при 240 В, 60 Гц* Усилит- ельный нагреват- ель (4000 Вт) Воздушный компрессор (5000 Вт) Напряже- ние (фазы) Полная нагрузка системы † (Вт) Макс. расход, фунто- в/мин. (кг/мин.) Приблиз- ительны...
Страница 10 - Соответствие стандартам; Системы
Системы Соответствие стандартам Модель Соответствие стандартам. 259079 Соответствие стандарту ANSI/UL 73 Сертифицировано по стандарту CAN/CSA C22.2 № 68 259080259081 Соответствие стандарту ANSI/UL 499 Сертифицировано по стандарту CAN/CSA C22.2 № 88 Системы Шланг с подогревом Пистолет Деталь Максимал...
Страница 11 - Системы с воздушным компрессором; Дополнительные принадлежности
Дополнительные принадлежности Системы с воздушным компрессором Шланг с подогревом Пистолет Деталь Максимальное рабочее давление жидкости, фунты на кв. дюйм (МПа, бары) Дозатор Воздушный компрессор Комплект модуля удаленного дисплея 15 м (50 футов) 3 м (10 футов) Модель Деталь AP9089 2000 (13.8, 138)...
Страница 12 - Руководства, входящие в
Руководства , входящие в комплект поставки Руководства, входящие в комплект поставки В комплект поставки дозатора Reactor входят указанные далее руководства. В этих документах содержатся подробные сведения об оборудовании. Руководства также можно найти на веб-сайте www.graco.com. Вручную Описание 3A...
Страница 13 - Типичная установка с циркуляцией
Типичная установка с циркуляцией Типичная установка с циркуляцией S M B D G K M R J G H K L J R A F C* P E Figure 1 * Показано в открытом состоянии для наглядности. При эксплуатации следует обернуть лентой. A Дозатор Reactor B Шланг с подогревом C Сенсор температуры жидкости (FTS) D Подогреваемый шл...
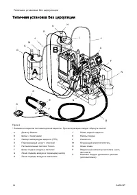
Страница 14 - Типичная установка без циркуляции
Типичная установка без циркуляции Типичная установка без циркуляции G K M J G H K L J A F B C* P E D N S N Figure 2 * Показано в открытом состоянии для наглядности. При эксплуатации следует обернуть лентой. A Дозатор Reactor B Шланг с подогревом C Сенсор температуры жидкости (FTS) D Подогреваемый шл...
Страница 15 - Идентификация компонентов
Идентификация компонентов Идентификация компонентов GG PC DG EM PA PB PT MP DB GB SB GA SA BA BB FA FB HC SC HA HB (FM) Вид спереди Figure 3 BA Выход сброса давления компонента A BB Выход сброса давления компонента B DG Корпус редукторного привода DB Электрический блок EM Электродвигатель FA Вход жи...
Страница 17 - Генератор
Идентификация компонентов Генератор BE HB HF RC FP OD EX EA FS FT GD EE DF AF OF ED EB HE ER OL ST RF TR GL FJ FD OS WS Figure 5 AF Воздушный фильтр BE Аккумулятор (не входит в комплект поставки) DF Фильтр дизельного топлива EA Генератор переменного тока для зарядки 12 В EB Расширительная емкость дл...
Страница 18 - Панель управления дозатором; Воздушный компрессор
Идентификация компонентов Панель управления дозатором PE PF* PG* PH* PJ* PD PK PL PM PR PP PN ti17151a Figure 6 PD Расширенный модуль дисплея (ADM), page 19 PE Модуль управления двигателем, page 24 PF* Выпускное воздушное отверстие в насосе подачи компонента A PG* Выпускное воздушное отверстие в нас...
Страница 19 - УВЕДОМЛЕНИЕ
Идентификация компонентов Расширенный модуль дисплея (ADM) УВЕДОМЛЕНИЕ Для того чтобы избежать повреждения сенсорных кнопок, не нажимайте их ногтями или острыми предметами, такими как ручки и пластиковые карты. A H G C B D E F D Обозначение компонентов – передняя панель Figure 8 Иден- тифи- катор Кн...
Страница 20 - Состояния светодиодного
Идентификация компонентов CS CR CP CN CM CL CK CJ Идентификация компонентов – задняя панель Figure 9 CJ Крепление плоского экрана (VESA 100) CK Номер модели и серийный номер CL USB-порт и индикаторы состояния CM Гнездо кабеля CAN CN Индикаторы состояния модуля CP Гнездо кабеля вспомогательного устро...
Страница 21 - Подробные данные; Экран включения питания; Перемещение между экранами
Идентификация компонентов Подробные данные расширенного модуля дисплея (ADM) Экран включения питания После включения расширенного модуля дисплея появляется указанный ниже экран. Данное изображение сохраняется в течение всего времени, пока происходит начальная загрузка расширенного модуля дисплея и у...
Страница 22 - Значки
Идентификация компонентов Значки Значки Значок ФункцияКомпонент A Компонент B Расчетная подача материала Температура шланга Скорость в режиме встряхиванияТемпература в контуре охлаждения двигателя Давление Счетчик циклов (нажмите и удерживайте)Указание. Для получения дополнительной информации см. ра...
Страница 23 - Модуль управления электродвигателем (MCM)
Идентификация компонентов Модуль управления электродвигателем (MCM) MB MA 1A 10 1B 2 3 12 MC 5 13 6 7 11 8 9 Модуль управления электродвигателем Figure 10 MA Крышка доступа к поворотному переключателю и токену MB Информацию о светодиодных индикаторах состояния модуля см. в разделе «Состояния светоди...
Страница 24 - Модуль управления двигателем
Идентификация компонентов Модуль управления двигателем УВЕДОМЛЕНИЕ Для того чтобы избежать повреждения сенсорных кнопок, не нажимайте их ногтями или острыми предметами, такими как ручки и пластиковые карты. Подробную информацию о модуле управления двигателем см. в разделе Приложение А. Модуль управл...
Страница 25 - Центр приложения нагрузки
Идентификация компонентов Центр приложения нагрузки F3 Силовой предохранитель центра приложения нагрузки F4 Предохранитель вентилятора радиатора K1 Реле подачи топлива K2 Реле стартера K3 Реле свечи накаливания K4 Реле вентилятора радиатора MV Ручной переключатель клапана Свет- одио- дный инди- като...
Страница 26 - Модули контроля температуры; Соединения кабеля высокомощного
Идентификация компонентов Модули контроля температуры Расположены внутри электрического блока (DB). Соединения кабеля высокомощного модуля контроля температуры (HPTCM) 3 1 2 Figure 12 5 7 6 8 4 Figure 13 1 Hе используется 2 Соединение сенсора температуры жидкости (FTS) 3 Подключение выходного питани...
Страница 27 - Регулировка
Идентификация компонентов Регулировка поворотного переключателя Настройка поворотного переключателя указывает на то, какой зоной системы управляет модуль контроля температуры. Высокомощный модуль контроля температуры использует 8-позиционный поворотный переключатель. Маломощный модуль контроля темпе...
Страница 28 - Прерыватели цепи
Идентификация компонентов Прерыватели цепи CB01 CB02 CB03 CB04 CB05 CB06 CB07 CB08 CT01 Прерыватели цепи внутри электрического блока (DB) Figure 18 Note Показаны не все провода. Справ. Размер Компонент CB01 30 A Высокомощный модуль контроля температуры (HPTCM) CB02 20 A Модуль управления электродвиг...
Страница 29 - Варианты конфигурации
Идентификация компонентов CB10 Прерыватели цепи внутри блока генератора переменного тока Figure 20 Справ. Размер Компонент CB10 90 A Генератор переменного тока 120/240 В Варианты конфигурации прерывателей цепи Ненадлежащая конфигурация может привести к поражению электрическим током. Все изменения ко...
Страница 30 - Краткое описание
Краткое описание Краткое описание Система оборудована двумя контурами охлаждения, которые используют выделяемое двигателем тепло для нагревания материалов А и В до целевой температуры, заданной на расширенном модуле дисплея (PD). В контуре охлаждения двигателя (серый) циркулирует нагретая охлаждающа...
Страница 33 - Настройка; Расположение агрегата
Настройка Настройка УВЕДОМЛЕНИЕ Правильное выполнение процедур подготовки, запуска и выключения системы определяет степень надежности электрооборудования. Описанные ниже процедуры позволяют обеспечить стабильность напряжения. Невыполнение этих процедур приводит к колебаниям напряжения, в результате ...
Страница 35 - Рекомендации по
Настройка Рекомендации по установке прицепа Во избежание возгорания направляйте выхлопную систему в сторону от горючих материалов. Газовая струя не должна подаваться непосредственно в стену, полоток или замкнутое труднодоступное пространство. Во избежание ожогов предусмотрите предохранительные щитки...
Страница 36 - Установка стенки
Настройка Установка стенки (дополнительно) Можно установить стенку между дозатором и генератором для достижения указанных ниже целей.• Регулирование температуры внутри прицепа, где гранится химикат. Обеспечение температуры хранения, рекомендованной изготовителем химиката. • Снижение шума, воздейству...
Страница 38 - Подключение; Добавление топлива; Общие рекомендации
Настройка Подключение аккумулятора Неправильная установка или ненадлежащее обслуживание аккумулятора может привести к поражению электрическим током, химическим ожогам или взрыву. Техническое обслуживание аккумуляторов должно выполняться исключительно персоналом, обученным работе с аккумуляторами и о...
Страница 39 - Электрические; Подсоединение насосов; Вдыхание воздуха
Настройка Электрические соединения Подключите воздушный компрессор, источник воздуха для дыхания и кабели питания вспомогательных устройств к указанным ниже прерывателям цепи. См раздел Прерыватели цепи, page 28 . 1. В соответствии с вашими потребностями удалите одну или несколько заглушек из боково...
Страница 42 - Заправка жидкости для
Настройка Заправка жидкости для щелевых уплотнений (TSL) в смачиваемые крышки В ходе работы шток и шатун насоса находятся в движении. Движущие части могут вызвать серьезную травму при защемлении конечности и привести к ее ампутации. В ходе эксплуатации оборудования не следует подносить руки к смачив...
Страница 43 - Эксплуатация расширенного модуля дисплея (ADM)
Эксплуатация расширенного модуля дисплея (ADM) Эксплуатация расширенного модуля дисплея (ADM) После включения основного питания путем перевода главного выключателя питания (MP) в положение ВКЛЮЧЕНИЯ будет отображаться экран-заставка, пока не будет завершена инициализация и установка связи. Далее буд...
Страница 44 - Режим настройки; Установка пароля
Эксплуатация расширенного модуля дисплея (ADM) Режим настройки Сначала на расширенном модуле дисплея отображается домашний экран с экранами режима работы. Длядоступа к экранам настройки нажмите на любом экране режима работы. По умолчанию в системе не установлен пароль, т. е. пароль указывается в вид...
Страница 46 - Экраны расширенной
Эксплуатация расширенного модуля дисплея (ADM) Экраны расширенной настройки Экраны расширенной настройки дают пользователям возможность устанавливать единицы измерения, корректировать значения, указывать форматы и просматривать сведения о программном обеспечении каждогокомпонента. Для перехода от од...
Страница 47 - Система
Эксплуатация расширенного модуля дисплея (ADM) Система Используйте этот экран для установки давления активации аварийного сигнала или указания о дисбалансе давления, для включения и отключения экранов диагностики, включения аварийных сигналов о наполнении бочек, установки максимального объема в бочк...
Страница 48 - Режим работы
Эксплуатация расширенного модуля дисплея (ADM) Режим работы Сначала на расширенном модуле дисплея отображается домашний экран с экранами режимаработы. Для перемещения между экранами режима работы нажимайте . См. раздел «Схема перемещения по экранам режима работы», стр. 44 . Для доступа к экранам нас...
Страница 51 - Техническое
Эксплуатация расширенного модуля дисплея (ADM) Техническое обслуживание Используйте этот экран для просмотра ежедневных циклов и циклов службы, количества перекачанных насосом галлонов материала и количества галлонов или литров, оставшихся в бочке. Числовое значение срока службы представляет собой к...
Страница 52 - Диагностика
Эксплуатация расширенного модуля дисплея (ADM) Диагностика Используйте этот экран для просмотра информации обо всех компонентах системы. Отображается указанная ниже информация. Температура • Хим. A, Hx: химикат А в теплообменнике • Хим. В, Hx: химикат B в теплообменнике • Химикат в шланге • Химикат ...
Страница 53 - Поиск и устранение; Рецептуры
Эксплуатация расширенного модуля дисплея (ADM) Поиск и устранение неисправностей На этом экране отображаются последние десять ошибок, которые возникли в системе. Для выбора ошибок используйте стрелки вверх и вниз. Для просмотра информации об устранении неисправностей, связанных с выбранной ошибкой, ...
Страница 55 - Запуск
Запуск Запуск Во избежание серьезных травм во время работы агрегата Reactor все крышки и кожухи должны быть установлены на месте. УВЕДОМЛЕНИЕ Правильное выполнение процедур подготовки, запуска и выключения системы определяет степень надежности электрооборудования. Описанные ниже процедуры позволяют ...
Страница 58 - Временное ручное управление
Временное ручное управление температурой шланга Временное ручное управление температурой шланга При появлении кода ошибки T6DH вследствие повреждения кабеля резистивного датчика температуры в шланге или сенсора температуры жидкости выполните указанные ниже действия для перехода на временное ручное у...
Страница 59 - Циркуляция жидкости
Циркуляция жидкости Циркуляция жидкости Циркуляция через аппарат Reactor УВЕДОМЛЕНИЕ Не осуществляйте циркуляцию жидкости с пенообразующим веществом без предварительной консультации с поставщиком материалов относительно допустимых пределов температуры жидкости. Для получения информации о циркуляции ...
Страница 60 - Циркуляция в коллекторе; Режим встряхивания
Режим встряхивания Циркуляция в коллекторе пистолета УВЕДОМЛЕНИЕ Не осуществляйте циркуляцию жидкости с пенообразующим веществом без предварительной консультации с поставщиком материалов относительно допустимых пределов температуры жидкости. Циркуляция жидкости через коллектор пистолета обеспечивает...
Страница 61 - Распыление
Распыление Распыление Показан пистолет Fusion AP. 1. Поставьте пистолет на предохранитель. 2. Закройте входные клапаны A и B, используемые для подачи жидкости в пистолет. 3. Подсоедините жидкостный коллектор пистолета. Подсоедините линию подачи воздуха на пистолет. Откройте клапан линии подачи возду...
Страница 62 - Регулировка распыления
Распыление 12. Откройте клапаны впуска жидкости A и B на пистолете. Note В случае применения пистолета со смешиванием столкновением запрещается открывать клапаны коллектора жидкости или пистолет, если давление не сбалансировано. 13. Снимите пистолет с предохранителя. 14. Опробуйте струю на листе кар...
Страница 63 - Окончание работы
Окончание работы Окончание работы УВЕДОМЛЕНИЕ Правильное выполнение процедур подготовки, запуска и выключения системы определяет степень надежности электрооборудования. Описанные ниже процедуры позволяют обеспечить стабильность напряжения. Невыполнение этих процедур приводит к колебаниям напряжения,...
Страница 64 - Процедура снятия давления
Процедура снятия давления Процедура снятия давления Данное оборудование будет оставаться под давлением до тех пор, пока оно не будет снято вручную. Для того чтобы избежать получения серьезной травмы в результате взаимодействия с жидкостью под давлением (например, от впрыскивания под кожу, разбрызгив...
Страница 65 - Промывка
Промывка Промывка Во избежание пожара и взрыва промывайте оборудование только в хорошо вентилируемом месте. Не распыляйте горючие жидкости. Не включайте нагреватели при промывке горючими растворителями. • Прежде чем подавать новую жидкость, очистите насос от старой жидкости с помощью совместимого ра...
Страница 66 - Техническое обслуживание; График профилактического; Обслуживание
Техническое обслуживание Техническое обслуживание Перед осуществлением любых работ по техобслуживанию выполните инструкции раздела Процедура сброса давления, page 64 . График профилактического обслуживания Периодичность проведения обслуживания зависит от конкретных условий эксплуатации системы. Сост...
Страница 67 - Промывка сетчатого
Техническое обслуживание Рекомендации относительно обслуживания топливного бака см. в прилагаемом руководстве к двигателю Perkins. Промывка сетчатого впускного фильтра Впускные фильтры отфильтровывают частицы, которые могут засорить впускные обратные клапаны насоса. Ежедневно проверяйте сетки в рамк...
Страница 68 - Система смазки насоса
Техническое обслуживание Система смазки насоса Ежедневно проверяйте пригодность смазки насоса для подачи изоцианатов. Заменяйте смазку при ее переходе в гелеобразную консистенцию, потемнении цвета или ее разбавлении изоцианатом.Гель формируется в результате впитывания смазкой влаги. Частота замены з...
Страница 69 - Слив охлаждающей
Техническое обслуживание Слив охлаждающей жидкости Во избежание ожогов не выполняйте обслуживание системы охлаждения, пока она не остынет до температуры окружающей среды. Сливайте охлаждающую жидкость из контуров охлаждения двигателя и дозатора раз в год или при необходимости отсоединения линий пода...
Страница 71 - Технические характеристики
Техническое обслуживание окружающей среды, осуществите повторное наполнение или добавьте охлаждающую жидкость в расширительную емкость (HB), пока она не достигнет отметки уровня жидкости в холодном состоянии. 11. Переведите ручной переключатель клапана (MV) в положение выключения, чтобы закрыть клап...
Страница 74 - Поиск и устранение неисправностей; Коды ошибок и устранение неисправностей
Поиск и устранение неисправностей Поиск и устранение неисправностей Информацию об ошибках, которые могут возникнуть в системе, см. в разделе Ошибки, page 72 . Перечень последних десяти ошибок, которые возникли в системе, см. в разделе Поиск и устранение неисправностей, page 53 . Информацию о диагнос...
Страница 89 - Журналы USB; Журнал событий; Журнал работы
USB- данные USB-данные Журналы USB Note Расширенный модуль дисплея может осуществлять считывание и запись информации только при использовании накопительных устройств с файловой системой FAT. Файловая система NTFS, используемая накопительными устройствами объемом от 32 ГБ, не поддерживается. В ходе р...
Страница 90 - Ежедневный журнал; Журнал программного обеспечения; Файл журнала Blackbox; Настройки конфигурации системы
USB- данные Ежедневный журнал Файл ежедневного журнала имеет название 3–DAILY.CSV и хранится в папке DATAxxxx. В ежедневном журнале ведется запись общего рабочего цикла и объема материала, распыленного в любой день, когда система была включена. В качестве единиц измерения используются те же единицы,...
Страница 91 - Файл языковых настроек; Создание текста на; Процедура загрузки на
USB- данные Файл языковых настроек Языковые настройки содержатся в файле DISPTEXT.TXT, который хранится в папке DOWNLOAD. Файл языковых настроек автоматически загружается при каждом подключении флэш-накопителя USB к расширенному модулю дисплея. При желании можно использовать этот файл для изменения ...
Страница 92 - Процедура загрузки с
USB- данные 8. Откройте системную папку. Если скачивать данные из нескольких систем, будет доступно несколько папок. Каждая папка обозначена соответствующим серийным номером расширенного модуля дисплея (серийный номер указан на задней панели модуля.) 9. Откройте папку DOWNLOAD.10. Откройте папку DAT...
Страница 93 - Приложение A. Модуль управления двигателем; Оформление экрана режима работы; Информационные экраны; Оформление информационного экрана
Приложение A. Модуль управления двигателем Приложение A. Модуль управления двигателем Экраны режима работы На модуле управления двигателем доступно семь указанных ниже экранов режима работы. • Напряжение «фаза – нейтраль»• Напряжение «фаза – фаза»• Частота• Скорость двигателя• Счетчик срока службы д...
Страница 94 - Значки режима; Значки инструментов
Приложение A. Модуль управления двигателем Значки режима В области значков режима на дисплее отображается небольшой значок, который указывает на то, какой режим активен в настоящий момент. Зна- чок Описание Подробные сведения Остановлено Двигатель неподвижен, устройство находится в режиме остановки....
Страница 95 - Аварийные сигналы
Приложение A. Модуль управления двигателем Аварийные сигналы Существует два вида аварийных сигналов, которые могут возникнуть в системе. Аварийные сигналы обозначаются соответствующим значком на экранах режима работы и информации. Предупреждение При возникновении в системе предупредительного сигнала...
Страница 99 - Графики характеристик; Дозаторы для пены
Графики характеристик Графики характеристик С помощью этих графиков можно определить дозатор, который будет наиболее эффективно работать с определенной смесительной камерой. Уровни расхода указаны для материала с вязкостью 60 спз. Дозаторы для пены AR6060 (03) AR7070 (04) AR5252 (02) AR4242 (01) 200...
Страница 104 - Стандартная гарантия компании Graco; Сведения о компании Graco
Стандартная гарантия компании Graco Компания Graco гарантирует, что во всем оборудовании, упомянутом в настоящем документе, произведенном компанией Graco и маркированном ее наименованием, на момент его продажи уполномоченным дистрибьютором Graco первоначальному покупателю отсутствуют дефекты материа...