Страница 2 - Содержание; Пояснения символов и указания по технике; Регулировка давления перед форсункой 15; Техобслуживание
2 | Содержание RU 6 720 608 988 (2009/12) Содержание 1 Пояснения символов и указания по технике безопасности . . . . . . . . . . . . . . . . . . . . . . . . . . . 3 1.1 Пояснения условных обозначений . . . . . . 3 1.2 Указания по технике безопасности . . . . . 3 2 Данные о приборе . . . . . . . . . ...
Страница 3 - Пояснения символов и указания по технике безопасности; Пояснения условных обозначений; Знак
Пояснения символов и указания по технике безопасности | 3 RU 6 720 608 988 (2009/12) 1 Пояснения символов и указания по технике безопасности 1.1 Пояснения условных обозначений Предупреждения Выделенные слова в начале предупреждения обозначают вид и степень тяжести последствий, наступающих в случае н...
Страница 4 - Данные о приборе; Категория, тип и допуск; Модель
4 | Данные о приборе RU 6 720 608 988 (2009/12) 2 Данные о приборе 2.1 Категория, тип и допуск 2.2 Типы прибора W Газовый проточный водонагреватель R Постоянная регулировка мощности 10 Максимальный расход воды (л/мин) -2 Версия 2 P пьезорозжиг 23 Номер индикатора для природного газа Н 31 Номер индик...
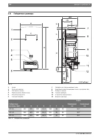
Страница 5 - Габаритные размеры; Природный; Таб. 4 Габаритные размеры
Данные о приборе | 5 RU 6 720 608 988 (2009/12) 2.6 Габаритные размеры Рис 1 1 Кожух 2 Петли для навески 3 Смотровое окошко 4 Переключатель объема воды 5 Регулятор мощности 6 Газовый патрубок 7 Патрубок для отвода дымовых газов 8 Защитный коллектор дымовых газов с контролем тяги 9 Камера сгорания 10...
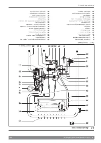
Страница 6 - Функциональная схема
6 | Данные о приборе RU 6 720 608 988 (2009/12) 2.7 Функциональная схема Рис 2 Функциональная схема 4 Переключатель объема воды 5 Кнопка передвижного регулятора 6 Газ 11 Устройство пьезорозжига 12 Водяная арматура 13 Теплообменник 14 Основная горелка 15 Форсунка 16 Узел инерции розжига 17 Трубка Вен...
Страница 7 - Принцип действия
Данные о приборе | 7 RU 6 720 608 988 (2009/12) 2.8 Принцип действия Проточный водонагреватель оснащен устройством пьезорозжига. Это делает эксплуатацию более удобной. B Регулятор мощности из положения Выкл. передвинуть в положение розжига (рис. 3). B Нажать и удерживать нажатой кнопку регулятора мо...
Страница 8 - Технические характеристики; Символ
8 | Данные о приборе RU 6 720 608 988 (2009/12) 2.9 Технические характеристики Символ Единица измерения WR10 WR13 WR15 Мощность Макс. номинальная тепловая мощность Pn кВт 17,4 22,6 26,2 Мин. номинальная тепловая мощность Pmin кВт 7 7 7 Тепловая мощность (диапазон регулировки) кВт 7 - 17,4 7 - 22,6 7...
Страница 9 - Эксплуатация; Перед вводом в эксплуатацию; Открыть запорный вентиль холодной воды.; Включить прибор; Нажать кнопку пьезорозжига.; Регулировка мощности
Эксплуатация | 9 RU 6 720 608 988 (2009/12) 3 Эксплуатация 3.1 Перед вводом в эксплуатацию B Проверить, соответствует ли вид газа, указанный на типовой табличке, виду подаваемого газа. B Открыть запорный вентиль холодной воды. B Открыть газовый кран. 3.2 Включить прибор B Нажать и удерживать нажатой...
Страница 10 - Регулировка расхода воды; При наличии риска замерзания:
10 | Эксплуатация RU 6 720 608 988 (2009/12) 3.4 Регулировка расхода воды B Повернуть поворотную ручку против часовой стрелки.Расход воды повышается, температура воды на выходе соответственно понижается. Рис 7 B Повернуть поворотную ручку по часовой стрелке.Расход воды снижается, температура воды на...
Страница 11 - Предписания
Предписания | 11 RU 6 720 608 988 (2009/12) 4 Предписания Следует соблюдать все местные законодательные предписания, нормы и правила, касающиеся монтажа и эксплуатации бойлеров. Необходимо изучить законы, действующие в Вашей стране.
Страница 12 - Монтаж (только для авторизированных фирмой Бош специалистов); Важные указания; Требования к помещению для монтажа
12 | Монтаж (только для авторизированных фирмой Бош специалистов) RU 6 720 608 988 (2009/12) 5 Монтаж (только для авторизированных фирмой Бош специалистов) 5.1 Важные указания B Перед монтажом получить разрешение от предприятия по газоснабжению и от ведомства по очистке и проверке состояния дымоходо...
Страница 13 - Температура поверхностей; . Специальные меры по; Подача воздуха; Монтаж прибора; Отвинтить крепежные винты кожуха.; Прибор; Таб. 6 Площадь поперечного сечения для подачи
Монтаж (только для авторизированных фирмой Бош специалистов) | 13 RU 6 720 608 988 (2009/12) • Все газовые проточные водонагреватели должны иметь герметичное соединение с соответствующего диаметра трубами отвода дымовых газов. • Дымоход должен: – проходить вертикально (с малым количеством или с полн...
Страница 14 - Подключение подачи воды; Рис 11 Подключение водопровода; Подключение подачи газа; Наличие остаточных веществ
14 | Монтаж (только для авторизированных фирмой Бош специалистов) RU 6 720 608 988 (2009/12) 5.4 Подключение подачи воды B Следить за тем, чтобы при подключении не перепутать место подсоединения водопровода холодной воды (рис. 11, поз. A - не поставляется с оборудованием) с местом подсоединения водо...
Страница 15 - Заводская настройка; Природный газ; Рис 12 Точка измерения давления перед форсункой
Индивидуальная настройка (только для авторизированных фирмой Бош специалистов) | 15 RU 6 720 608 988 (2009/12) 6 Индивидуальная настройка (только для авторизированных фирмой Бош специалистов) 6.1 Заводская настройка Природный газ Приборы, работающие на природном газе (G20), отрегулированы изготовите...
Страница 16 - оригинальные комплекты для; Таб. 7 Давление перед форсункой
16 | Индивидуальная настройка (только для авторизированных фирмой Бош специалистов) RU 6 720 608 988 (2009/12) Давление перед форсункой при минимальной тепловой мощности B Включить прибор. Регулятор мощности должен стоять в крайнем левом положении. Рис 14 Винт регулировки мин. расхода газа B Открыть...
Страница 19 - Устранение неисправностей; Неисправность; Сниженный проток воды.
Устранение неисправностей | 19 RU 6 720 608 988 (2009/12) 8 Устранение неисправностей Монтаж, техобслуживание и ремонт может производить только уполномоченная специализированная фирма. В нижеприведенной таблице предлагаются решения по устранению возможных неисправностей (предложения, отмеченные *, м...
Страница 21 - ГАРАНТИЙНЫЙ ТАЛОН
ГАРАНТИЙНЫЙ ТАЛОН | 21 RU 6 720 608 988 (2009/12) 9 ГАРАНТИЙНЫЙ ТАЛОН Тип оборудования: Заводской и Серийный номер: FD Название, адрес, телефон фирмы продавца: ...............................................................................................................................................