Bosch W 10 KB, 7736500992 - Инструкция по эксплуатации

Bosch W 10 KB, 7736500992

Водонагреватель Bosch W 10 KB, 7736500992 - инструкция пользователя по применению, эксплуатации и установке на русском языке. Мы надеемся, она поможет вам решить возникшие у вас вопросы при эксплуатации техники.

Если остались дополнительные вопросы — свяжитесь с нами через контактную форму.

1 Страница 1
2 Страница 2
3 Страница 3
4 Страница 4
5 Страница 5
6 Страница 6
7 Страница 7
8 Страница 8
9 Страница 9
10 Страница 10
11 Страница 11
12 Страница 12
13 Страница 13
14 Страница 14
15 Страница 15
16 Страница 16
17 Страница 17
18 Страница 18
19 Страница 19
20 Страница 20
21 Страница 21
22 Страница 22
23 Страница 23
24 Страница 24
Страница: / 24

Содержание:

  • Страница 2 – Содержание
  • Страница 3 – Пояснение обозначений и указания по технике безопасности; Расшифровка символов; Закрыть газовый клапан.; Знак; Действие
  • Страница 4 – Основные сведения о приборе; Назначение и использование прибора; Модль
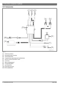
  • Страница 5 – Описание прибора; Предохранительные устройства:
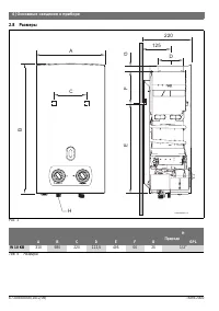
  • Страница 6 – Природн; Размеры
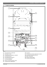
  • Страница 7 – Устройство прибора
  • Страница 9 – Технические параметры
  • Страница 10 – Инструкции по эксплуатации; Батарейки; Установка батареек; Отсек для батареек; Продукты горения газа
  • Страница 11 – Перед пуском прибора в эксплуатацию; Включить; Нажать выключатель в позицию ON.; Выключить; Нажать выключатель в позицию Off.; Регулирование мощности; Для выбора мощности прибора:
  • Страница 12 – Регулятор расхода/температуры воды; В приборе не происходит зажигание.; Очистка передней панели; Ослабить винт слива воды на приборе (
  • Страница 13 – Рис. 11 Винт слива воды; Технические нормы; Важная информация
  • Страница 14 – Монтаж (только квалифицированными специалистами); Выбор места установки; Указания по выбору места установки; что тот не превышает 2м; Дымовые газы; Избегать изменения направления.
  • Страница 15 – Крепление аппарата; Для снятия передней панели; Открутить передние крепежные винты.; Подключение к водопроводу; Установите аксессуар для подключения воды (; Прибор; Полезные площади подачи воздуха
  • Страница 16 – Рис. 14 Подключение к водопроводу; Подключение к сети газоснабжения
  • Страница 17 – Проверить чистоту газопроводной трубы.; Монтаж с подключением к газовой сети; Включение аппарата; Включить выключатель прибора (; Наладка (только квалифицированными специалистами); Наладка прибора; Приборы подготовлены к работе при
  • Страница 18 – Техническое обслуживание (только квалифицированными; Регулирование давления на форсунках; Подключение манометра; Рис. 15 Точки измерения давления; Перенастройка на другой вид газа; Инструкции по обслуживанию прибора; Регулярное техобслуживание; Проверка рабочего состояния прибора; Давление перед форсункой
  • Страница 19 – Датчик контроля тяги
  • Страница 20 – Устранение неполадок; Проблема
  • Страница 21 – Охрана окружающей среды/утилизация
  • Страница 22 – ГАРАНТИЙНЫЙ ТАЛОН
Загрузка инструкции

Руководство по установке и эксплуатации

Газовые проточные водонагреватели

Therm 2000 O

6720800668-00.1V

W 10 KB 23/31

6 720 800 668 (

2012/

09)

RU

Перед iнсталяцiєю прочитати iнструкцiю!
Перед введенням в експлуатацiю читати iнструкцiю з експлуатацiї!

Звернути особливу увагу на зауваження щодо безпеки!
Примiщення для iнсталяцiї має вiдповiдати вимогам по вентиляцiї!

Iнсталяцiя має виконуватися тiльки авторизованим iнсталятором!

"Загрузка инструкции" означает, что нужно подождать пока файл загрузится и можно будет его читать онлайн. Некоторые инструкции очень большие и время их появления зависит от вашей скорости интернета.

Краткое содержание

Страница 2 - Содержание

6 720 800 668 (2012/09) Therm 2000 2 | Содержание Содержание 1 Пояснение обозначений и указания по технике безопасности . . . . . . . . . . . . . .31.1 Расшифровка символов . . . . . . . 3 1.2 Указания по технике безопасности . . . . . . . . . . . . . . . .3 2 Основные сведения о приборе . . . . . ....

Страница 3 - Пояснение обозначений и указания по технике безопасности; Расшифровка символов; Закрыть газовый клапан.; Знак; Действие

6 720 800 668 (2012/09) Therm 2000 Пояснение обозначений и указания по технике безопасности | 3 1 Пояснение обозначений и указания по технике безопасности 1.1 Расшифровка символов Предупреждения Выделенные слова в начале предупреждения обозначают вид и степень тяжести последствий, наступающих в случ...

Страница 4 - Основные сведения о приборе; Назначение и использование прибора; Модль

6 720 800 668 (2012/09) Therm 2000 4 | Основные сведения о приборе Повреждения в результате неправильной эксплуатацииНеправильная эксплуатация прибора может стать причиной вреда, нанесенного здоровью человека и/ или имуществу. B Не оставлять детей без присмотра наедине с прибором, запрещать играть с...

Характеристики

Другие модели - Водонагреватели Bosch

Все водонагреватели Bosch