Страница 2 - Содержание
6 720 800 668 (2012/09) Therm 2000 2 | Содержание Содержание 1 Пояснение обозначений и указания по технике безопасности . . . . . . . . . . . . . .31.1 Расшифровка символов . . . . . . . 3 1.2 Указания по технике безопасности . . . . . . . . . . . . . . . .3 2 Основные сведения о приборе . . . . . ....
Страница 3 - Пояснение обозначений и указания по технике безопасности; Расшифровка символов; Закрыть газовый клапан.; Знак; Действие
6 720 800 668 (2012/09) Therm 2000 Пояснение обозначений и указания по технике безопасности | 3 1 Пояснение обозначений и указания по технике безопасности 1.1 Расшифровка символов Предупреждения Выделенные слова в начале предупреждения обозначают вид и степень тяжести последствий, наступающих в случ...
Страница 4 - Основные сведения о приборе; Назначение и использование прибора; Модль
6 720 800 668 (2012/09) Therm 2000 4 | Основные сведения о приборе Повреждения в результате неправильной эксплуатацииНеправильная эксплуатация прибора может стать причиной вреда, нанесенного здоровью человека и/ или имуществу. B Не оставлять детей без присмотра наедине с прибором, запрещать играть с...
Страница 5 - Описание прибора; Предохранительные устройства:
6 720 800 668 (2012/09) Therm 2000 Основные сведения о приборе | 5 На ней указаны мощность прибора, номер для заказа, сведения о допуске и закодированная дата изготовления (FD). 2.6 Описание прибора • Прибор предназначен для вертикальной установки на стене. • Автоматический электронный розжиг при от...
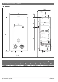
Страница 6 - Природн; Размеры
6 720 800 668 (2012/09) Therm 2000 6 | Основные сведения о приборе 2.8 Размеры Рис. 1 125 D 220 6720800668-01.1V G F E H A B C A B C D E F G H Природн GPL W 10 KB 310 580 220 112,5 495 60 25 1/2” Таб. 5 Размеры
Страница 7 - Устройство прибора
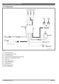
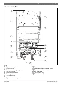
6 720 800 668 (2012/09) Therm 2000 Основные сведения о приборе | 7 2.9 Устройство прибора Рис. 2 [1] Подсоединение к дымоходу [2] Вытяжной колпак [3] Теплообменник (камера сгорания) [4] Электрод розжига [5] Ионизационный электрод [6] Регулятор мощности [7] Отсек для батареек [8] Датчик контроля дымо...
Страница 9 - Технические параметры
6 720 800 668 (2012/09) Therm 2000 Основные сведения о приборе | 9 2.11 Технические параметры Технические параметры Обознач ение Единица W 10 KB Мощность и поток воды Номинальная полезная мощность Pn кВт 17,4 Минимальная полезная мощность Pmin кВт 10,5 Полезная мощность (диапазон регулировки) кВт 10...
Страница 10 - Инструкции по эксплуатации; Батарейки; Установка батареек; Отсек для батареек; Продукты горения газа
6 720 800 668 (2012/09) Therm 2000 10 | Инструкции по эксплуатации 3 Инструкции по эксплуатации 3.1 Батарейки Установка батареек B Установить в отсек для батареек две батарейки R20; 1,5V (в комплект не включено). Рис. 4 Отсек для батареек Подключение воды (холодная/горячая) 1/2” Продукты горения газ...
Страница 11 - Перед пуском прибора в эксплуатацию; Включить; Нажать выключатель в позицию ON.; Выключить; Нажать выключатель в позицию Off.; Регулирование мощности; Для выбора мощности прибора:
6 720 800 668 (2012/09) Therm 2000 Инструкции по эксплуатации | 11 3.2 Перед пуском прибора в эксплуатацию Включить B Нажать выключатель в позицию ON. Рис. 5 Выключатель On/Off Выключить B Нажать выключатель в позицию Off. 3.3 Регулирование мощности Для выбора мощности прибора: B Понизить мощностьМе...
Страница 12 - Регулятор расхода/температуры воды; В приборе не происходит зажигание.; Очистка передней панели; Ослабить винт слива воды на приборе (
6 720 800 668 (2012/09) Therm 2000 12 | Инструкции по эксплуатации 3.4 Регулирование расхода/температуры воды B При вращении регулятора против часовой стрелки.увеличивается расход и понижается температура воды. Рис. 8 Регулятор расхода/температуры воды B При вращении регулятора по часовой стрелке.сн...
Страница 13 - Рис. 11 Винт слива воды; Технические нормы; Важная информация
6 720 800 668 (2012/09) Therm 2000 Технические нормы | 13 B Открыть клапан горячей воды и дать вылиться всей воде, содержащейся в аппарате. Рис. 11 Винт слива воды 4 Технические нормы Выполнение технических требований и норм, действующих в соответствии с законодательством РФ, является обязательным. ...
Страница 14 - Монтаж (только квалифицированными специалистами); Выбор места установки; Указания по выбору места установки; что тот не превышает 2м; Дымовые газы; Избегать изменения направления.
6 720 800 668 (2012/09) Therm 2000 14 | Монтаж (только квалифицированными специалистами) B Убедиться, что поток и давление от редуктора соответствуют потреблению прибора (технические данные в таблице 6). 5.2 Выбор места установки Указания по выбору места установки • Не устанавливать прибор в помещен...
Страница 15 - Крепление аппарата; Для снятия передней панели; Открутить передние крепежные винты.; Подключение к водопроводу; Установите аксессуар для подключения воды (; Прибор; Полезные площади подачи воздуха
6 720 800 668 (2012/09) Therm 2000 Монтаж (только квалифицированными специалистами) | 15 относительно диаметра трубы указываются в таблице с размерами прибора ( Æ таб. 5). • На конце дымоотводной трубы следует установить дымовой колпак (флюгарку) для защиты от ветра/осадков. В случае невыполнимости ...
Страница 16 - Рис. 14 Подключение к водопроводу; Подключение к сети газоснабжения
6 720 800 668 (2012/09) Therm 2000 16 | Монтаж (только квалифицированными специалистами) B Во избежание ошибок при подключении пометить трубы холодной и горячей воды. Рис. 14 Подключение к водопроводу [A] Холодная вода [B] Горячая вода (в комплект не включено) 5.5 Подключение к сети газоснабжения По...
Страница 17 - Проверить чистоту газопроводной трубы.; Монтаж с подключением к газовой сети; Включение аппарата; Включить выключатель прибора (; Наладка (только квалифицированными специалистами); Наладка прибора; Приборы подготовлены к работе при
6 720 800 668 (2012/09) Therm 2000 Наладка (только квалифицированными специалистами) | 17 • подсоединение на концах должно быть сделано с использованием соответствующих принадлежностей и зажимов без трещин B Проверить чистоту газопроводной трубы. B Использовать резиновую пластину (дополнительная при...
Страница 18 - Техническое обслуживание (только квалифицированными; Регулирование давления на форсунках; Подключение манометра; Рис. 15 Точки измерения давления; Перенастройка на другой вид газа; Инструкции по обслуживанию прибора; Регулярное техобслуживание; Проверка рабочего состояния прибора; Давление перед форсункой
6 720 800 668 (2012/09) Therm 2000 18 | Техническое обслуживание (только квалифицированными 6.2 Регулирование давления на форсунках Подключение манометра B Снять кожух аппарата. B Ослабить запорный винт ( Æ Рис. 15 , [1]). B Подключить манометр в точке измерения давления на форсунке ( Æ Рис. 15 , [1...
Страница 19 - Датчик контроля тяги
6 720 800 668 (2012/09) Therm 2000 Техническое обслуживание (только квалифицированными – Прочистить теплообменник под сильной струей воды. B Если загрязнение не удаляется: опустить пластины в горячую воду с моющим средством и аккуратно вытереть. B При необходимости: удалить накипь внутреннего корпус...
Страница 20 - Устранение неполадок; Проблема
6 720 800 668 (2012/09) Therm 2000 20 | Устранение неполадок 8 Устранение неполадок Монтаж, обслуживание и ремонт прибора должны производиться квалифицированными специалистами. В нижеследующей таблице приведены решения некоторых проблем, связанных с возможными неполадками (операции, отмеченные *, до...
Страница 21 - Охрана окружающей среды/утилизация
6 720 800 668 (2012/09) Therm 2000 Охрана окружающей среды/утилизация | 21 9 Охрана окружающей среды/утилизация Охрана окружающей среды является основным принципом предприятий концерна Bosch. Качество продукции, рентабельность и охрана окружающей среды являются для нас равными по приоритетности целя...
Страница 22 - ГАРАНТИЙНЫЙ ТАЛОН
6 720 800 668 (2012/09) Therm 2000 22 | ГАРАНТИЙНЫЙ ТАЛОН 10 ГАРАНТИЙНЫЙ ТАЛОН Тип оборудования: Заводской и Серийный номер: FD Название, адрес, телефон фирмы продавца: (место для печати) Дата продажи: Фамилия и подпись Продавца: Адрес установки оборудования:Телефон: Данные мастера, осуществившего п...