Страница 2 - BAXI; Норматив; Компания
2 Уважаемый покупатель ! Мы убеждены , что приобретенное Вами изделие будет соответствовать всем Вашим требованиям . Приобретение одного из изделий BAXI отвечает вашим ожиданиям : хорошая работа , простота и легкость пользования . Сохраните это руководство , и пользуйтесь им в случае возникновения к...
Страница 3 - СОДЕРЖАНИЕ
Luna HT 1.450-1.550-1.650 содержание 3 СОДЕРЖАНИЕ Руководство для пользователя 1. Подготовка к установке ....................................................................................................................... 4 2. Подготовка к первому пуску ..............................................
Страница 4 - FERNOX Rigeneratore; Подготовка
Luna HT 1.450-1.550-1.650 руководство для пользователя газовые настенные котлы 4 Руководство для пользователя 1. Подготовка к установке . Котел предназначен для нагрева воды не выше температуры кипения при атмосферном давлении . Он подключается к системе отопления в соответствии с его характеристика...
Страница 9 - Рис
Luna HT 1.450-1.550-1.650 руководство для пользователя газовые настенные котлы 9 3.7 Таблица параметров для установки пользователем . № параметра Описание параметра Значение , установленное на фабрике Интервал Р 1 Установка времени - 0…23:59 Р 5 Установка минимальной температуры системы отопления (°...
Страница 12 - Общие
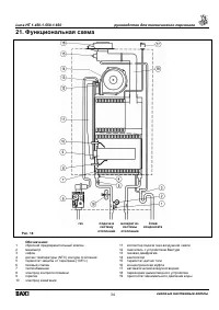
Luna HT 1.450-1.550-1.650 руководство для технического персонала газовые настенные котлы 12 Руководство для технического персонала 8. Общие сведения . Нижеследующие указания и замечания составлены для того , чтобы помочь квалифицированному специалисту проводить без ошибок установку и техническое обс...
Страница 14 - G1; Габаритные
Luna HT 1.450-1.550-1.650 руководство для технического персонала газовые настенные котлы 14 10. Установка котла . Выберите местоположение котла , затем прикрепите шаблон к стене . Подведите трубы к входным отверстиям воды и газа , размеченным в нижней части шаблона . Настоятельно рекомендуется устан...
Страница 18 - Внимание; = 15m L
Luna HT 1.450-1.550-1.650 руководство для технического персонала газовые настенные котлы 18 Варианты дымоотводящей системы по раздельным трубам с горизонтальными наконечниками . Внимание ! Необходимо обеспечить горизонтальный наклон труб в наружную сторону не менее 1 см на каждый метр длины . Убедит...
Страница 20 - Присоединение
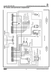
Luna HT 1.450-1.550-1.650 руководство для технического персонала газовые настенные котлы 20 13. Подключение к электропитанию Электробезопасность котла гарантируется только при правильном заземлении в соответствии с действующими нормативами . С помощью прилагаемого трехжильного кабеля подключите коте...
Страница 22 - LUNA HT; SIEMENS
Luna HT 1.450-1.550-1.650 руководство для технического персонала газовые настенные котлы 22 Рис .10 - Потери напора в теплообменниках производительность , л / ч График 1 При давлении в системе 1-1,5 бар минимальный напор воды в котле должен быть следующим : Модель LUNA HT Минимальная производительно...
Страница 23 - PROG; «kt»
Luna HT 1.450-1.550-1.650 руководство для технического персонала газовые настенные котлы 23 - QAA 73: параметры , задаваемые установщиком ( сервис - функции ) Нажав и удерживая не менее 3 секунд обе кнопки PROG , Вы получите доступ к списку параметров , которые могут быть выведены на монитор или зад...
Страница 24 - QA; без; климатическим; kt; параметр
Luna HT 1.450-1.550-1.650 руководство для технического персонала газовые настенные котлы 24 13.4 . Присоединение датчика уличной температуры . Датчик уличной температуры фирмы SIEMENS модели QA С 34 ( заказывается отдельно ) подсоединяется к клеммам 7-8 клеммной колодки М 2 ( рис .9). Порядок устано...
Страница 25 - сняв
Luna HT 1.450-1.550-1.650 руководство для технического персонала газовые настенные котлы 25 ТМ = температура воды на подаче в контур отопления Те = температура наружного воздуха График 4 с ) c AGU2.500 для управления низкотемпературным оборудованием (« теплые полы »). Для подсоединения и управления ...
Страница 26 - NTC
Luna HT 1.450-1.550-1.650 руководство для технического персонала газовые настенные котлы 26 Рис . 11 с ) c AGU2.500 для управления низкотемпературным оборудованием (« теплые полы »). Для подсоединения и управления AGU2.500 смотри инструкции , прилагаемые к данному оборудованию . В этом случае некото...
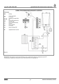
Страница 27 - Пояснения; SI
Luna HT 1.450-1.550-1.650 руководство для технического персонала газовые настенные котлы 27 СХЕМА ПРИСОЕДИНЕНИЯ ВНЕШНЕГО БОЙЛЕРА Пояснения UB бойлер UR котел с контуром отопления M2, М 3 клеммные колодки М 2 и М 3 SB датчик NTC приоритета системы ГВС Р 1 насос гидравлической стрелки Р 2 насос систем...
Страница 28 - Pi; Pl
Luna HT 1.450-1.550-1.650 руководство для технического персонала газовые настенные котлы 28 14. Настройка газового клапана . Для регулировки газового клапана выполните последовательно следующие операции : 1) регулировка максимальной мощности . Проверьте , чтобы содержание СО 2 , измеренное в дымоотв...
Страница 29 - ВАЖНО
Luna HT 1.450-1.550-1.650 руководство для технического персонала газовые настенные котлы 29 Таб .1 G20 – 2H – 20 мбар ( природный газ , номинальное давление - 20 мбар ) G31 – 3P-37 мбар ( пропан , номинальное давление – 37 мбар ) Содержание СО 2 при максимальной потребляемой тепловой мощности 8,7 % ...
Страница 30 - Таб
Luna HT 1.450-1.550-1.650 руководство для технического персонала газовые настенные котлы 30 15. Установка параметров котла . Изменить параметры котла может только квалифицированный технический специалист . Для этого необходимо : а ) одновременно нажимайте ( примерно 3 сек ) кнопки , расположенные на...