Страница 2 - Уважаемый пользователь,; УКАЗАТЕЛЬ
7112345.01 (1-01/13) 2 П о л ь з о в а т е л ь ; У с т а н о в щ и к ( ru ) Уважаемый пользователь, Мы убеждены, что приобретенное Вами изделие будет соответствовать всем Вашим требованиям. Наши изделия разработаны таким образом, чтобы обеспечить хорошую работу, простоту и легкость эксплуатации. Сох...
Страница 3 - ОПИСАНИЕ СИМВОЛОВ; использовать Ваше изделие.; МЕРЫ БЕЗОПАСНОСТИ; • Погасить открытое пламя, открыть окно.; БАКСИ
3 П о л ь з о в а т е л ь ; У с т а н о в щ и к ( ru ) 7112345.01 (1-01/13) ОПИСАНИЕ СИМВОЛОВ ПРЕДУПРЕЖДЕНИЕ Риск повреждения или неисправности при работе оборудования. Соблюдать повышенную осторожность и выполнять предупреждения о возможном риске для людей. ОПАСНОСТЬ ОЖОГОВ Подождать пока оборудова...
Страница 4 - ОБЩИЕ ПРЕДУПРЕЖДЕНИЯ; создав тем самым опасную ситуацию.; Контур отопления; следовать указаниям инструкций по их применению.; РЕКОМЕНДАЦИИ ПО ЭКОНОМИИ ЭНЕРГИИ; Управление системой отопления
7112345.01 (1-01/13) 4 П о л ь з о в а т е л ь ; У с т а н о в щ и к ( ru ) ОБЩИЕ ПРЕДУПРЕЖДЕНИЯ Котел предназначен для нагрева воды не выше температуры кипения при атмосферном давлении. Он подключается к системе отопления и к системе приготовления горячей воды в соответствии с его характеристиками ...
Страница 5 - ВВОД КОТЛА В ЭКСПЛУАТАЦИЮ; РЕГУЛИРОВКА ТЕМПЕРАТУРЫ ПОДАЧИ ОТОПЛЕНИЯ И ГОРЯЧЕЙ ВОДЫ
5 Р а з д е л П О Л Ь З О В А Т Е Л Ь ( ru ) 7112345.01 (1-01/13) 1. ВВОД КОТЛА В ЭКСПЛУАТАЦИЮ Действовать, как указано далее, для правильного включения котла: • Убедитесь, что имеется требуемое давление в системе (глава 6); • Подать электропитание к котлу. • Откройте газовый клапан (желтый, располо...
Страница 6 - ВЫКЛЮЧЕНИЕ НА ДЛИТЕЛЬНЫЙ ПЕРИОД. ЗАЩИТА ОТ ЗАМЕРЗАНИЯ; ниже 5 °C включает горелку до достижения температуры, равной 30 °C.; ПЕРЕВОД КОТЛА НА ДРУГОЙ ТИП ГАЗА; В случае необходимости смены типа газа,
7112345.01 (1-01/13) 6 Р а з д е л П О Л Ь З О В А Т Е Л Ь ( ru ) 2. ВЫКЛЮЧЕНИЕ НА ДЛИТЕЛЬНЫЙ ПЕРИОД. ЗАЩИТА ОТ ЗАМЕРЗАНИЯ Желательно избегать того, чтобы система отопления была полностью пустой, поскольку смена воды могут вызвать ненужный вредный осадок и накипь внутри котла и нагревающихся частях....
Страница 7 - МЕНЮ ИНФОРМАЦИИ О КОТЛЕ; Описание; НАПОЛНЕНИЕ СИСТЕМЫ; чтобы облегчить выход воздуха.; ИНСТРУКЦИИ ПО ПЛАНОВОМУ ТЕХОБСЛУЖИВАНИЮ; Специализированным Сервисным Центром.
7 Р а з д е л П О Л Ь З О В А Т Е Л Ь ( ru ) 7112345.01 (1-01/13) 5. МЕНЮ ИНФОРМАЦИИ О КОТЛЕ Нажмите кнопку , чтобы увидеть информацию, отраженную в следующей таблице. Для выхода нажмите на кнопку . Описание Описание 00 Внутренний код вторичной неполадки 11 Ионизационный ток 01 Температура подачи от...
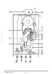
Страница 8 - ПРЕДУПРЕЖДЕНИЯ ПЕРЕД МОНТАЖОМ; “SECTION” E; Форма шаблона приведена в конце руководства в приложении; “SECTION” A
7112345.01 (1-01/13) 8 Р а з д е л У С Т А Н О В Щ И К ( ru ) ПРЕДУПРЕЖДЕНИЯ ПЕРЕД МОНТАЖОМ Следующие технические примечания и инструкции предназначены для монтажников, чтобы дать им возможность идеально провести установку. Инструкции по включению и эксплуатации котла находятся в части, предназначен...
Страница 9 - ПРЕДУПРЕЖДЕНИЯ; ТАБЛИЦА 1A; КОАКСИАЛЬНЫЕ ДЫМОХОДЫ; 0° отвод сокращает возможную полную длину трубы на 1 метр.; РАЗДЕЛЬНЫЕ ДЫМОХОДЫ; 0° отвод сокращает возможную полную длину трубы на 0,5 метра.
9 Р а з д е л У С Т А Н О В Щ И К ( ru ) 7112345.01 (1-01/13) 10. МОНТАЖ ДЫМОХОДА Установка котла может быть легкой и простой, благодаря поставляемым аксессуарам, описанным ниже. Изначально котел предназначен для подключения к вертикальному или горизонтальному коаксиальному дымоходу. Котел можно так...
Страница 10 - КАСКАДНЫЙ ТИП СОЕДИНЕНИЯ ДЫМОХОДОВ; ТАБЛИЦА 1B; ЭЛЕКТРИЧЕСКИЕ СОЕДИНЕНИЯ; “SECTION” B; КЛЕММНАЯ КОЛОДКА M1; Фаза; КЛЕММНИК M2
7112345.01 (1-01/13) 10 Р а з д е л У С Т А Н О В Щ И К ( ru ) 10.3 КАСКАДНЫЙ ТИП СОЕДИНЕНИЯ ДЫМОХОДОВ Этот тип трубок позволяет отводить продукты сгорания значительного количества котлов, подключенных “в каскад” через общий газовый коллектор. Коллектор должен использоваться только для подключения к...
Страница 11 - КЛЕММНАЯ КОЛОДКА M3; ПОДКЛЮЧЕНИЕ КОМНАТНОГО ТЕРМОСТАТА
11 Р а з д е л У С Т А Н О В Щ И К ( ru ) 7112345.01 (1-01/13) КЛЕММНАЯ КОЛОДКА M3 Клеммы 1 - 3: Неиспользуемые . Клеммы 4 - 5: Подключение насоса бойлера горячей воды. Клеммы 6 - 7: подключение насоса системы отопления (снаружи внизу гидравлического разделителя). Если котел подключен к системе тёпл...
Страница 13 - ВНЕШНИЕ МОДУЛИ УПРАВЛЕНИЯ СИСТЕМОЙ
13 Р а з д е л У С Т А Н О В Щ И К ( ru ) 7112345.01 (1-01/13) МНОГОЗОНАЛЬНЫЕ СИСТЕМЫ С РЕГУЛИРОВКОЙ С ПОМОЩЬЮ ПУЛЬТА ДИСТАНЦИОННОГО УПРАВЛЕНИЯ Электрические соединения и регулировка, необходимая для управления системой, разделенной на зоны, являются различными в зависимости от элементов, подключенн...
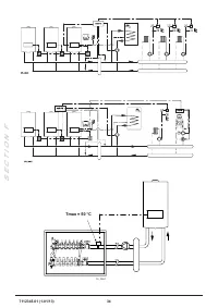
Страница 14 - СПЕЦИАЛЬНЫЕ ФУНКЦИИ; ФУНКЦИЯ УДАЛЕНИЯ ВОЗДУХА ИЗ СИСТЕМЫ ОТОПЛЕНИЯ; ФУНКЦИЯ КАЛИБРОВКИ ГАЗОВОГО КЛАПАНА; On; ФУНКЦ ОЧИСТКИ ДЫМОХОДА; НЕИСПРАВНОСТИ, КОТОРЫЕ НЕ МОГУТ БЫТЬ УСТРАНЕНЫ; НЕИСПРАВНОСТИ
7112345.01 (1-01/13) 14 Р а з д е л У С Т А Н О В Щ И К ( ru ) 11.2.7 СОЛНЕЧНАЯ СИСТЕМА (“SECTION” F) С помощью внешнего модуля AGU 2.550 , входящего в комплект поставки, вы можете управлять солнечной системой. Для подключения системы, ознакомьтесь с инструкциями, прилагаемым к устройству. ГИДРАВЛИЧ...
Страница 15 - НАСТРОЙКА ПАРАМЕТРОВ
15 Р а з д е л У С Т А Н О В Щ И К ( ru ) 7112345.01 (1-01/13) 14. НАСТРОЙКА ПАРАМЕТРОВ Для программирования параметров электронной платы котла, выполните следующие действия: • Одновременно нажмите кнопки и удерживайте в течение 6 секунд, пока на дисплее не отображается строка программы “ P02 ” , че...
Страница 16 - КАЛИБРОВКА ГАЗОВОГО КЛАПАНА; ) Настройка МАКСИМАЛЬНОЙ мощности
7112345.01 (1-01/13) 16 Р а з д е л У С Т А Н О В Щ И К ( ru ) КОНФИГУРАЦИЯ P40 5700 Не используется (НЕ изменять этот параметр) - --- --- --- P41 5710 Контур отопления в зоне 1 (1 = включено) - 1 0 1 P42 5715 Контур отопления в зоне 2 (1 = включено) - 0 0 1 P43 5730 Датчик температуры ГВС (1=датчик...
Страница 17 - ТАБЛИЦА 2; УСТРОЙСТВА ДЛЯ РЕГУЛИРОВАНИЯ И БЕЗОПАСНОСТИ; Предохранительный термостат
17 Р а з д е л У С Т А Н О В Щ И К ( ru ) 7112345.01 (1-01/13) 15.1 ЗАМЕНА ГАЗА В случае замены газа метана на газ пропан (GPL), перед тем как осуществить регулировку газового клапана, как описано выше, замените блок вентури (B) как показано на рисунке. Для замены необходимо отсоединить газопроводну...
Страница 18 - ЕЖЕГОДНОЕ ТЕХНИЧЕСКОЕ ОБСЛУЖИВАНИЕ
7112345.01 (1-01/13) 18 Р а з д е л У С Т А Н О В Щ И К ( ru ) • Гидравлическое реле давления Данное устройство обеспечивает включение основной горелки только при условии давления установки выше 0,5 бар. • Постциркуляция насоса Электронная система управления продолжает работу насоса в контуре отопле...
Страница 19 - ЧИСТКА СИФОНА СЛИВА КОНДЕНСАТА; ЧИСТКА ТЕПЛООБМЕННИКА
19 Р а з д е л У С Т А Н О В Щ И К ( ru ) 7112345.01 (1-01/13) 18.1 ЧИСТКА СИФОНА СЛИВА КОНДЕНСАТА Открутите нижнюю часть сифона “ A ” слива конденсата. • Промойте дно сифона водой. • Заполните нижнюю секцию водой до высоты 10 мм от верхней кромки. • Снова присоедините нижнюю секцию к сливному сифон...
Страница 20 - ПРОВЕРКА ГОРЕЛКИ; РАСПОЛОЖЕНИЕ ЭЛЕКТРОДОВ; ПАРАМЕТРЫ ГОРЕНИЯ ГАЗА; CO
7112345.01 (1-01/13) 20 Р а з д е л У С Т А Н О В Щ И К ( ru ) 18.3 ПРОВЕРКА ГОРЕЛКИ Горелка не нуждается в чистке.• Проверьте горелку на наличие повреждений. При необходимости замените ее. • Проверьте положение датчика пламени. • Проверьте, что расстояние электрода розжига соответствует допускам, у...
Страница 21 - ЗАМЕНА ПЛАВКОГО ТЕРМОПРЕДОХРАНИТЕЛЯ ТЕПЛООБМЕННИКА; термопредохранитель согласно указаниям главы 18.1.
21 Р а з д е л У С Т А Н О В Щ И К ( ru ) 7112345.01 (1-01/13) 19. ЗАМЕНА ПЛАВКОГО ТЕРМОПРЕДОХРАНИТЕЛЯ ТЕПЛООБМЕННИКА Термопредохранитель расположен в задней части теплообменника, как показано на рисунке, и соединен последовательно с предохранительным термостатом. Предназначен для защиты теплообменн...
Страница 22 - ТЕХНИЧЕСКИЕ ХАРАКТЕРИСТИКИ; II
7112345.01 (1-01/13) 22 Р а з д е л У С Т А Н О В Щ И К ( ru ) 20. ТЕХНИЧЕСКИЕ ХАРАКТЕРИСТИКИ Модель: LUNA DUO-TEC MP 1.90 1.99 1.110 Категория II 2H3P Тип газа - G20 - G31 Макс. потребляемая тепловая мощность кВт 87,4 95,1 104,9 Мин. потребляемая тепловая мощность (G20) кВт 9,7 11,7 11,7 Мин. потре...