Страница 2 - Уважаемый пользователь,; УКАЗАТЕЛЬ
7112341.01 (1-01/13) 2 П о л ь з о в а т е л ь ; У с т а н о в щ и к ( ru ) Уважаемый пользователь, Мы убеждены, что приобретенное Вами изделие будет соответствовать всем Вашим требованиям. Наши изделия разработаны таким образом, чтобы обеспечить хорошую работу, простоту и легкость эксплуатации. Сох...
Страница 3 - ОПИСАНИЕ СИМВОЛОВ; использовать Ваше изделие.; МЕРЫ БЕЗОПАСНОСТИ; • Погасить открытое пламя, открыть окно.; БАКСИ
3 П о л ь з о в а т е л ь ; У с т а н о в щ и к ( ru ) 7112341.01 (1-01/13) ОПИСАНИЕ СИМВОЛОВ ПРЕДУПРЕЖДЕНИЕ Риск повреждения или неисправности при работе оборудования. Соблюдать повышенную осторожность и выполнять предупреждения о возможном риске для людей. ОПАСНОСТЬ ОЖОГОВ Подождать пока оборудова...
Страница 4 - ОБЩИЕ ПРЕДУПРЕЖДЕНИЯ; создав тем самым опасную ситуацию.; Контур отопления; следовать указаниям инструкций по их применению.; РЕКОМЕНДАЦИИ ПО ЭКОНОМИИ ЭНЕРГИИ; Управление системой отопления
7112341.01 (1-01/13) 4 П о л ь з о в а т е л ь ; У с т а н о в щ и к ( ru ) ОБЩИЕ ПРЕДУПРЕЖДЕНИЯ Котел предназначен для нагрева воды не выше температуры кипения при атмосферном давлении. Он подключается к системе отопления и к системе приготовления горячей воды в соответствии с его характеристиками ...
Страница 5 - ВВОД КОТЛА В ЭКСПЛУАТАЦИЮ; РЕГУЛИРОВКА ТЕМПЕРАТУРЫ ПОДАЧИ ОТОПЛЕНИЯ И ГОРЯЧЕЙ ВОДЫ
5 Р а з д е л П О Л Ь З О В А Т Е Л Ь ( ru ) 7112341.01 (1-01/13) 1. ВВОД КОТЛА В ЭКСПЛУАТАЦИЮ Действовать, как указано далее, для правильного включения котла: • Убедитесь, что имеется требуемое давление в системе (глава 6); • Подать электропитание к котлу. • Откройте газовый клапан (желтый, располо...
Страница 6 - ВЫКЛЮЧЕНИЕ НА ДЛИТЕЛЬНЫЙ ПЕРИОД. ЗАЩИТА ОТ ЗАМЕРЗАНИЯ; ПЕРЕВОД КОТЛА НА ДРУГОЙ ТИП ГАЗА; Описание НЕИСПРАВНОСТИ
7112341.01 (1-01/13) 6 Р а з д е л П О Л Ь З О В А Т Е Л Ь ( ru ) 2. ВЫКЛЮЧЕНИЕ НА ДЛИТЕЛЬНЫЙ ПЕРИОД. ЗАЩИТА ОТ ЗАМЕРЗАНИЯ Желательно избегать того, чтобы система отопления была полностью пустой, поскольку смена воды могут вызвать ненужный вредный осадок и накипь внутри котла и нагревающихся частях....
Страница 7 - МЕНЮ ИНФОРМАЦИИ О КОТЛЕ; Описание; НАПОЛНЕНИЕ СИСТЕМЫ; чтобы облегчить выход воздуха.; ИНСТРУКЦИИ ПО ПЛАНОВОМУ ТЕХОБСЛУЖИВАНИЮ; Специализированным Сервисным Центром.
7 Р а з д е л П О Л Ь З О В А Т Е Л Ь ( ru ) 7112341.01 (1-01/13) 5. МЕНЮ ИНФОРМАЦИИ О КОТЛЕ Нажмите кнопку , чтобы увидеть информацию, отраженную в следующей таблице. Для выхода нажмите на кнопку . Описание Описание 00 Внутренний код вторичной неполадки 11 Ионизационный ток 01 Температура подачи от...
Страница 8 - ПРЕДУПРЕЖДЕНИЯ ПЕРЕД МОНТАЖОМ; “SECTION” E; Форма шаблона приведена в конце руководства в приложении; системе обеспечивается соответствующими насосами (; “SECTION”
7112341.01 (1-01/13) 8 Р а з д е л У С Т А Н О В Щ И К ( ru ) ПРЕДУПРЕЖДЕНИЯ ПЕРЕД МОНТАЖОМ Следующие технические примечания и инструкции предназначены для монтажников, чтобы дать им возможность идеально провести установку. Инструкции по включению и эксплуатации котла находятся в части, предназначен...
Страница 9 - МОНТАЖ ДЫМОХОДА И ВОЗДУХОВОДА; ПРЕДУПРЕЖДЕНИЯ; ТАБЛИЦА 1A; КОАКСИАЛЬНЫЕ ДЫМОХОДЫ; 0° отвод сокращает возможную полную длину трубы на 1 метр.; РАЗДЕЛЬНЫЕ ДЫМОХОДЫ; 0° отвод сокращает возможную полную длину трубы на 0,5 метра.
9 Р а з д е л У С Т А Н О В Щ И К ( ru ) 7112341.01 (1-01/13) 10. МОНТАЖ ДЫМОХОДА И ВОЗДУХОВОДА Установка котла может быть легкой и простой, благодаря поставляемым аксессуарам, описанным ниже. Изначально котел предназначен для подключения к вертикальному или горизонтальному коаксиальному дымоходу. К...
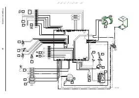
Страница 10 - КАСКАДНЫЙ ТИП СОЕДИНЕНИЯ ДЫМОХОДОВ; ТАБЛИЦА 1B; ЭЛЕКТРИЧЕСКИЕ СОЕДИНЕНИЯ; “SECTION” B; КЛЕММНАЯ КОЛОДКА M1; Фаза; КЛЕММНИК M2
7112341.01 (1-01/13) 10 Р а з д е л У С Т А Н О В Щ И К ( ru ) 10.3 КАСКАДНЫЙ ТИП СОЕДИНЕНИЯ ДЫМОХОДОВ Этот тип соединений позволяет отводить продукты сгорания от нескольких котлов, подключенных “в каскад” через общий газовый коллектор. Коллектор должен использоваться только для подключения котлов к...
Страница 11 - КЛЕММНАЯ КОЛОДКА M3; ПОДКЛЮЧЕНИЕ КОМНАТНОГО ТЕРМОСТАТА
11 Р а з д е л У С Т А Н О В Щ И К ( ru ) 7112341.01 (1-01/13) КЛЕММНАЯ КОЛОДКА M3 Клеммы 1 - 3: Неиспользуемые . Клеммы 4 - 5: Подключение насоса бойлера горячей воды. Клеммы 6 - 7: подключение насоса системы отопления (снаружи внизу гидравлического разделителя). Если котел подключен к системе тёпл...
Страница 13 - ВНЕШНИЕ МОДУЛИ УПРАВЛЕНИЯ СИСТЕМОЙ
13 Р а з д е л У С Т А Н О В Щ И К ( ru ) 7112341.01 (1-01/13) МНОГОЗОНАЛЬНЫЕ СИСТЕМЫ С РЕГУЛИРОВКОЙ С ПОМОЩЬЮ ПУЛЬТА ДИСТАНЦИОННОГО УПРАВЛЕНИЯ Электрические соединения и регулировка, необходимая для управления системой, разделенной на зоны, являются различными в зависимости от элементов, подключенн...
Страница 14 - СПЕЦИАЛЬНЫЕ ФУНКЦИИ; ФУНКЦИЯ УДАЛЕНИЯ ВОЗДУХА ИЗ СИСТЕМЫ ОТОПЛЕНИЯ; ФУНКЦИЯ КАЛИБРОВКИ ГАЗОВОГО КЛАПАНА; On; ФУНКЦ ОЧИСТКИ ДЫМОХОДА; НЕИСПРАВНОСТИ, КОТОРЫЕ НЕ МОГУТ БЫТЬ УСТРАНЕНЫ; НЕИСПРАВНОСТИ; НАСТРОЙКА ПАРАМЕТРОВ; On
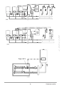
7112341.01 (1-01/13) 14 Р а з д е л У С Т А Н О В Щ И К ( ru ) 11.2.7 СОЛНЕЧНАЯ СИСТЕМА (“SECTION” F) С помощью внешнего модуля AGU 2.550 , входящего в комплект поставки, вы можете управлять солнечной системой. Для подключения системы, ознакомьтесь с инструкциями, прилагаемым к устройству. ГИДРАВЛИЧ...
Страница 16 - КАЛИБРОВКА ГАЗОВОГО КЛАПАНА; ) Настройка МАКСИМАЛЬНОЙ мощности; ) Настройка МИНИМАЛЬНОЙ мощности; Проверить, что содержание
7112341.01 (1-01/13) 16 Р а з д е л У С Т А Н О В Щ И К ( ru ) P51 6097 Тип датчика на коллекторе (1= NTC, 2= Pt 1000) - 2 1 2 P52 6110 Постоянная времени здания (зависит от степени теплоизоляции здания) часов 15 0 50 P53 6220 Версия программного обеспечения - --- 0 99 P54 6600 Адрес устройства LPB ...
Страница 17 - ТАБЛИЦА 2; УСТРОЙСТВА ДЛЯ РЕГУЛИРОВАНИЯ И БЕЗОПАСНОСТИ
17 Р а з д е л У С Т А Н О В Щ И К ( ru ) 7112341.01 (1-01/13) ТАБЛИЦА 2 ПАРАМЕТРЫ - кол-во оборотов/мин (об./мин) УСТРОЙСТВО ВЕНТУРИ Ø (мм) ГАЗОВЫЕ ФОРСУНКИ Ø (мм) CO 2 мин (%) CO 2 макс (%) CO макс (ppm) P60 ** P30 – P61 ** P59 ** Модель котла Мин. мощность Макс. мощность Мощность включения G20 G3...
Страница 18 - ЕЖЕГОДНОЕ ТЕХНИЧЕСКОЕ ОБСЛУЖИВАНИЕ
7112341.01 (1-01/13) 18 Р а з д е л У С Т А Н О В Щ И К ( ru ) • Защита от блокировки насоса Если котел не работает в течение 24 часов подряд (на контур отопления и/или подогрева воды), насос автоматически включается на 10 секунд. • Гидравлический предохранительный клапан (контур отопления) Этот кла...
Страница 19 - ЧИСТКА СИФОНА СЛИВА КОНДЕНСАТА; ЧИСТКА ТЕПЛООБМЕННИКА
19 Р а з д е л У С Т А Н О В Щ И К ( ru ) 7112341.01 (1-01/13) 18.1 ЧИСТКА СИФОНА СЛИВА КОНДЕНСАТА Открутите нижнюю часть сифона “ A ” слива конденсата. • Промойте дно сифона водой. • Заполните нижнюю секцию водой до высоты 10 мм от верхней кромки. • Снова присоедините нижнюю секцию к сливному сифон...
Страница 20 - ПРОВЕРКА ГОРЕЛКИ; РАСПОЛОЖЕНИЕ ЭЛЕКТРОДОВ; ПАРАМЕТРЫ ПРОДУКТОВ СГОРАНИЯ
7112341.01 (1-01/13) 20 Р а з д е л У С Т А Н О В Щ И К ( ru ) 18.3 ПРОВЕРКА ГОРЕЛКИ Горелка не нуждается в чистке.• Проверьте горелку на наличие повреждений. При необходимости замените ее. • Проверьте положение датчика пламени. • Проверьте, что расстояние электрода розжига соответствует допускам, у...
Страница 21 - ТЕХНИЧЕСКИЕ ХАРАКТЕРИСТИКИ; II
21 Р а з д е л У С Т А Н О В Щ И К ( ru ) 7112341.01 (1-01/13) 19. ТЕХНИЧЕСКИЕ ХАРАКТЕРИСТИКИ Модель: LUNA DUO-TEC MP 1.35 1.50 1.60 1.70 Категория II 2H3P Тип газа - G20 - G31 Макс. потребляемая тепловая мощность кВт 34,8 46,3 56,6 66,9 Мин. потребляемая тепловая мощность кВт 5,1 5,1 6,3 7,4 Макс. ...
Страница 32 - ИЗМЕНЕННЫЕ ПАРАМЕТРЫ; ЗНАЧЕНИЕ
7112341.01 (1-01/13) ИЗМЕНЕННЫЕ ПАРАМЕТРЫ № ЗНАЧЕНИЕ ПРИМЕЧАНИЕ 36061 Bassano del Grappa (VI) - ITALIAVia Trozzetti, 20Servizio clienti: tel. 0424-517800 – Telefax 0424-38089 www.baxi.it