Страница 2 - Директива о газе; УКАЗАТЕЛЬ; Оборудование может использоваться детьми не младше 8 лет, людьми
7225068.01 (1-08/15) 2 По льз ов атель; У становщик (ru) Уважаемый пользователь, Мы убеждены, что приобретенное Вами изделие будет соответствовать всем Вашим требованиям. Наши изделия разработаны таким образом, чтобы обеспечить хорошую работу, простоту и легкость эксплуатации. Сохраните это руководс...
Страница 3 - ОПИСАНИЕ СИМВОЛОВ; использовать Ваше изделие.; МЕРЫ БЕЗОПАСНОСТИ; БАКСИ
3 Польз ователь; У становщик (ru) 7225068.01 (1-08/15) ОПИСАНИЕ СИМВОЛОВ ПРЕДУПРЕЖДЕНИЕ Риск повреждения или неисправности при работе оборудования. Соблюдать повышенную осторожность и выполнять предупреждения о возможном риске для людей. ОПАСНОСТЬ ОЖОГОВ Подождать пока оборудование остынет, перед те...
Страница 4 - ОБЩИЕ ПРЕДУПРЕЖДЕНИЯ; Контур отопления; РЕКОМЕНДАЦИИ ПО ЭКОНОМИИ ЭНЕРГИИ; Управление системой отопления
7225068.01 (1-08/15) 4 По льз ов атель; У становщик (ru) ОБЩИЕ ПРЕДУПРЕЖДЕНИЯ Котел предназначен для нагрева воды не выше температуры кипения при атмосферном давлении. Он подключается к системе отопления и к системе приготовления горячей воды в соответствии с его характеристиками и мощностью. Котел ...
Страница 5 - здел ПО; ВВОД КОТЛА В ЭКСПЛУАТАЦИЮ; РЕГУЛИРОВКА ТЕМПЕРАТУРЫ ПОДАЧИ ОТОПЛЕНИЯ И ГОРЯЧЕЙ ВОДЫ
5 Р а здел ПО ЛЬЗ ОВА ТЕЛЬ (ru) 7225068.01 (1-08/15) 1. ВВОД КОТЛА В ЭКСПЛУАТАЦИЮ Действовать, как указано далее, для правильного включения котла: • Убедитесь, что имеется требуемое давление в системе (глава 6); • Подать электропитание к котлу. • Откройте газовый клапан (желтый, расположенный под ко...
Страница 6 - ВЫКЛЮЧЕНИЕ НА ДЛИТЕЛЬНЫЙ ПЕРИОД. ЗАЩИТА ОТ ЗАМЕРЗАНИЯ; ПЕРЕВОД КОТЛА НА ДРУГОЙ ТИП ГАЗА; Описание неисправности
7225068.01 (1-08/15) 6 Р а здел ПО ЛЬ З ОВ А ТЕЛЬ (ru) 2. ВЫКЛЮЧЕНИЕ НА ДЛИТЕЛЬНЫЙ ПЕРИОД. ЗАЩИТА ОТ ЗАМЕРЗАНИЯ Желательно избегать того, чтобы система отопления была полностью пустой, поскольку смена воды могут вызвать ненужный вредный осадок и накипь внутри котла и нагревающихся частях. Если в зим...
Страница 7 - МЕНЮ ИНФОРМАЦИИ О КОТЛЕ; Описание; НАПОЛНЕНИЕ СИСТЕМЫ; ИНСТРУКЦИИ ПО ПЛАНОВОМУ ТЕХОБСЛУЖИВАНИЮ
7 Р а здел ПО ЛЬЗ ОВА ТЕЛЬ (ru) 7225068.01 (1-08/15) 5. МЕНЮ ИНФОРМАЦИИ О КОТЛЕ Нажмите кнопку , чтобы увидеть информацию, отраженную в следующей таблице. Для выхода нажмите на кнопку . Описание Описание 00 Внутренний код вторичной неполадки 12 Наработка горелки в часах 01 Температура подачи отоплен...
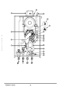
Страница 8 - здел УС; ПРЕДУПРЕЖДЕНИЯ ПЕРЕД МОНТАЖОМ; “SECTION” E; “SECTION” A
7225068.01 (1-08/15) 8 Р а здел УС Т АНОВЩИК (ru) ПРЕДУПРЕЖДЕНИЯ ПЕРЕД МОНТАЖОМ Следующие технические примечания и инструкции предназначены для монтажников, чтобы дать им возможность идеально провести установку. Инструкции по включению и эксплуатации котла находятся в части, предназначенной для поль...
Страница 9 - ПРЕДУПРЕЖДЕНИЯ; ТАБЛИЦА 1A; КОАКСИАЛЬНЫЕ ДЫМОХОДЫ; 0° отвод сокращает возможную полную длину трубы на 1 метр.; РАЗДЕЛЬНЫЕ ДЫМОХОДЫ; 0° отвод сокращает возможную полную длину трубы на 0,5 метра.
9 Р а здел УС Т АНОВЩИК (ru) 7225068.01 (1-08/15) 10. МОНТАЖ ДЫМОХОДА Установка котла может быть легкой и простой, благодаря поставляемым аксессуарам, описанным ниже. Изначально котел предназначен для подключения к вертикальному или горизонтальному коаксиальному дымоходу. Котел можно также подключит...
Страница 10 - КАСКАДНЫЙ ТИП СОЕДИНЕНИЯ ДЫМОХОДОВ; ТАБЛИЦА 1B; ЭЛЕКТРИЧЕСКИЕ СОЕДИНЕНИЯ; “SECTION” B; КЛЕММНАЯ КОЛОДКА M1; Фаза; КЛЕММНИК M2
7225068.01 (1-08/15) 10 Р а здел УС Т АНОВЩИК (ru) 10.3 КАСКАДНЫЙ ТИП СОЕДИНЕНИЯ ДЫМОХОДОВ Этот тип трубок позволяет отводить продукты сгорания значительного количества котлов, подключенных “в каскад” через общий газовый коллектор. Коллектор должен использоваться только для подключения котлов к дымо...
Страница 11 - КЛЕММНАЯ КОЛОДКА M3; ПОДКЛЮЧЕНИЕ КОМНАТНОГО ТЕРМОСТАТА
11 Р а здел УС Т АНОВЩИК (ru) 7225068.01 (1-08/15) КЛЕММНАЯ КОЛОДКА M3 Клеммы 1 - 3: Неиспользуемые . Клеммы 4 - 5: Подключение насоса бойлера горячей воды. Клеммы 6 - 7: подключение насоса системы отопления (снаружи внизу гидравлического разделителя). Если котел подключен к системе тёплых полов, мо...
Страница 13 - ВНЕШНИЕ МОДУЛИ УПРАВЛЕНИЯ СИСТЕМОЙ
13 Р а здел УС Т АНОВЩИК (ru) 7225068.01 (1-08/15) МНОГОЗОНАЛЬНЫЕ СИСТЕМЫ С РЕГУЛИРОВКОЙ С ПОМОЩЬЮ ПУЛЬТА ДИСТАНЦИОННОГО УПРАВЛЕНИЯ Электрические соединения и регулировка, необходимая для управления системой, разделенной на зоны, являются различными в зависимости от элементов, подключенных к котлу. ...
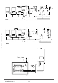
Страница 14 - ФУНКЦИЯ УДАЛЕНИЯ ВОЗДУХА ИЗ СИСТЕМЫ ОТОПЛЕНИЯ; ФУНКЦИЯ КАЛИБРОВКИ ГАЗОВОГО КЛАПАНА; On; ФУНКЦ ОЧИСТКИ ДЫМОХОДА; НЕИСПРАВНОСТИ, КОТОРЫЕ НЕ МОГУТ БЫТЬ УСТРАНЕНЫ; НЕИСПРАВНОСТИ
7225068.01 (1-08/15) 14 Р а здел УС Т АНОВЩИК (ru) 11.2.7 СОЛНЕЧНАЯ СИСТЕМА (“SECTION” F) С помощью внешнего модуля AGU 2.550 , входящего в комплект поставки, вы можете управлять солнечной системой. Для подключения системы, ознакомьтесь с инструкциями, прилагаемым к устройству. ГИДРАВЛИЧЕСКИЕ СХЕМЫ ...
Страница 15 - НАСТРОЙКА ПАРАМЕТРОВ
15 Р а здел УС Т АНОВЩИК (ru) 7225068.01 (1-08/15) 14. НАСТРОЙКА ПАРАМЕТРОВ Для программирования параметров электронной платы котла, выполните следующие действия: • Одновременно нажмите кнопки и удерживайте в течение 6 секунд, пока на дисплее не отображается строка программы “ P02 ” , чередующаяся с...
Страница 16 - КАЛИБРОВКА ГАЗОВОГО КЛАПАНА; ) Настройка МАКСИМАЛЬНОЙ мощности
7225068.01 (1-08/15) 16 Р а здел УС Т АНОВЩИК (ru) КОНФИГУРАЦИЯ P40 5700 Не используется (НЕ изменять этот параметр) - --- --- --- P41 5710 Контур отопления в зоне 1 (1 = включено) - 1 0 1 P42 5715 Контур отопления в зоне 2 (1 = включено) - 0 0 1 P43 5730 Датчик температуры ГВС (1=датчик бойлера, 2=...
Страница 17 - ТАБЛИЦА 2; УСТРОЙСТВА ДЛЯ РЕГУЛИРОВАНИЯ И БЕЗОПАСНОСТИ; Предохранительный термостат
17 Р а здел УС Т АНОВЩИК (ru) 7225068.01 (1-08/15) 15.1 ЗАМЕНА ГАЗА В случае замены газа метана на газ пропан (GPL), перед тем как осуществить регулировку газового клапана, как описано выше, замените блок вентури (B) как показано на рисунке. Для замены необходимо отсоединить газопроводную трубку (ре...
Страница 18 - ЕЖЕГОДНОЕ ТЕХНИЧЕСКОЕ ОБСЛУЖИВАНИЕ
7225068.01 (1-08/15) 18 Р а здел УС Т АНОВЩИК (ru) • Датчик ионизации пламени Электрод для определения наличия пламени гарантирует безопасность работы при отсутствии газа и при неполном горении основной горелки. В данных условиях котел блокируется. Вы должны нажать кнопку , после выяснения и устране...
Страница 19 - ЧИСТКА СИФОНА СЛИВА КОНДЕНСАТА; ЧИСТКА ТЕПЛООБМЕННИКА СО СТОРОНЫ ОТХОДЯЩИХ ГАЗОВ
19 Р а здел УС Т АНОВЩИК (ru) 7225068.01 (1-08/15) 18.1 ЧИСТКА СИФОНА СЛИВА КОНДЕНСАТА Открутите нижнюю часть сифона “ A ” слива конденсата. • Промойте дно сифона водой. • Заполните нижнюю секцию водой до высоты 10 мм от верхней кромки. • Снова присоедините нижнюю секцию к сливному сифону. Включение...
Страница 20 - ПРОВЕРКА ГОРЕЛКИ; РАСПОЛОЖЕНИЕ ЭЛЕКТРОДОВ; ПАРАМЕТРЫ ГОРЕНИЯ ГАЗА; CO
7225068.01 (1-08/15) 20 Р а здел УС Т АНОВЩИК (ru) 18.3 ПРОВЕРКА ГОРЕЛКИ Горелка не нуждается в чистке. • Проверьте горелку на наличие повреждений. При необходимости замените ее. • Проверьте положение датчика пламени. • Проверьте, что расстояние электрода розжига соответствует допускам, указанным на...
Страница 21 - ЗАМЕНА ПЛАВКОГО ТЕРМОПРЕДОХРАНИТЕЛЯ ТЕПЛООБМЕННИКА
21 Р а здел УС Т АНОВЩИК (ru) 7225068.01 (1-08/15) 19. ЗАМЕНА ПЛАВКОГО ТЕРМОПРЕДОХРАНИТЕЛЯ ТЕПЛООБМЕННИКА Термопредохранитель расположен в задней части теплообменника, как показано на рисунке, и соединен последовательно с предохранительным термостатом. Предназначен для защиты теплообменника от перег...
Страница 22 - ТЕХНИЧЕСКИЕ ХАРАКТЕРИСТИКИ; II
7225068.01 (1-08/15) 22 Р а здел УС Т АНОВЩИК (ru) 20. ТЕХНИЧЕСКИЕ ХАРАКТЕРИСТИКИ Модель: LUNA DUO-TEC MP 1.90 1.99 1.110 Категория II 2H3P Тип газа - G20 - G31 Макс. потребляемая тепловая мощность кВт 87,4 95,1 104,9 Мин. потребляемая тепловая мощность (G20) кВт 9,7 11,7 11,7 Мин. потребляемая тепл...