Страница 2 - Содержание; Используемые обозначения; Производитель оставляет за собой право без; Свидетельство о приемке
2 Содержание Используемые обозначения ВНИМАНИЕ! Требования, несоблюдение которых может приве-сти к тяжелой травме или серьезному поврежде-нию оборудования. ОСТОРОЖНО! Требования, несоблюдение которых может при-вести к серьезной травме или летальному исходу. ПРИМЕЧАНИЕ: 1. В тексте данной инструкции ...
Страница 5 - Подготовка к работе; Монтаж тепловой завесы
5 Технические характеристики Параметр BHC-H10T12-PS BHC-H15T18-PS BHC-H20T24-PS BHC-H20T36-PS Номинальная потребляемая мощность, кВт 12,0 18,0 24,0 36,0 Частичная потребляемая мощность, кВт 6,0 9,0 12,0 18,0 Мощность в режиме максимальной вентиляции, Вт 320 360 650 650 Напряжение питания, В~Гц 380~5...
Страница 6 - Модель
6 Подготовка к работе Вертикальная установка При вертикальном монтаже завесы ее необходи- мо располагать таким образом, чтобы выпуск воз- духа по возможности наиболее близко находился к плоскости проема, а срез выпускающего сопла – на уровне верхней кромки дверной рамы. При монтаже необходимо следит...
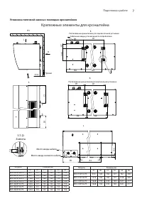
Страница 7 - Установка тепловой завесы с помощью кронштейнов; Крепежные элементы для кронштейна; Проем; места; Место ввода силового кабеля
7 Подготовка к работе Установка тепловой завесы с помощью кронштейнов Крепежные элементы для кронштейна Расположение кронштейнов для вертикальной установки B1 L K Проем 31,5 S S C1 D1 К А1 B1 А1 26 135 B1 Место ввода кабеля I (1:2) 4 места R3,5 14 Место ввода силового кабеля L B2 А2 Расположение кро...
Страница 8 - Инструкция по установке завес:; закрепить кронштейны к несущей конструк-; Шайба ø6 оцинкованная; Вид сверху; Схема крепления завесы
8 Подготовка к работе Инструкция по установке завес: 1. закрепить кронштейны к несущей конструк- ции, согласно размерам; 2. вкрутить наполовину болты в верхние отвер- стия завесы; 3. навесить изделие на кронштейны; 4. вкрутить болты в нижние отверстия; 5. затянуть болты крепления накидным или рожков...
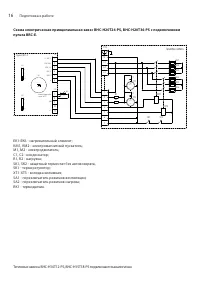
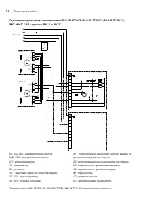
Страница 9 - Подключение к электрической сети; Далее приведены электрические схемы завес:; Схема электрическая принципиальная; Групповое подключение тепловых завес ВНС; Принципиальная схема тепловой завесы ВНС; PDF created with pdfFactory Pro trial version
9 Подготовка к работе Подключение к электрической сети ВНИМАНИЕ! Тепловая завеса должна подключаться специали-стами, имеющими соответствующую группу допу-ска по электробезопасности. Подключение к электросети осуществляется че-рез автоматический выключатель в соответствии с «Правилами эксплуатации эл...
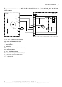
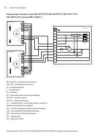
Страница 15 - Схема электрическая принципиальная завес; SK1 - защитный термостат без автовозврата
15 Схема электрическая принципиальная завесы ВНС- Н10Т12-PS. Схема электрическая принципиальная завесы ВНС- Н15Т18-PS. Подготовка к работе EK1 EK2 EK3 EK4 EK5 EK6 KM2 KM1 1 2 3 4 5 6 7 R1 M1 M ~ C1 SK1 L1 L2 L3 N ÕÒ1 R2 Òåïëîâàÿ çàâåñà EK1 EK2 EK3 EK4 EK5 EK6 KM2 KM1 1 2 3 4 5 6 7 M1 M ~ C1 SK1 L1 L...
Страница 21 - Управление прибором; Вентиляция с подогревом потока воздуха.
21 ние характерного запаха и дыма (происходит сго- рание масла с поверхности электронагревателей). Поэтому рекомендуется перед установкой вклю- чить завесу в режиме подогрева на 10-20 минут в хорошо проветриваемом помещении. Управление прибором Управление завесами осуществляется с помо- щью выносног...
Страница 22 - ПРИМЕЧАНИЕ; Поиск и устранение неисправностей; Если завеса не включается
22 ного цвета); 5 - поворотный потенциометр (термостат) для за- дания необходимой температуры воздуха в поме- щении. 6 – переключатель включения режима защиты от проникновения уличного воздуха; 7 – переключатель выбора времени работы в ре- жиме защиты от проникновения уличного воздуха после закрытия...
Страница 23 - Если снизилась скорость воздушного потока,; Уход и обслуживание; Транспортировка и хранение; Комплектация
23 грев, открутить колпачковую гайку, нажать на кнопку защитного термостата на верхней плоскости завесы и повторно включить завесу. Расположение аварийного термостата с кол- пачковой гайкой на картинке ниже: Колпачковая гайка термостата ВНИМАНИЕ! При срабатывании устройства аварийного от- ключения, ...
Страница 24 - Товар сертифицирован на территории
24 Кронштейны для подвеса- 2 шт. Кабельный ввод - 2 шт. Руководство по эксплуатации с гарантийным тало- ном – 1 шт. Упаковка – 1 шт Срок службы прибора Срок службы тепловой завесы 7 лет. Гарантия Гарантийное обслуживание прибора производит- ся в соответствии с гарантийными обязательства- ми, перечис...
Страница 25 - ГАРАНТИЙНЫЙ ТАЛОН; ТИП
ГАРАНТИЙНЫЙ ТАЛОН Настоящий документ не ограничивает определенные законом права потребителей,но дополняет и уточняет оговоренные законом обязательства, предполагающие соглашение сторон либо договор ТИП Срок службы Сплит-системы, мобильные кондиционеры, осушители, электрические обогреватели (конвекто...
Страница 26 - Настоящая гарантия не распространяется на:
ТИП Гарантийный срок 4 Инфракрасные обогреватели для встройки в подвесные потолки (серия BIH-S) 5 (пять) лет Сплит-системы (BSE, BSEI, BSA, BSAI, B2OI-FM, B3OI-FM, B4OI-FM, BSEI-FM, BCFI-FM, BDI-FM, BCI-FM) 1 , мобильные кондиционеры (BPHS), осушители воздуха (BDM), электрические конвекторы, электри...
Страница 27 - Особые условия эксплуатации кондиционеров; В обязательном порядке при эксплуатации ультразвуко-
• дефектов, возникших вследствие попадания внутрь из- делия посторонних предметов, жидкостей, кроме пред-усмотренных инструкцией по эксплуатации, насекомых и продуктов их жизнедеятельности и т. д.; • неправильного хранения изделия;• необходимости замены ламп, фильтров, элементов пита- ния, аккумулят...
Страница 28 - Памятка по уходу за кондиционером:
2. Перед началом эксплуатации воздухоочистителя извле- ките фильтры из упаковки. Для нормального распреде-ления очищенного воздуха по объему помещения не устанавливайте воздухоочиститель в воздушном потоке (на сквозняке, перед вентилятором и т. д.). Повреждение фильтра может привести к снижению эффе...
Страница 29 - сохраняется у клиента; Заполняется продавцом; УНИВЕРСАЛЬНЫЙ ОТРЫВНОЙ ТАЛОН; УНИВЕРСАЛЬНЫЙ ОТРЫВНОЙ ТАЛОН
ГАРАНТИЙНЫЙ ТАЛОН сохраняется у клиента ГАРАНТИЙНЫЙ ТАЛОН сохраняется у клиента Заполняется продавцом Заполняется продавцом Модель _____________________________________ Серийный номер ____________________________ Дата продажи _______________________________ Название продавца ________________________...