Ballu BHC-M20T18-PS - Инструкция по эксплуатации

Ballu BHC-M20T18-PS

Тепловая завеса Ballu BHC-M20T18-PS - инструкция пользователя по применению, эксплуатации и установке на русском языке. Мы надеемся, она поможет вам решить возникшие у вас вопросы при эксплуатации техники.

Если остались дополнительные вопросы — свяжитесь с нами через контактную форму.

1 Страница 1
2 Страница 2
3 Страница 3
4 Страница 4
5 Страница 5
6 Страница 6
7 Страница 7
8 Страница 8
9 Страница 9
10 Страница 10
11 Страница 11
12 Страница 12
13 Страница 13
14 Страница 14
15 Страница 15
16 Страница 16
17 Страница 17
18 Страница 18
19 Страница 19
20 Страница 20
21 Страница 21
22 Страница 22
23 Страница 23
24 Страница 24
25 Страница 25
26 Страница 26
27 Страница 27
28 Страница 28
29 Страница 29
30 Страница 30
31 Страница 31
32 Страница 32
Страница: / 32

Содержание:

  • Страница 2 – Содержание; Используемые обозначения; Производитель оставляет за собой право без; Свидетельство о приемке
  • Страница 5 – Подготовка к работе; Монтаж тепловой завесы
  • Страница 6 – Модель
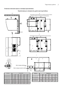
  • Страница 7 – Установка тепловой завесы с помощью кронштейнов; Крепежные элементы для кронштейна; Проем; места; Место ввода силового кабеля
  • Страница 8 – Инструкция по установке завес:; закрепить кронштейны к несущей конструк-; Шайба ø6 оцинкованная; Вид сверху; Схема крепления завесы
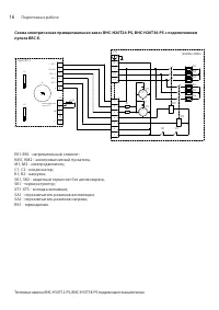
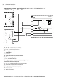
  • Страница 9 – Подключение к электрической сети; Далее приведены электрические схемы завес:; Схема электрическая принципиальная; Групповое подключение тепловых завес ВНС; Принципиальная схема тепловой завесы ВНС; PDF created with pdfFactory Pro trial version
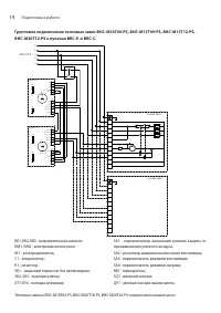
  • Страница 15 – Схема электрическая принципиальная завес; SK1 - защитный термостат без автовозврата
  • Страница 21 – Управление прибором; Вентиляция с подогревом потока воздуха.
  • Страница 22 – ПРИМЕЧАНИЕ; Поиск и устранение неисправностей; Если завеса не включается
  • Страница 23 – Если снизилась скорость воздушного потока,; Уход и обслуживание; Транспортировка и хранение; Комплектация
  • Страница 24 – Товар сертифицирован на территории
  • Страница 25 – ГАРАНТИЙНЫЙ ТАЛОН; ТИП
  • Страница 26 – Настоящая гарантия не распространяется на:
  • Страница 27 – Особые условия эксплуатации кондиционеров; В обязательном порядке при эксплуатации ультразвуко-
  • Страница 28 – Памятка по уходу за кондиционером:
  • Страница 29 – сохраняется у клиента; Заполняется продавцом; УНИВЕРСАЛЬНЫЙ ОТРЫВНОЙ ТАЛОН; УНИВЕРСАЛЬНЫЙ ОТРЫВНОЙ ТАЛОН
Загрузка инструкции

Руководство

по эксплуатации

Гарантийный талон

Перед началом эксплуатации прибора внимательно

изучите данное руководство и храните его в доступном месте.

Тепловые завесы электрические

стационарные

Code-128

BHC-H10T12-PS |
BHC-H15T18-PS |
BHC-H20T24-PS |
BHC-H20T36-PS |

BHC-M10T06-PS |
BHC-M10T09-PS |
BHC-M15T09-PS |
BHC-M15T12-PS |
BHC-M20T12-PS |
BHC-M20T18-PS |
BHC-M20T24-PS

|

Пульт BRC-E

c электронным термостатом

в комплекте

"Загрузка инструкции" означает, что нужно подождать пока файл загрузится и можно будет его читать онлайн. Некоторые инструкции очень большие и время их появления зависит от вашей скорости интернета.

Краткое содержание

Страница 2 - Содержание; Используемые обозначения; Производитель оставляет за собой право без; Свидетельство о приемке

2 Содержание Используемые обозначения ВНИМАНИЕ! Требования, несоблюдение которых может приве-сти к тяжелой травме или серьезному поврежде-нию оборудования. ОСТОРОЖНО! Требования, несоблюдение которых может при-вести к серьезной травме или летальному исходу. ПРИМЕЧАНИЕ: 1. В тексте данной инструкции ...

Страница 5 - Подготовка к работе; Монтаж тепловой завесы

5 Технические характеристики Параметр BHC-H10T12-PS BHC-H15T18-PS BHC-H20T24-PS BHC-H20T36-PS Номинальная потребляемая мощность, кВт 12,0 18,0 24,0 36,0 Частичная потребляемая мощность, кВт 6,0 9,0 12,0 18,0 Мощность в режиме максимальной вентиляции, Вт 320 360 650 650 Напряжение питания, В~Гц 380~5...

Страница 6 - Модель

6 Подготовка к работе Вертикальная установка При вертикальном монтаже завесы ее необходи- мо располагать таким образом, чтобы выпуск воз- духа по возможности наиболее близко находился к плоскости проема, а срез выпускающего сопла – на уровне верхней кромки дверной рамы. При монтаже необходимо следит...

Характеристики

Другие модели - Тепловые завесы Ballu

Все тепловые завесы Ballu