Водонагреватели STIEBEL ELTRON SHW 400 S 1755х750х865 мм, 121.5 кг, G1/G1 182122 - инструкция пользователя по применению, эксплуатации и установке на русском языке. Мы надеемся, она поможет вам решить возникшие у вас вопросы при эксплуатации техники.
Если остались вопросы, задайте их в комментариях после инструкции.
"Загружаем инструкцию", означает, что нужно подождать пока файл загрузится и можно будет его читать онлайн. Некоторые инструкции очень большие и время их появления зависит от вашей скорости интернета.

w
ww.stiebel-eltron.com
SHW S |
85
РУ
СС
КИЙ
МОНТАЖ
Технические характеристики
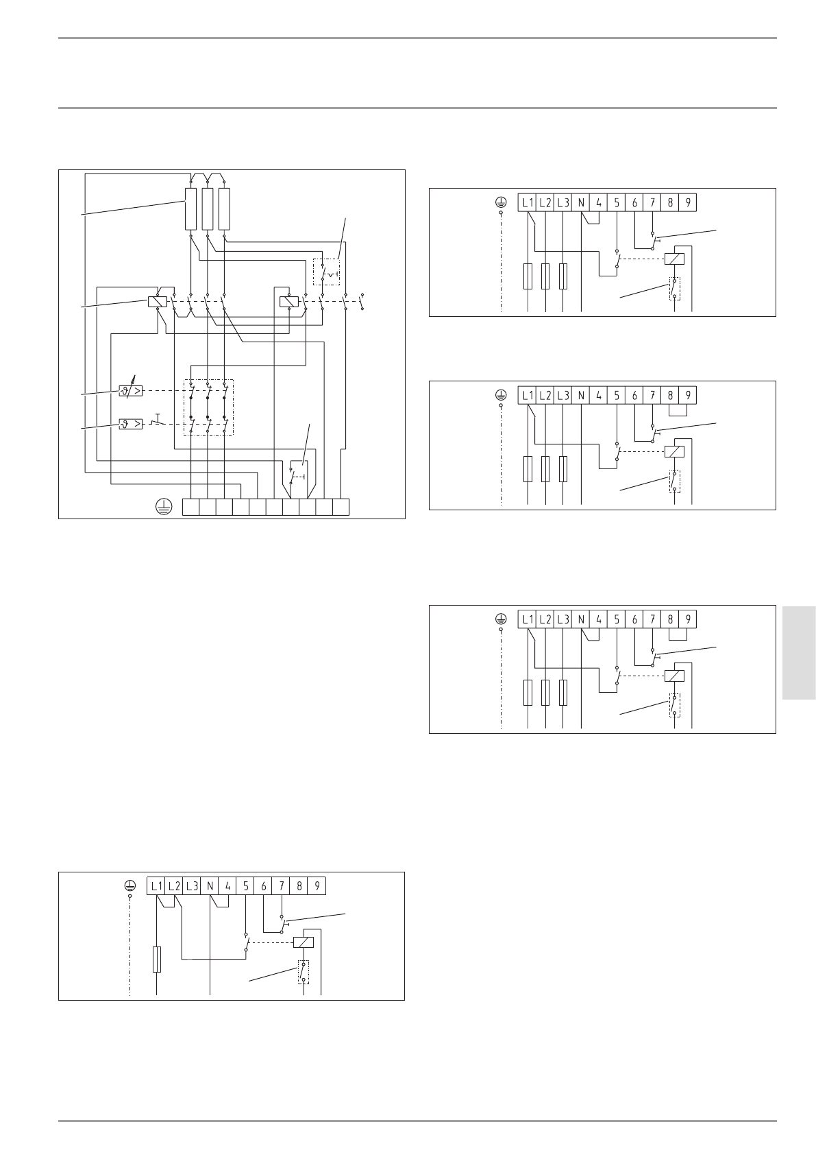
16.2 Электрические схемы и соединения
L1 L2 L3 N 4 5 6 7 8 9
1
II
3
I
2
2
1
5
4
3
6
26
�0
2�
79
�0
06
0
1 Переключатель мощности в распределительном
отсеке
2 Кнопка ускоренного нагрева
3 Предохранительный ограничитель температуры
4 Терморегулятор
5 Контактор
6 Нагревательные элементы по 2 кВт, ~ 230 В
Двухконтурный режим, одноканальный
счетчик с контактом для подключения к системе
энергоснабжающего предприятия
Для следующих примеров подключения мощность уско-
ренного нагрева в период действия высокого тарифа ука-
зана после наклонной черты.
Следить за положением переключателя мощности в рас-
пределительном отсеке.
2/4 кВт
Положение пере-
ключателя I
1-ф./N/PE ~ 230 В
4/4 кВт
Положение пере-
ключателя II
1-ф./N/PE ~ 230 В
2
1
26
�0
2�
79
�0
06
1
2/6 кВт
Положение пере-
ключателя I
3-ф./N/PE ~ 400 В
2
1
26
�0
2�
79
�0
062
3/6 кВт
Положение пере-
ключателя I
3-ф./N/PE ~ 400 В
2
1
26
�0
2�
79
�0
06
3
4/6 кВт
Положение пере-
ключателя I
3-ф./N/PE ~ 400 В
6/6 кВт
Положение пере-
ключателя II
3-ф./N/PE ~ 400 В
2
1
26
�0
2�
79
�0
06
4
1 Кнопка ускоренного нагрева
2 Контакт для подключения энергоснабжающего
предприятия













