Водонагреватели Gorenje TGU100V6 - инструкция пользователя по применению, эксплуатации и установке на русском языке. Мы надеемся, она поможет вам решить возникшие у вас вопросы при эксплуатации техники.
Если остались вопросы, задайте их в комментариях после инструкции.
"Загружаем инструкцию", означает, что нужно подождать пока файл загрузится и можно будет его читать онлайн. Некоторые инструкции очень большие и время их появления зависит от вашей скорости интернета.

6
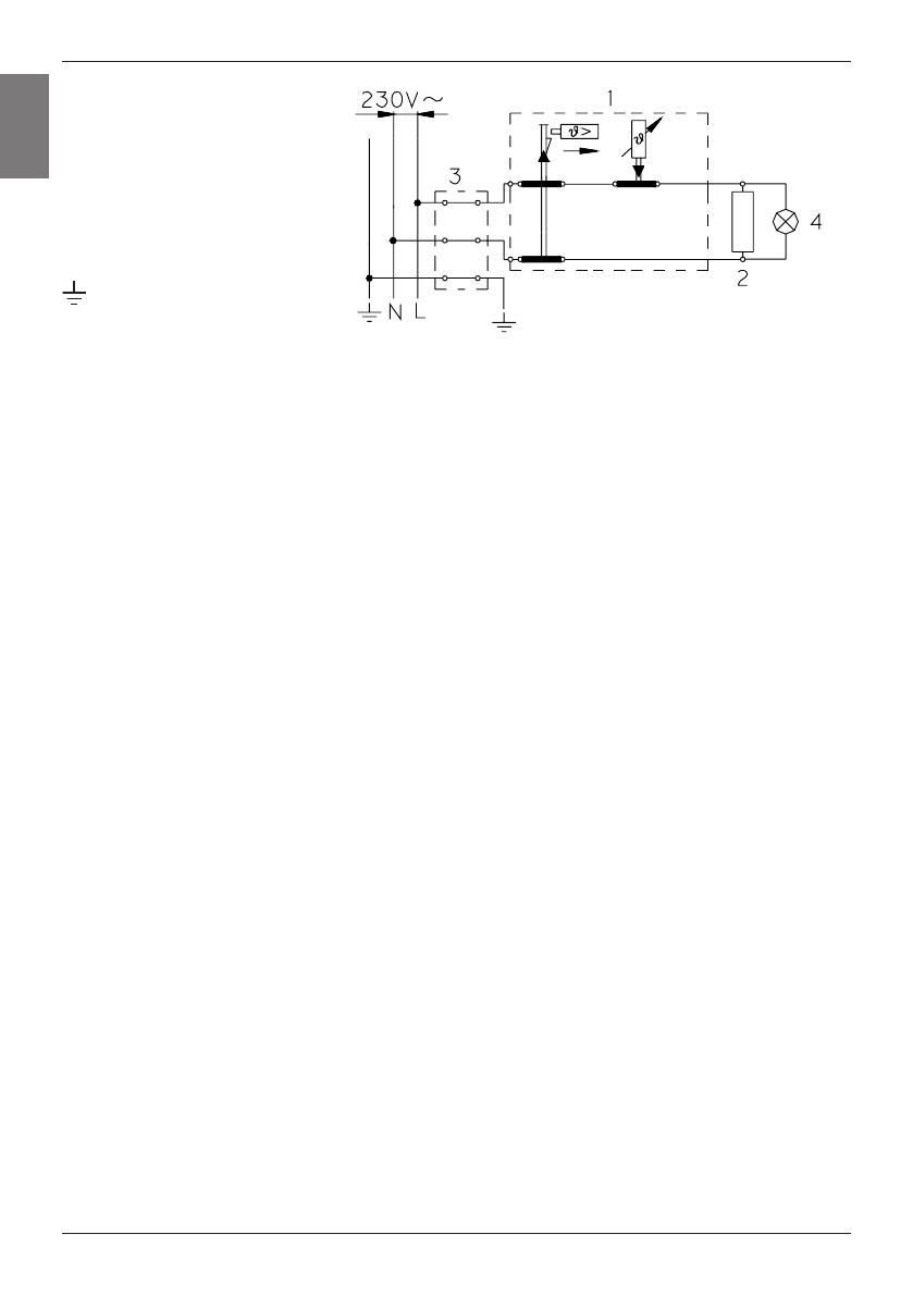
Legenda:
1 - Termostat in dvopolna
toplotna varovalka
2 - Grelo
3 - Priključna sponka
4 - Kontrolna svetilka
L - Fazni vodnik
N - Nevtralni vodnik
- Zaščitni vodnik
Shema električne vezave
OPOZORILO: Pred vsakim posegom v njegovo notranjost morate grelnik
obvezno izključiti iz električnega omrežja!
UPORABA IN VZDRŽEVANJE
Po priključitvi na vodovodno in električno omrežje je grelnik pripravljen za uprabo. Temperaturo
vode v aparatu samodejno uravnava termostat, ki je nastavljen tovarniško. Nastavitev lahko
spremenite z vrtenjem nastavitvenega vijaka na termostatu v notranjosti grelnika. Nastavljivo
območje sega od 20 do 75°C. Spreminjanja tovarniške nastavitve vam ne priporočamo,
saj vam ta zagotavlja najbolj ekonomično porabo električne energije in najmanjše izločanje
vodnega kamna.
Delovanje električnega grela pokaže kontrolna svetilka. Grelnik ima na sprednji strani bimetalni
termometer, ki se odkloni v smeri urnega kazalca, kadar je v njem prisotna topla voda.
Če grelnika ne mislite uporabljati dalj časa, ga izklopite iz električnega omrežja. Kadar obstaja
nevarnost, da bo voda v grelniku zmrznila, jo morate iz njega iztočiti. Voda iz grelnika se
izprazni skozi dotočno cev grelnika. V ta namen je priporočljivo ob vgradnji med varnostni ventil
in dotočno cev namestiti poseben fiting (T-člen) ali izpustni ventil. Grelnik lahko izpraznite
tudi neposredno skozi varnostni ventil s pomikom ročice oziroma s pomikom vrtljive kapice
v položaj kot pri preverjanju delovanja. Pred izpraznjenem je grelnik potrebno izključiti iz
električnega omrežja in nato odpreti ročico za toplo vodo na priključeni mešalni bateriji. Po
izpraznitvi vode skozi dotočno cev, v grelniku ostane manjša količina vode, ki izteče skozi
odprtino grelne prirobnice ob odstranitvi grelne prirobnice.
Zunanjost grelnika čistite z blago raztopino pralnega praška. Ne uporabljajte razredčil in grobih
čistilnih sredstev.
Z rednimi servisnimi pregledi boste zagotovili brezhibno delovanje in dolgo življenjsko dobo
grelnika. Garancija za prerjavenje kotla velja le, če ste izvajali predpisane redne preglede
izrabljenosti zaščitne anode. Obdobje, med posameznimi rednimi pregledi, ne sme biti daljše
od 36 mesecev. Pregledi morajo biti izvedeni s strani pooblaščenega serviserja, ki Vam pregled
evidentira na garancijskem listu proizvoda. Ob pregledu preveri izrabljenost protikorozijske
zaščitne anode in po potrebi očisti vodni kamen, ki se glede na kakovost, količino in temperaturo
porabljene vode nabere v notranjosti grelnika. Servisna služba vam bo po pregledu grelnika
glede na ugotovljeno stanje priporočila tudi datum naslednje kontrole.
Prosimo Vas, da morebitnih okvar na grelniku ne popravljate sami, ampak o njih
obvestite najbližjo pooblaščeno servisno službo.
SL
O