Водонагреватели Gorenje TGU100V6 - инструкция пользователя по применению, эксплуатации и установке на русском языке. Мы надеемся, она поможет вам решить возникшие у вас вопросы при эксплуатации техники.
Если остались вопросы, задайте их в комментариях после инструкции.
"Загружаем инструкцию", означает, что нужно подождать пока файл загрузится и можно будет его читать онлайн. Некоторые инструкции очень большие и время их появления зависит от вашей скорости интернета.

54
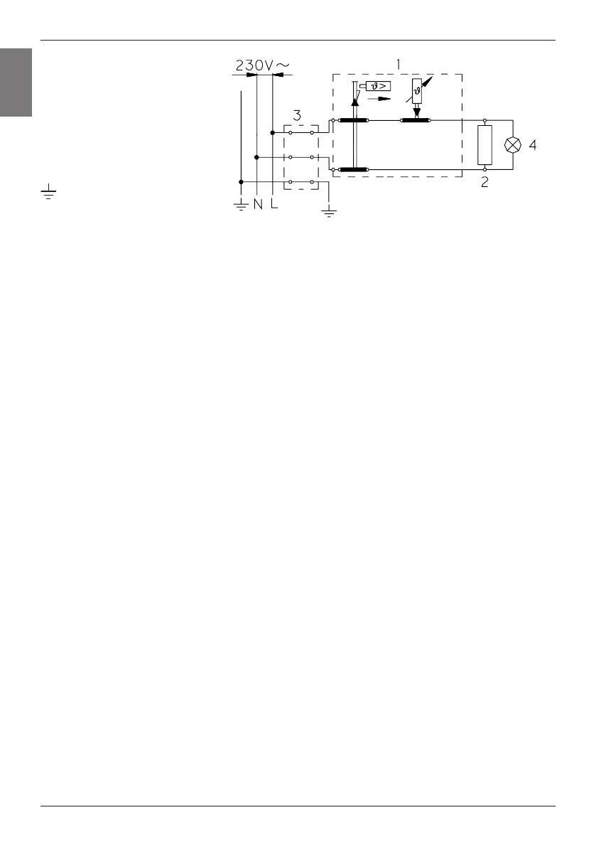
Legjendi:
1 - Termostati dhe siguresa
dypolëshe ngrohëse
2 - Ngrohësi
3 - Gjuhëza aderuese
4 - Dritëza kontrolluese
L - Tejçuesi fazor
N - Tejçuesi neutral
- Tejçuesi mbrojtës
Skema e lidhjes elektrike
VËRREJTJE: Para çdo ndërhyrje në brendësi të bojlerit, ate patjetër
shkyçni nga rrjeta elektrike!
PËRDORIMI DHE MIRËMBAJTJA
Pas kyçjes në rrjetën e ujit dhe të rrymës elektrike, nxehësi i ujit ashtë i pregaditur për përdorim.
Temperaturën e ujit në aparat automatikisht e rregullon termostati, i cili ashtë i rregulluar fabrikisht.
Rregullimin mund t’a ndryshoni me rrotullimin e vidhës rregulluese në termostat, në brendësinë
e bojlerit. Zona rregulluese arrin prej 20 e deri në 75°C. Ndryshimin e rregullimit fabrikor nuk e
preferojmë, sepse, ai ju mundëson shpenzim ekonomik të energjisë elektrike dhe veçimin më
të vogël të gurit të ujit. Funksionimin e nxehësit elektrik e tregon dritëza kontrolluese. Ngrohësi
i ujit përban në shtëpizë termometër bimetal i cili mënjanohet në drejtim të akrepit të orës kah e
djathta, kur në ngrohës gjendet uji i ngrohtë. Nëqoftëse nuk keni ndërmend që bojlerin të përdorni
gjatë kohë, shkyçnja nga rrjeta elektrike. Kur egziston rreziku i ngrirjes së ujit në bojler, ate duhet
shprazur. Uji nga ngrohësi zbrazet nëpërmjet të gypit furnizues të ngrohësit. Për këte qëllim,
tek instalimi rekomandohet, që ndërmjet të ventilit sigurues dhe gypit furnizues të ngrohësit të
vendohet një fiting i posaçëm (T-copë) ose ventil shkarkues. Ngrohësin mund të zbrazni edhe
drejtpërdrejt nëpërmjet të ventilit sigurues me lëvizjen e dorëzës, resp. kapakut rrotullues të
ventilit, në pozicion siç tek kontrollimi i funksionimit. Paraprakisht të zbrazjes, ngrohësin nevojitet
të shkyçim nga rrjeta elektrike dhe pastaj të çelet dorëza për ujin e ngrohtë në rubinetë (baterinë
përziese) të ujit. Pas zbrazjes së ujit nëpër gypin furnizues, në ngrohës mbetet sasi e vogël e ujit,
i cili rrjedh tek evitimi i fllanxhës ngrohësë nëpërmjet të hapësirës së fllanxhës ngrohëse.
Jashtësinë e ujëngrohësit e pastroni me tretësirën e lehtë të lëndës për pastrim të pluhurt. Mos
përdorni lëndë pastruese të vrazhdëta.
Me kontrolet e rregullta servisore, do të mundësoni punimin e papengueshëm dhe jetën e gjatë të
punimint të ujëngrohësit. Garancioni për ndryshkjen e kazanit vlen vetëm nëqoftëse i keni realizuar
kontrolet e rregullta të harxhimit të anodës mbrojtëse. Koha ndërmjet të kontroleve të posaçme
dhe të rregullta, nuk guxon të jetë më e gjatë se 36 muaj. Është e nevojshme, që kontrolet të
jenë realizuar nga ana e serviserit të autorizuar, i cili evidenton kontrolin në fletëgarancionin e
prodhimit. Në rast të kontrolit, ai kontrolon harxhueshmërinë e anodës mbrojtëse kundër korodimit,
sipas nevojës, pastron gurin gëlqeror, i cili, në bazë të kualitetit, sasisë dhe temperaturës së ujit të
harxhuar, tubohet në brendësi të ujëngrohësit. Pas kontrolit të ujëngrohësit, shërbimi servisor, në
bazë të gjendjes së përcaktuar do të ju preferojë edhe datën e kontrolës vijuese.
Ju lutemi, që prishjet eventuele në bojler të mos i ndreqni vetë, por për ata lajmëroni
shërbimin më të afërt të autorizuar servisor.
ALB