Водонагреватели Gorenje TGU100V6 - инструкция пользователя по применению, эксплуатации и установке на русском языке. Мы надеемся, она поможет вам решить возникшие у вас вопросы при эксплуатации техники.
Если остались вопросы, задайте их в комментариях после инструкции.
"Загружаем инструкцию", означает, что нужно подождать пока файл загрузится и можно будет его читать онлайн. Некоторые инструкции очень большие и время их появления зависит от вашей скорости интернета.

10
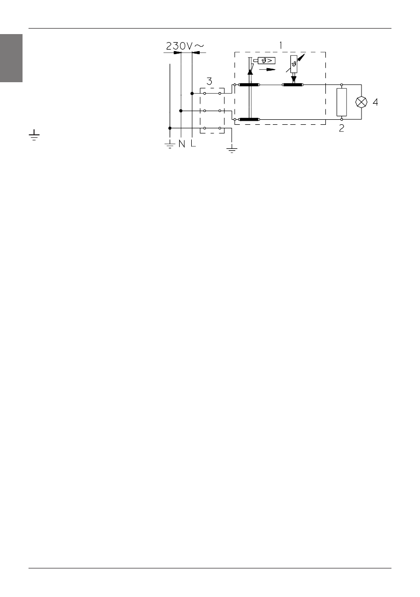
Legend:
1 - Thermostat and
bipolar thermal fuse
2 - Electric heater
3 - Connection terminal
4 - Pilot lamp
L - Live conductor
N - Neutral conductor
- Earthing conductor
CAUTION: Prior to each reach in the inner of the water heater it must absolutely
be disconnected from the electric network!
USE AND MAINTENANCE
After the connection to water and electric network the water heater is ready for use. Temperature
of water in the appliance is automatically controlled by the thermostat which is adjusted by the
manufacturer. The adjustment can be modified by turning of the adjustment screw upon the
thermostat in the inner of the water heater. The adjustment range reaches between 20°C and
75°C. We do not recommend any change of the manufacturers adjustment, thus this ensures the
most economical consumption of electric energy and the smallest excretion of lime-stone.
The operation of electric immersion heater is shown by pilot light. On the front side of the water
heater a bimetal thermometer is mounted, pointing clockwise (to the right) whenever there is hot
water in the water heater.
When the heater shall not be used during a longer time, it must be disconnected from the electric
network. At any risk for freezing of water in the water heater, the water must be emptied from
it. Water is discharged from the heater via inlet pipe. To this purpose, a special fitting (T-fitting)
should be mounted between the relief valve and the heater inlet pipe, or a discharge tap. The
heater can be discharged directly through the relief valve, by rotating the handle or the rotating
valve cap to same position as for checking the operation. Before discharge, make sure the heater
is disconnected from the power supply, open the hot water on the connected mixer tap. After
discharging through the inlet pipe, there is still some water left in the water heater. The remaining
water will be discharged after removing the heating flange, through the heating flange opening.
The external parts of the water heater may be cleaned with a mild detergent solution. Do not use
solvents and abrasives.
Regular preventive maintenance inspections ensure faultless performance and long life of your
heater. The first of these inspections should be carried out by the authorised maintenance service
provider about two years from installation in order to inspect the wear of the protective anticorrosion
anode and remove the lime coating and sediment as required. The lime coating and sediment on
the walls of the tank and on the heating element is a product of quality, quantity and temperature
of water flowing through the water heater. The maintenance service provider shall also issue a
condition report and recommend the approximate date of the next inspection.
Never try to repair any possible faults of the water heater by yourself, but inform about it
the nearest authorised service workshop.
Electric installation
EN