Водонагреватели Electrolux EWH 80 SmartInverter PRO - инструкция пользователя по применению, эксплуатации и установке на русском языке. Мы надеемся, она поможет вам решить возникшие у вас вопросы при эксплуатации техники.
Если остались вопросы, задайте их в комментариях после инструкции.
"Загружаем инструкцию", означает, что нужно подождать пока файл загрузится и можно будет его читать онлайн. Некоторые инструкции очень большие и время их появления зависит от вашей скорости интернета.

УКРАЇНСЬКА
29
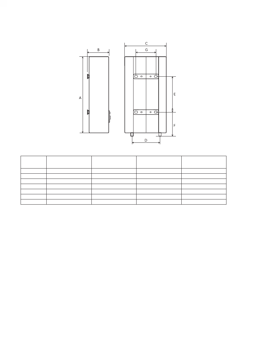
Габаритні розміри
SmartInverter
PRO 30
SmartInverter
PRO 50
SmartInverter
PRO 80
SmartInverter
PRO 100
A, мм
635
970
890
1075
B, мм
250
250
333
333
C, мм
435
435
555
555
D, мм
360
360
430
430
E, мм
280
550
430
600
F, мм
201
201
267
267
G, мм
197
197
197
197
Содержание
- 3 РУССКИЙ; Введение
- 5 Панель управления
- 7 Схема меню настроек SmartInverter PRO
- 8 Язык; Управление прибором; Первичная настройка подключения; Монтаж водонагревателя
- 9 Подключение к водопроводу
- 10 Эксплуатация
- 11 Устранение неполадок; Подключение к электросети
- 12 УЗО (устройство защитного; Уход и техническое
- 13 Комплектация
- 14 Сертификация; Товар сертифицирован на территории
- 15 Габаритные размеры
- 30 Га ран тий ный та лон
Характеристики
Остались вопросы?Не нашли свой ответ в руководстве или возникли другие проблемы? Задайте свой вопрос в форме ниже с подробным описанием вашей ситуации, чтобы другие люди и специалисты смогли дать на него ответ. Если вы знаете как решить проблему другого человека, пожалуйста, подскажите ему :)