Водонагреватели Bosch WT13AM1E (Therm 4000 S) 7702311072 - инструкция пользователя по применению, эксплуатации и установке на русском языке. Мы надеемся, она поможет вам решить возникшие у вас вопросы при эксплуатации техники.
Если остались вопросы, задайте их в комментариях после инструкции.
"Загружаем инструкцию", означает, что нужно подождать пока файл загрузится и можно будет его читать онлайн. Некоторые инструкции очень большие и время их появления зависит от вашей скорости интернета.

Технические данные прибора
|
9
RU
6 720 680 340 (2010/07)
2.12
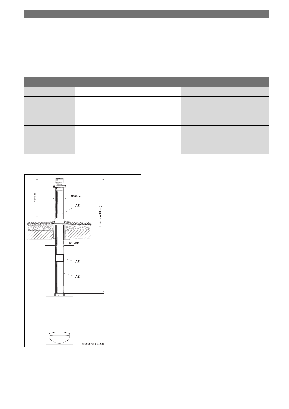
Система для отвода дымовых газов
Трубы дымохода имеют внутренний диаметр 80 мм и
наружный диаметр 110 мм.
2.12.1 Вертикальный дымоход
Рис 4
3) Для номинальной теплотворной способности
Тип
Описание
TTNR
AZ266
Горизонтальная обвязка
7 719 001 785
AZ265
Труба дымохода 500 мм
7 719 001 784
AZ263
Труба дымохода 1000 мм
7 719 001 782
AZ264
Труба дымохода 1500 мм
7 719 001 783
AZ268
Колено 45°
7 719 001 787
AZ267
Колено 90°
7 719 001 786
AZ262
Вертикальная обвязка
7 719 001 781
Таб. 6
Принадлежности дымохода
Ø
80/110MM
Характеристики
Остались вопросы?Не нашли свой ответ в руководстве или возникли другие проблемы? Задайте свой вопрос в форме ниже с подробным описанием вашей ситуации, чтобы другие люди и специалисты смогли дать на него ответ. Если вы знаете как решить проблему другого человека, пожалуйста, подскажите ему :)













