Водонагреватели Bosch WT13AM1E (Therm 4000 S) 7702311072 - инструкция пользователя по применению, эксплуатации и установке на русском языке. Мы надеемся, она поможет вам решить возникшие у вас вопросы при эксплуатации техники.
Если остались вопросы, задайте их в комментариях после инструкции.
"Загружаем инструкцию", означает, что нужно подождать пока файл загрузится и можно будет его читать онлайн. Некоторые инструкции очень большие и время их появления зависит от вашей скорости интернета.

Технические данные прибора
|
5
RU
6 720 680 340 (2010/07)
2.6.1
Дата производства (FD)
Расшифровка месяца и года производства
2.7
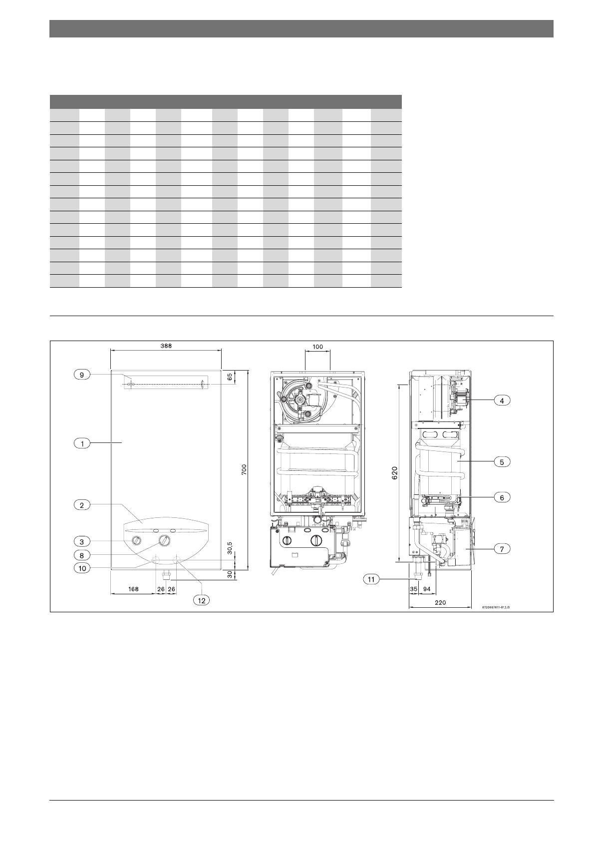
Размеры
Рис 1
1
Кожух
2
Лицевая панель
3
Выключатель
4
Дымосос
5
Теплообменник
6
Горелка
7
Блок управления
8
Регулятор температуры
9
Кронштейн для крепления
10
Труба горячей воды
11
Входная труба подачи газа
12
Труба холодной воды
Год
Янв
Фев
Мар
Апр
Май
Ию
Ию
Авг
Сен
Окт
Нояб
Дек
2007
781
782
783
784
785
786
787
788
789
790
791
792
2008
881
882
883
884
885
886
887
888
889
890
891
892
2009
981
982
983
984
985
986
987
988
989
990
991
992
2010
001
002
003
004
005
006
007
008
009
010
011
012
2011
101
102
103
104
105
106
107
108
109
110
111
112
2012
201
202
203
204
205
206
207
208
209
210
211
212
2013
301
302
303
304
305
306
307
308
309
310
311
312
2014
417
418
419
420
453
454
455
456
457
458
459
460
2015
517
518
519
520
553
554
555
556
557
558
559
560
2016
617
618
619
620
653
654
655
656
657
658
659
660
2017
717
718
719
720
753
754
755
756
757
758
759
760
2018
817
818
819
820
853
854
855
856
857
858
859
860
2019
917
918
919
920
953
954
955
956
957
958
959
960
2020
037
038
039
040
073
074
075
076
077
078
079
080
Таб. 4
Характеристики
Остались вопросы?Не нашли свой ответ в руководстве или возникли другие проблемы? Задайте свой вопрос в форме ниже с подробным описанием вашей ситуации, чтобы другие люди и специалисты смогли дать на него ответ. Если вы знаете как решить проблему другого человека, пожалуйста, подскажите ему :)













