Водонагреватели Ariston FAST EVO 11 B - инструкция пользователя по применению, эксплуатации и установке на русском языке. Мы надеемся, она поможет вам решить возникшие у вас вопросы при эксплуатации техники.
Если остались вопросы, задайте их в комментариях после инструкции.
"Загружаем инструкцию", означает, что нужно подождать пока файл загрузится и можно будет его читать онлайн. Некоторые инструкции очень большие и время их появления зависит от вашей скорости интернета.

23
Встановлення
установка
1
2
3
4
6
9
8
7
10
5
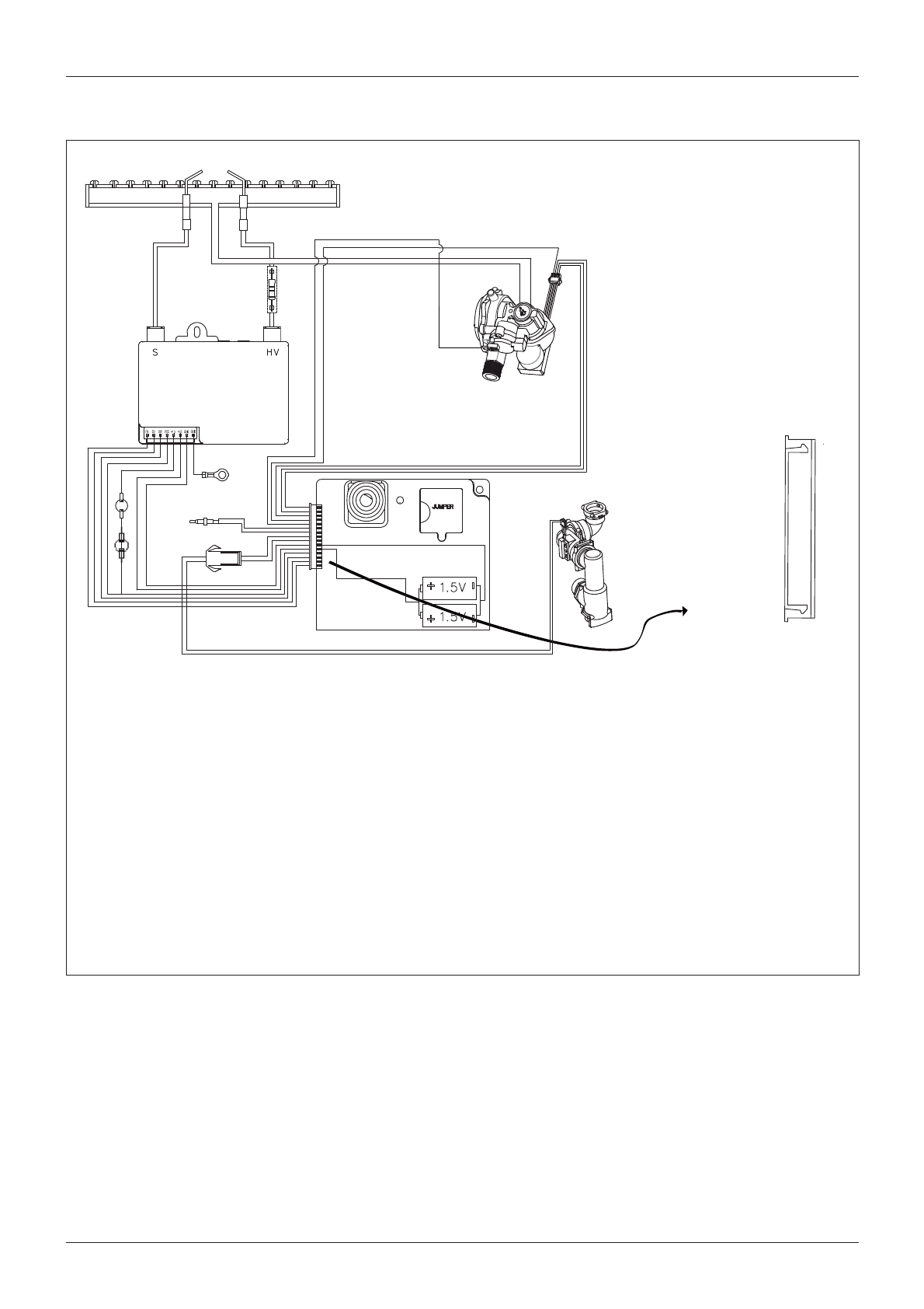
Электрическая схема
Електрична схема
1. Электрод контроля пламени
2. Электрод
розжига
3. Газовый клапан
4. Датчик протока ГВС
5. Основная плата
6. Выключатель ВКЛ\ВЫКЛ и рукоятка регулировки
температуры ГВС
7. Световые индикаторы
8. Датчик температуры ГВС
9. Термостаты перегрева и тяги
10. Блок розжига.
желтый / жовтий - 15
оранжевый / помаранчевий - 14
коричневый / коричневий - 13
красный / червоний - 12
красный / червоний - 11
черный / чорний - 10
оранжевый / помаранчевий - 9
зеленый / зелений - 8
белый / білий - 7
черный / чорний - 6
оранжевый / помаранчевий - 5
зеленый / зелений - 4
оранжевый / помаранчевий - 3
красный / червоний - 2
черный / чорний - 1
1. Електрод детектора
2. Електрод запалювання
3. Клапан газу
4. Перемикач потоку води
5. Головна плата
6. Ручка вмикання/вимикання і температури
ГВП
7. Індикатор
8. Датчик температури води на виході
9. Термостат перегріву для води і вихлопних
газів
10. Плата запалювання
Содержание
- 3 Запуск в работу без воды в теплообменнике; ГАРАНТІЯ
- 4 прибор
- 5 Правила безпеки; Перелік умовних позначок:; Правила безопасности; Перечень условных обозначений:
- 7 Процедура розжига
- 8 Устройства защиты водонагревателя; Таблица кодов неисправностей; Умови блокування колонки; Опис; Необхідні перевірки; Горить
- 9 Защита от замерзания; Временная блокировка из-за аномального дымоудаления; Захист від замерзання
- 10 Инструкция по установке и обслуживанию
- 11 Рекомендации по монтажу; Данный водонагреватель предназначен для; Рекомендації з монтажу
- 12 Химический состав воды, используемой в
- 13 Агрегат слід кріпити на міцну стіну; не піддану вібраціям.; Агрегат должен крепиться на прочную стену,; не подверженную вибрациям
- 14 Небезпека падіння; Для виконання робіт надягніть захисний спец. одяг.; Опасность падения; Для выполнения работ наденьте защитную спец. одежду.
- 15 Вибух, пожежа або отруєння токсичними газами.
- 16 Загальний вигляд
- 17 Нетто; Общий вид и размеры; Патрубок подачи в; Мінімальні відстані
- 18 Техническая информация
- 19 Перед началом монтажа.
- 20 Место установки водонагревателя; Соблюдайте инструкции, решая где установить прибор.; Місце встановлення
- 21 Гидравлические соединения; Обозначения; Підключення водонагрiвача
- 22 Подсоединение дымохода; Приєднання димоходу; Работа с солнечной установкой
- 23 Электрическая схема; розжига
- 24 МИКРОПЕРЕКЛЮЧАТЕЛИ; таблица положения ниже:; ГАЗ; Мікроперемикачі; Положення мікроперемикачів, див. таблицю нижче; ON; Винт регулировки максимум/минимум и мощности
- 25 Электропитание; вставьте элементы питания, строго соблюдая их; УВАГА
- 26 Перше вмикання; - Усі необхідні отвори вентиляції в приміщенні; НЕ ВИКОРИСТОВУВАТИ ПРИСТРІЙ БЕЗ ВОДИ.
- 27 Проверка параметров газа
- 29 Сводная таблица параметров по типам газа; FAST EVO ONT B 11; Переход на другой тип газа
- 30 Червоний індикатор показує коди помилок.
- 31 Тимчасове блокування через аномальне димовидалення
- 32 Доступ к внутренним элементам; - Снять кожух с крюков; Доступ до внутрішніх елементів; - Причепити кожух на раму за допомогою крючків
- 33 настройки; Общие рекомендации; - пристрій безпеки для вихлопних газів; ПОПЕРЕДЖЕННЯ! НЕМОЖНА ВМИКАТИ ПРИСТРІЙ; Виконати загальну перевірку роботи пристрою.
- 34 Проверка работы; управления и контроля действуют надлежащим образом.; Процедура слива воды из прибора; Обучение пользователя; - Перевірте налаштування і переконайтеся, що всі пристрої; Процедури зливу; Навчання користувача
- 35 Символи на заводській табличці; код продукту; WU