Варочная панель Fulgor Milano CPH 1124 G WK X - инструкция пользователя по применению, эксплуатации и установке на русском языке. Мы надеемся, она поможет вам решить возникшие у вас вопросы при эксплуатации техники.
Если остались вопросы, задайте их в комментариях после инструкции.
"Загружаем инструкцию", означает, что нужно подождать пока файл загрузится и можно будет его читать онлайн. Некоторые инструкции очень большие и время их появления зависит от вашей скорости интернета.

8
9
I
Installazione
Questo apparecchio non è provvisto di un dispositivo di 
scarico del prodotti della combustione. Si raccomanda 
che sia installato in locali sufficientemente areati 
secondo le disposizioni di legge vigenti. La quantità 
d’aria necessaria alla combustione non deve essere 
inferiore a 2.0 m
3
/h per ogni kW di potenza installato.
Vedi tabella potenze bruciatori.
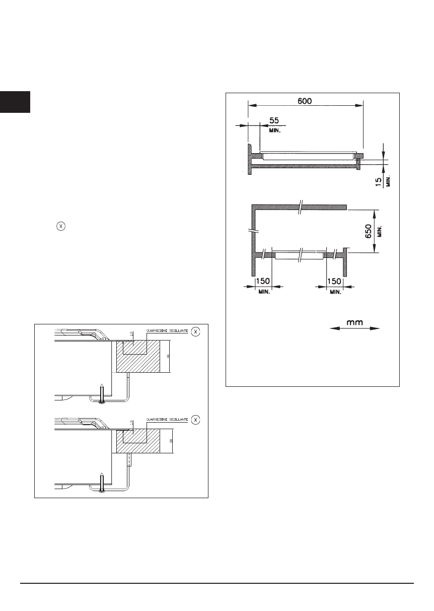
Posizionamento (Fig. 5)
L’apparecchio è previsto per essere incassato in un 
piano di lavoro come illustrato nell’apposita figura.
Prima di inserire il piano predisporre la guarnizione di 
tenuta       su tutto il perimetro della foratura d’incasso.
Le misure d'incasso sono riportate nelle figure 6-7-8-9.
Per i modelli Filotop è necesssario eseguire un 
abbassamento nella zona perimetrale del foro di incasso 
per una profondità di 1,5 mm.
Per i modelli Semifilotop tale fresatura non deve essere 
realizzata.
L'installazione è realizzabile su materiali diversi, quali, 
acciaio, marmo, conglomerati, sintetici, legno e legno 
rivestito di laminati plastici, purchè resistenti ad una 
temperatura di 90°C.
Fig. 5
Sotto il pannello deve essere installato un pannello 
di legno o altro materiale isolante, posizionato ad 
una distanza minima di 15 mm dall'involucro del 
piano.
Istruzioni per l’installatore
Fig. 5
Характеристики
Остались вопросы?Не нашли свой ответ в руководстве или возникли другие проблемы? Задайте свой вопрос в форме ниже с подробным описанием вашей ситуации, чтобы другие люди и специалисты смогли дать на него ответ. Если вы знаете как решить проблему другого человека, пожалуйста, подскажите ему :)

 
  
  
  
  
  
  
  
  
  
  
  
  
  
  
  
  
  
  
  
  
  
  
  
  
  
  
  
  
  
  
  
  
  
  
  
  
  
  
  
  
  
  
  
  
  
  
  
  
  
  
  
  
  
  
  
  
  
  
  
  
  
  
  
  
  
  
  
  
  
  
  
  
  
  
  
 











