Варочная панель Fulgor Milano CPH 1124 G WK X - инструкция пользователя по применению, эксплуатации и установке на русском языке. Мы надеемся, она поможет вам решить возникшие у вас вопросы при эксплуатации техники.
Если остались вопросы, задайте их в комментариях после инструкции.
"Загружаем инструкцию", означает, что нужно подождать пока файл загрузится и можно будет его читать онлайн. Некоторые инструкции очень большие и время их появления зависит от вашей скорости интернета.

44
45
DE
Installation
Dieses Gerät ist mit einer Vorrichtung zur Beseitigung
der Verbrennungsgase nicht angeschlossen. Installation
und Anschluß müssen laut den geltenden Vorschriften
ausgefürt werden. Gerät nur in ausreichend belüfteten
Räumen und nach den gesetzlichen Vorschriften aufstellen.
Die Menge der benötigten Verbrennungsluft darf nicht unter
2,0 m
3
/h pro installierte kW-Leistungseinheit liegen. Siehe
Heizleistungstabelle.
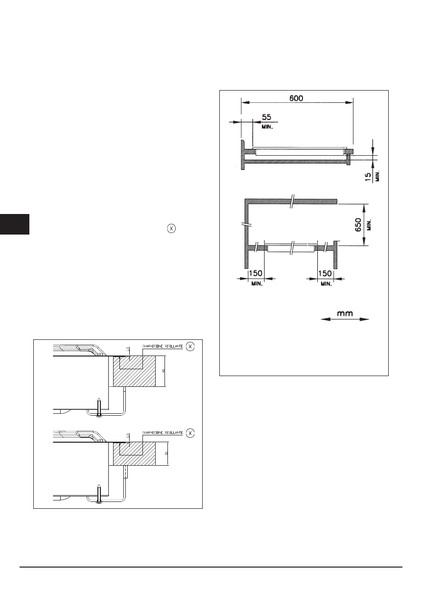
Aufstellung (Abb. 5)
Das Gerät ist für den Einbau in eine Arbeitsfläche
vorgesehen, wie in der entsprechenden Abbildung zu
sehen.
Vor dem Einsetzen der Mulde die Dichtung auf dem
gesamten Umfang der Einbauöffnung anbringen.
Die Einbaumaße sind in den Abbildungen 6-7-8-9 zu
sehen.
Bei den Modellen Filotop (die also bündig zur
Arbeitsfläche eingebaut werden), muss der Außenrand
der Einbauöffnung um 1,5 mm tiefer gelegt werden.
Bei den Modellen Semifilotop (leicht überstehend) muss
diese Fräsung nicht ausgeführt werden.
Der Einbau kann in verschiedene Werkstoffe erfolgen
wie Stahl, Marmor, Verbundstoffe, Synthetikmaterialien,
Holz und mit Kunststofflaminat beschichtetes Holz,
wenn diese Temperaturen von 90°C standhalten.
Abb. 5
Unter der Platte mus eine Tafel aus Holz oder
anderem dämmenden Material eingebaut werden,
die in einem Mindestabstand von 15 mm von der
Muldenhülle positioniert wird.
Anleitungen für den Installateur
Abb. 5
Характеристики
Остались вопросы?Не нашли свой ответ в руководстве или возникли другие проблемы? Задайте свой вопрос в форме ниже с подробным описанием вашей ситуации, чтобы другие люди и специалисты смогли дать на него ответ. Если вы знаете как решить проблему другого человека, пожалуйста, подскажите ему :)













