Телевизоры Samsung QE65Q7CAM - инструкция пользователя по применению, эксплуатации и установке на русском языке. Мы надеемся, она поможет вам решить возникшие у вас вопросы при эксплуатации техники.
Если остались вопросы, задайте их в комментариях после инструкции.
"Загружаем инструкцию", означает, что нужно подождать пока файл загрузится и можно будет его читать онлайн. Некоторые инструкции очень большие и время их появления зависит от вашей скорости интернета.

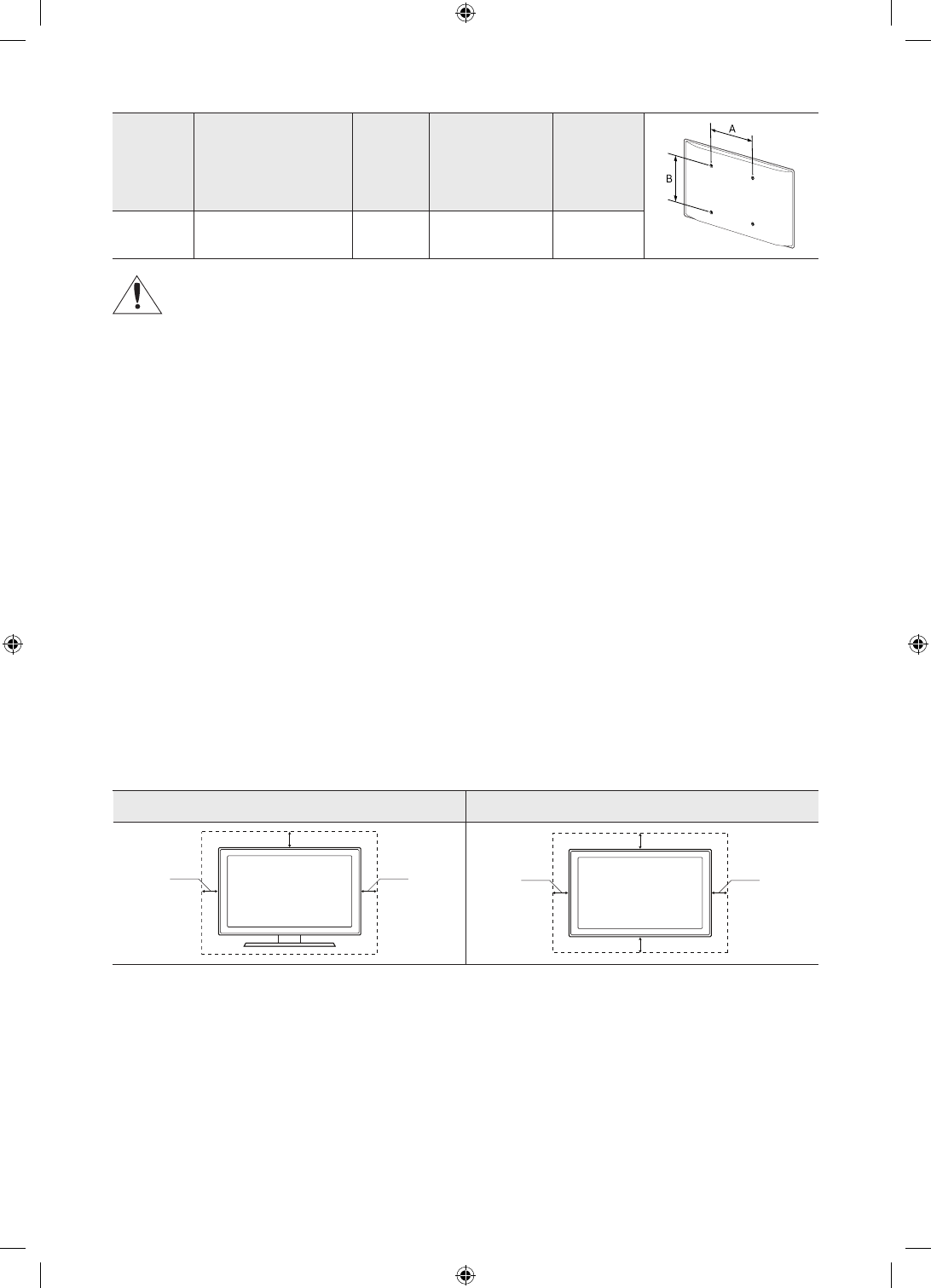
ТД өлшемі,
дюйм
VESA бұранда
тесігінің техникалық
шарттары (A * B),
миллиметр
C (мм
)
Стандартты
бұранда
Саны
49 ~ 65
400 x 400
43 ~ 45
M8
4
Қабырғаға ілу жинағын теледидар тоққа қосулы тұрғанда орнатуға болмайды. Бұл адамның
электр тоғы соғуынан жарақат алуына себеп болуы мүмкін.
•
Стандартты өлшемнен ұзын немесе VESA бұрандалар стандартына сай келмейтін бұрандаларды
қолданбаңыз. Тым ұзын бұрандалар теледидардың ішкі бөлшектеріне зиян келтіруі мүмкін.
•
VESA стандартты бұрандалар спецификациясына сай келмейтін қабырғалық аспа жинақ қолданылса,
бұрандаларының ұзындықтары қабырғалық аспа жинақ спецификациясына байланысты басқаша болуы
мүмкін.
•
Бұрандаларды өте қатты қатайтпаңыз. Себебі құрылғыға зақым келуі немесе құрылғы құлап, адам
жарақат алуы мүмкін. Samsung бұндай қатерлі оқиғалар үшін жауапкершілік көтермейді.
•
VESA стандартына сай емес немесе ұсынылмаған қабырғаға ілу жинағы қолданылса немесе сатып алушы
өнімді орнату нұсқауларын орындамай, өнімге нұқсан келсе не адам жарақат алса, Samsung компаниясы
жауапкершілік көтермейді.
•
Теледидарды 15 градустан асыра қисайтпаңыз.
•
ТД-ды үнемі екі адам қабырғаға орнатуға тиіс.
ТД-ды дұрыс желдету
ТД-ды жақсы желдету үшін оны орнатқан кезде, ТД мен басқа заттардың (қабырғалар, жиһаздың
қабырғалары т.с.с.) арасында кем дегенде 10 см орын қалуын қамтамасыз етіңіз. Дұрыс желдетпеген кезде,
құрылғының ішкі температурасы артып, өрт шығуы немесе оған зақым келуі мүмкін.
ТД-ды тұрғыға қою немесе қабырғалық аспа жинаққа орнату үшін Samsung Electronics бөлшектерін ғана
қолдануды ұсынамыз. Егер басқа өндіруші шығарған бөлшектерді қолдансаңыз, өнімге зақым келуі немесе
ол құлап, адам жарақат алуы мүмкін.
Тұрғыға орнату
Қабырғалық аспа жинаққа орнату
10 см
10 см
10 см
10 см
10 см
10 см
10 см
ТД-ды тұрғыға бекіту
Көрсетілген керек-жарақтардың барлығының бар екеніне көз жеткізіп, тұрғыны құрастыру нұсқауларында
көрсетілген жолмен құрастырыңыз.
Қазақ - 10
Қазақ - 11
Содержание
- 2 Перед изучением этого руководства; Знакомство с функциями, упрощающими работу с электронным; Знакомство с функциями кнопок на страницах электронного
- 3 Предупреждение! Важные указания по
- 5 Содержание
- 6 1 Что входит в комплект?
- 7 2 Подключение телевизора к One Connect
- 9 3 Установка телевизора; Монтаж телевизора на стене
- 10 Обеспечение достаточной вентиляции для телевизора
- 11 Меры предосторожности: Надежное крепление телевизора к стене; Предотвращение падения телевизора
- 13 4 Интеллектуальный пульт ДУ Samsung
- 14 Установка батарей в интеллектуальный пульт ДУ Samsung
- 15 5 Исходная настройка; Использование руководства ТВ-контроллера
- 16 6 Подключение к сети; Беспроводное сетевое соединение; Проводное сетевое соединение
- 17 7 Устранение неисправностей и; Поиск и устранение неисправностей; Телевизор не включается.
- 18 Прерывается соединение Wi-Fi
- 19 Что такое удаленная поддержка?; Как работает удаленная поддержка?; Датчик экономного режима и яркость экрана
- 21 8 Технические характеристики и прочая; Технические характеристики
- 22 Условия окружающей среды; Уменьшение потребления электроэнергии; Рекомендация – только для стран ЕС
- 24 Режим ожидания; Знак имеет форму квадрата
Характеристики
Остались вопросы?Не нашли свой ответ в руководстве или возникли другие проблемы? Задайте свой вопрос в форме ниже с подробным описанием вашей ситуации, чтобы другие люди и специалисты смогли дать на него ответ. Если вы знаете как решить проблему другого человека, пожалуйста, подскажите ему :)