DeLonghi DMA 8EX - Инструкция по эксплуатации - Страница 39

Плита DeLonghi DMA 8EX - инструкция пользователя по применению, эксплуатации и установке на русском языке. Мы надеемся, она поможет вам решить возникшие у вас вопросы при эксплуатации техники.

Если остались вопросы, задайте их в комментариях после инструкции.

"Загружаем инструкцию", означает, что нужно подождать пока файл загрузится и можно будет его читать онлайн. Некоторые инструкции очень большие и время их появления зависит от вашей скорости интернета.
Страница:
/ 44
Загружаем инструкцию
background image

39

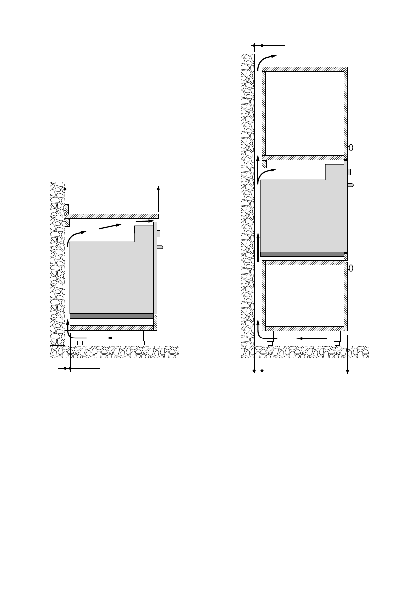
Для  вентиляции  внутренней  полости  необходимо  предусмотреть  вентиляционные  каналы,  как 

указано на Рис. 5.3 и 5.4.

Стенки  вокруг  духового  шкафа  должны  быть  изготовлены  из  термостойкого  материала. 

Поднимать духовой шкаф за ручку ЗАПРЕЩЕНО.  

Рис. 5.3

30 mm

600

50 mm

50

550

Рис. 5.4

Характеристики

Оцените статью
tehnopanorama.ru
Остались вопросы?

Не нашли свой ответ в руководстве или возникли другие проблемы? Задайте свой вопрос в форме ниже с подробным описанием вашей ситуации, чтобы другие люди и специалисты смогли дать на него ответ. Если вы знаете как решить проблему другого человека, пожалуйста, подскажите ему :)

Задать вопрос

Часто задаваемые вопросы
Как посмотреть инструкцию к DeLonghi DMA 8EX?
Необходимо подождать полной загрузки инструкции в сером окне на данной странице
Руководство на русском языке?
Все наши руководства представлены на русском языке или схематично, поэтому вы без труда сможете разобраться с вашей моделью
Как скопировать текст из PDF?
Чтобы скопировать текст со страницы инструкции воспользуйтесь вкладкой "HTML"