Памяти и накопители Seagate (ST12000NE0008) - инструкция пользователя по применению, эксплуатации и установке на русском языке. Мы надеемся, она поможет вам решить возникшие у вас вопросы при эксплуатации техники.
Если остались вопросы, задайте их в комментариях после инструкции.
"Загружаем инструкцию", означает, что нужно подождать пока файл загрузится и можно будет его читать онлайн. Некоторые инструкции очень большие и время их появления зависит от вашей скорости интернета.

Seagate IronWolf Pro SATA Product Manual, Rev. G
21
www.seagate.com
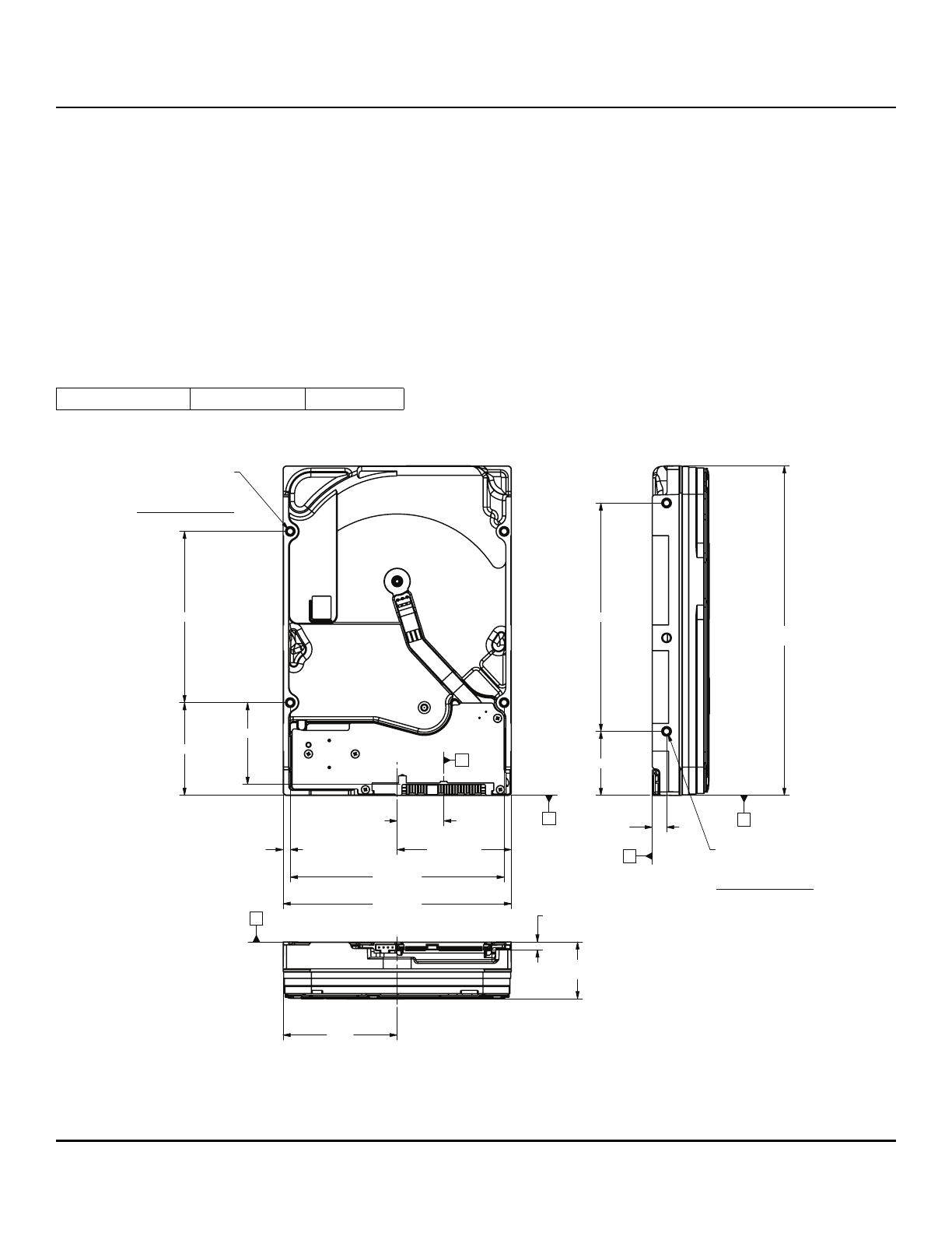
Configuring and mounting the drive
3.4
Drive mounting
Users can mount the drive in any orientation using four screws in the side-mounting holes or four screws in the
bottom-mounting holes. See
for drive mounting dimensions. Follow these important mounting precautions
when mounting the drive:
Allow a minimum clearance of 0.030 in (0.76mm) around the entire perimeter of the drive for cooling.
Use only 6-32 UNC mounting screws.
The screws should be inserted no more than 0.140 in (3.56mm) into the bottom or side mounting holes.
Do not overtighten the mounting screws (maximum torque: 6 in-lb).
3.4.1
Mechanical specifications
Refer to
for detailed mounting configuration dimensions. See
, “Drive mounting.”
NOTE
www.snia.org/technology-communities/sff/specifications
Figure 4.
Mounting configuration dimensions
NOTE
The image is for mechanical dimension reference only and may not represent the actual drive.
Weight:
1.477 lb
670 g
2X 3.000±.010
2X 1.625±.020
1.432
.125±.010
3.750±.010
4.000±.010
.814
CL OF CONN
2.000
CL OF DRIVE
4X 6-32 UNC 2B
3 MIN THREAD DEPTH
.14 MAX FASTENER PENETRATION
MOUNTING HOLE.
MAX TORQUE 6 IN/LBS
Y
B
.250±.010
5.787 MAX
[146.99MM]
4.000±.010
1.123±.020
2X 6-32 UNC 2B
3 MIN THREAD DEPTH
.14 MAX FASTENER PENETRATION
MOUNTING HOLES BOTH SIDES.
MAX TORQUE 6 IN/LBS
Z
Y
2.000
1.028 MAX
[26.11MM]
.140±.015
CL OF DRIVE
Z
Характеристики
Остались вопросы?Не нашли свой ответ в руководстве или возникли другие проблемы? Задайте свой вопрос в форме ниже с подробным описанием вашей ситуации, чтобы другие люди и специалисты смогли дать на него ответ. Если вы знаете как решить проблему другого человека, пожалуйста, подскажите ему :)