Обогреватели Ballu BHC-H10W18-PS - инструкция пользователя по применению, эксплуатации и установке на русском языке. Мы надеемся, она поможет вам решить возникшие у вас вопросы при эксплуатации техники.
Если остались вопросы, задайте их в комментариях после инструкции.
"Загружаем инструкцию", означает, что нужно подождать пока файл загрузится и можно будет его читать онлайн. Некоторые инструкции очень большие и время их появления зависит от вашей скорости интернета.

7
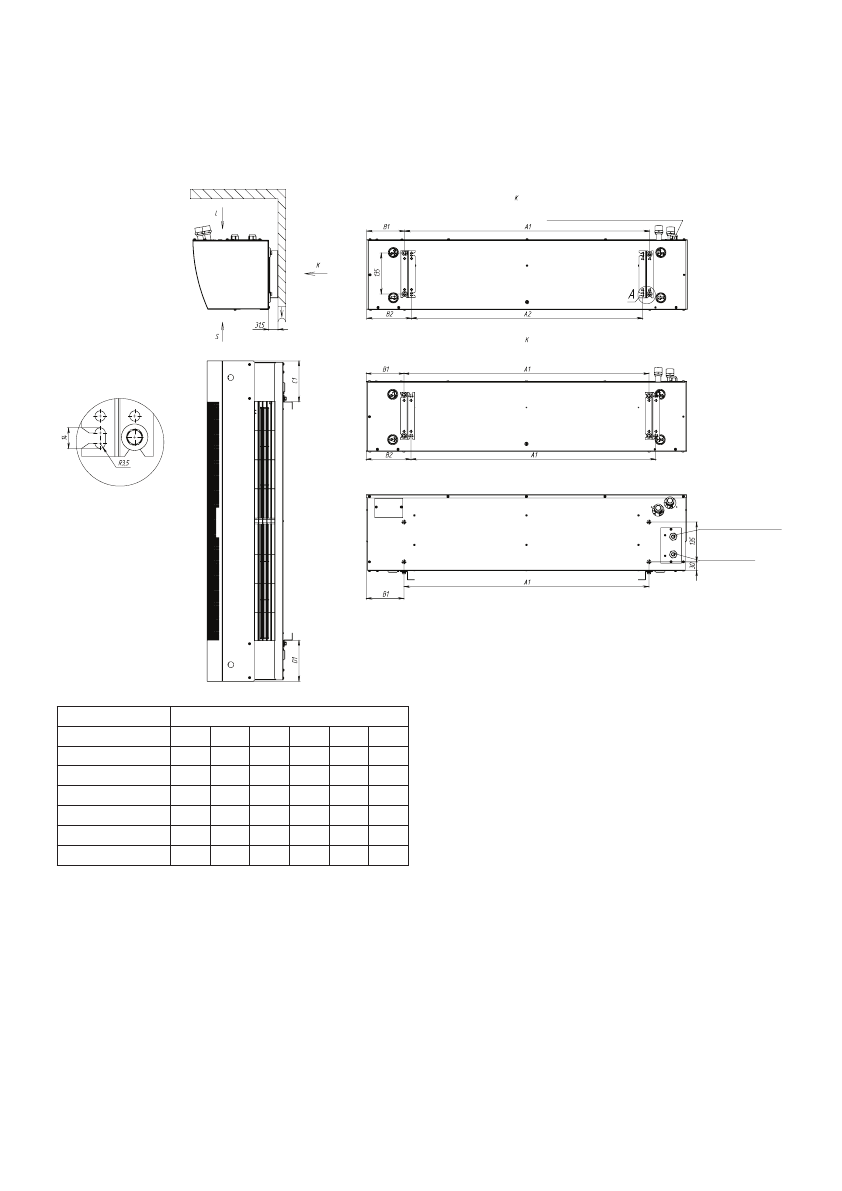
Крепежные размеры для кронштейнов
Монтаж завесы
Модель
Размеры, мм
А1
В1
С1
D1
А2
В2
ВНС-М10W12-PS
831
128
139
139
784
152
ВНС-М15W20-PS 1194 128
139
139 1147 152
ВНС-M20W30-PS 1644 128
139
139 1597 152
ВНС-H10W18-PS
845
146
157
157
798
170
ВНС-H15W30-PS
1252 146
157
157 1205 170
ВНС-H20W45-PS
1703 146
157
157 1656 170
Проем
Расположение кронштейнов для горизонтальной установки
Расположение кронштейнов для вертикальной установки
Кабельные вводы устанавливаются потребителем
Место ввода силового кабеля
Место ввода кабеля
А (1: 1)
4 места
Монтаж завесы на кронштейны