Ноутбуки Lenovo 3000 G410 - инструкция пользователя по применению, эксплуатации и установке на русском языке. Мы надеемся, она поможет вам решить возникшие у вас вопросы при эксплуатации техники.
Если остались вопросы, задайте их в комментариях после инструкции.
"Загружаем инструкцию", означает, что нужно подождать пока файл загрузится и можно будет его читать онлайн. Некоторые инструкции очень большие и время их появления зависит от вашей скорости интернета.

Начало работы
16
Lenovo 3000 G410 Руководство пользователя
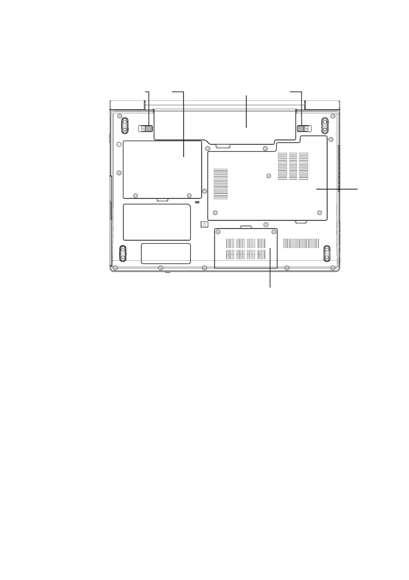
Вид снизу
На приведенном ниже рисунке показаны компоненты, расположенные с 
этой стороны компьютера.
Примечание:
Внешний вид продукта, показанный на рисунках выше,
может несколько отличаться от фактического.
1
Подпружиненная защелка аккумулятора
Подпружиненная защелка аккумулятора предназначена для 
закрепления аккумулятора. Если аккумулятор установлен, то защелка 
автоматически защелкивается. Для извлечения аккумулятора эту 
защелку нужно удерживать в открытом положении.
2
Отсек жесткого диска
В этом отсеке устанавливается жесткий диск.
Внимание!
Не разбирайте и не устанавливайте жесткий диск 
самостоятельно! При необходимости обратитесь в 
официальных сервис-центр Lenovo или к продавцу, чтобы 
они выполнили эту работу.
3
Аккумулятор
Аккумулятор автоматически заряжается при подключении адаптера 
питания и предназначен для питания компьютера, если он отключен 
от электрической сети.
4
Неавтоматическая защелка аккумулятора
Неавтоматическая защелка аккумулятора предназначена для 
закрепления аккумулятора. Чтобы установить или снять аккумулятор, 
сдвиньте защелку в открытое положение. После установки 
аккумулятора переведите защелку в закрытое положение.
$
%
&
'
)
(
 
  
  
  
  
  
  
  
  
  
  
  
  
  
  
  
  
  
  
  
  
  
  
  
  
  
  
  
  
  
  
  
  
  
  
  
  
  
  
  
  
  
  
  
  
  
  
  
  
  
  
  
  
  
  
  
  
  
  
  
  
  
  
  
  
  
  
  
  
  
  
  
  
  
  
  
  
  
  
  
  
  
 











