Мультиварки Ves SK-A18 - инструкция пользователя по применению, эксплуатации и установке на русском языке. Мы надеемся, она поможет вам решить возникшие у вас вопросы при эксплуатации техники.
Если остались вопросы, задайте их в комментариях после инструкции.
"Загружаем инструкцию", означает, что нужно подождать пока файл загрузится и можно будет его читать онлайн. Некоторые инструкции очень большие и время их появления зависит от вашей скорости интернета.

Руководство
Приступаем
к
работе
Commander SK
11
Редакция
: 7
www.controltechniques.com
Те
Номи
Клав
Парам
Быстрая
Диаг
О
Спи
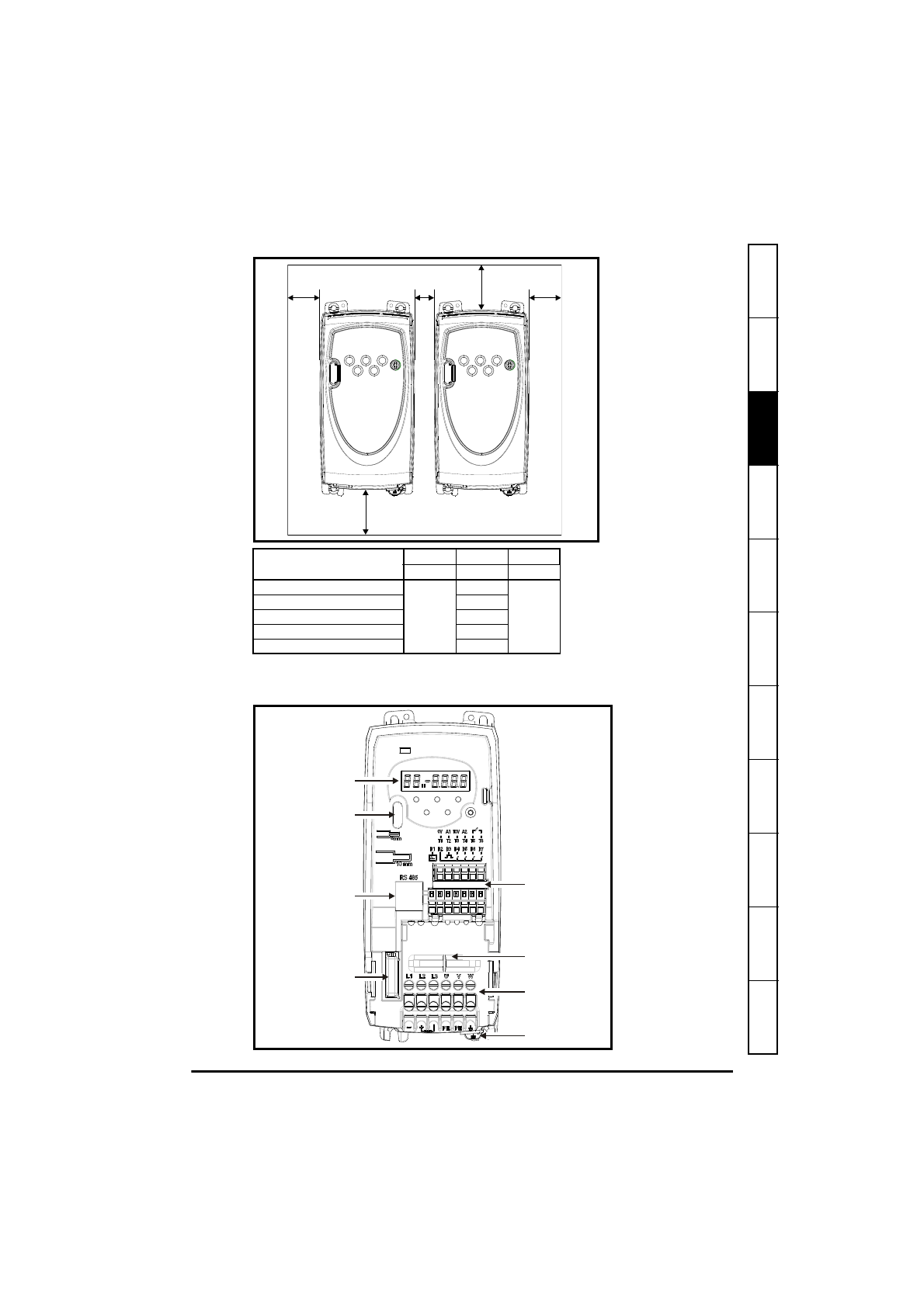
Рис
. 3-2
Минимальные
зазоры
при
установке
*
Это
минимальное
расстояние
между
электроприводами
по
их
основанию
,
если
они
установлены
на
задней
пластине
.
Рис
. 3-3
Элементы
электропривода
(
показан
габарит
B)
Габарит
электропривода
A
B
C
мм
мм
мм
A
10
0
100
B (
≤
0,75
кВт
)
10*
B (
≥
1,1
кВт
)
или
B (110
В
)
0
C
50*
D
0
A
A
B
C
C
Дисплей
Гнездо
для
Smart/Logic stick
Разъем
порта
последовательной
связи
Клеммы
управления
Защитная
крышка
разъема
дополнительного
модуля
(
только
габарит
В
и
С
)
Гнездо
дополнительного
модуля
(
только
габарит
В
,
С
и
D)
Клеммы
сило
-
вого
питания
Лапка
фильтра
ЭМС
Содержание
- 3 Содержание; Commander SK
- 4 Декларация; Руководство
- 5 Техника
- 7 Регулировка; Control Techniques
- 8 Номинальные; SK A 1 2 XXXXX
- 9 Выходная; Pr
- 10 Механическая; Рис
- 12 Электрическая; Подключение; Внутренний
- 13 Утечка; При
- 14 Если; AC
- 15 ЭМС
- 16 SELV
- 17 VoLt
- 19 Клавиатура; Кнопки; Панель
- 20 Выбор
- 21 Таблица; LoC
- 22 Восстановление
- 23 Параметры; Уровень; Описание
- 30 Коды; diS
- 33 OFF
- 35 Auto
- 36 Ur S; Ur
- 39 до
- 40 Пример; Диагностические
- 41 Быстрая; Управление
- 44 PAd
- 45 Диагностика
- 46 rS; hot; FAIL
- 48 Опции
- 49 Документация; Руководства; IP
- 50 Список
- 52 Информация
Характеристики
Остались вопросы?Не нашли свой ответ в руководстве или возникли другие проблемы? Задайте свой вопрос в форме ниже с подробным описанием вашей ситуации, чтобы другие люди и специалисты смогли дать на него ответ. Если вы знаете как решить проблему другого человека, пожалуйста, подскажите ему :)







Здравствуйте, потерялся силиконовый уплотнитель
запорного клапана выпуска пара. Не могу точно снять размеры, чтобы выписать аналогичный. Напишите точные размеры на мультиварку-скороварку VES модель SK-A18