Мультиварки Ves SK-A18 - инструкция пользователя по применению, эксплуатации и установке на русском языке. Мы надеемся, она поможет вам решить возникшие у вас вопросы при эксплуатации техники.
Если остались вопросы, задайте их в комментариях после инструкции.
"Загружаем инструкцию", означает, что нужно подождать пока файл загрузится и можно будет его читать онлайн. Некоторые инструкции очень большие и время их появления зависит от вашей скорости интернета.

12
Руководство
Приступаем
к
работе
Commander SK
www.controltechniques.com
Редакция
: 7
4
Электрическая
установка
4.1
Подключение
клемм
питания
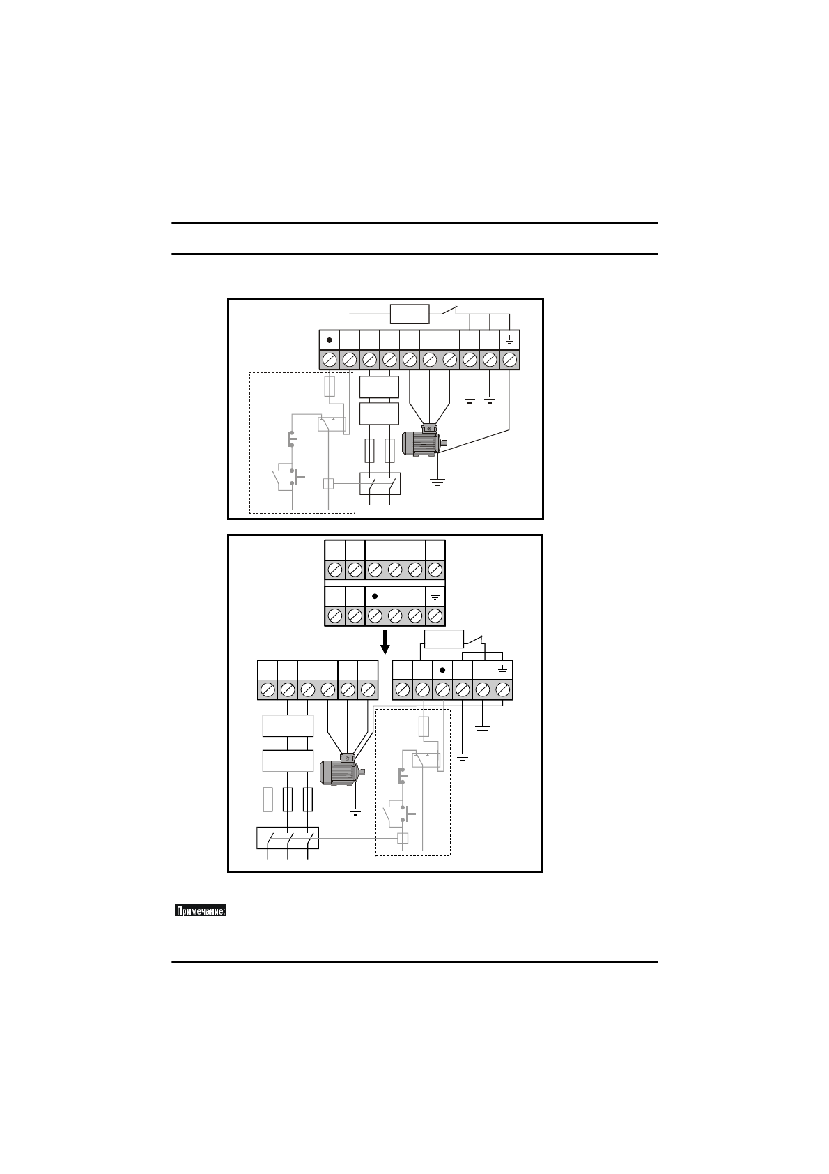
Рис
. 4-1
Подключение
клемм
питания
габарита
A
Рис
. 4-2
Подключение
клемм
питания
габаритов
B, C
и
D
*
Более
подробно
это
описано
в
+
L1 L2/N
U
V
W
PE
PE
-DC
Внутр
.
ЭМС
-
фильтр
*
Опционный
ЭМС
-
фильтр
Опционный
фазный
реактор
Земля
питания
Земля
питания
Силовое
питание
Опционное
соединение
с
землей
Предохранители
Опционно
Тормозной
резистор
Термореле
Стоп
Пуск
/
Сброс
L3/N
U
V
W
+
PE
PE
L1
L2
_
L3/N
U
V
W
L1
L2
+
PE
PE
_
Внутр
.
ЭМС
-
фильтр
*
Опционный
ЭМС
-
фильтр
Опционный
фазный
реактор
Земля
питания
Земля
питания
Силовое
питание
Опционное
соединение
с
землей
Предохранители
Опционно
Тормозной
резистор
Термореле
Стоп
Пуск
/
Сброс
На
электроприводах
Commander SKB 110
В
электропитание
нужно
подключать
к
клеммам
L1
и
L3/N.
Содержание
- 3 Содержание; Commander SK
- 4 Декларация; Руководство
- 5 Техника
- 7 Регулировка; Control Techniques
- 8 Номинальные; SK A 1 2 XXXXX
- 9 Выходная; Pr
- 10 Механическая; Рис
- 12 Электрическая; Подключение; Внутренний
- 13 Утечка; При
- 14 Если; AC
- 15 ЭМС
- 16 SELV
- 17 VoLt
- 19 Клавиатура; Кнопки; Панель
- 20 Выбор
- 21 Таблица; LoC
- 22 Восстановление
- 23 Параметры; Уровень; Описание
- 30 Коды; diS
- 33 OFF
- 35 Auto
- 36 Ur S; Ur
- 39 до
- 40 Пример; Диагностические
- 41 Быстрая; Управление
- 44 PAd
- 45 Диагностика
- 46 rS; hot; FAIL
- 48 Опции
- 49 Документация; Руководства; IP
- 50 Список
- 52 Информация
Характеристики
Остались вопросы?Не нашли свой ответ в руководстве или возникли другие проблемы? Задайте свой вопрос в форме ниже с подробным описанием вашей ситуации, чтобы другие люди и специалисты смогли дать на него ответ. Если вы знаете как решить проблему другого человека, пожалуйста, подскажите ему :)









Здравствуйте, потерялся силиконовый уплотнитель
запорного клапана выпуска пара. Не могу точно снять размеры, чтобы выписать аналогичный. Напишите точные размеры на мультиварку-скороварку VES модель SK-A18