Котел Wolf FGG-K-24 - инструкция пользователя по применению, эксплуатации и установке на русском языке. Мы надеемся, она поможет вам решить возникшие у вас вопросы при эксплуатации техники.
Если остались вопросы, задайте их в комментариях после инструкции.
"Загружаем инструкцию", означает, что нужно подождать пока файл загрузится и можно будет его читать онлайн. Некоторые инструкции очень большие и время их появления зависит от вашей скорости интернета.

19
3064932_201608
3
21
4
56
B
A
D
C
Mr.
Rosh
ani
M
r.M
or
te
zapour
95.
03.
02
E
. E
sm
aei
lpour
95.
03.
02
95.
03.
02
C
D
E
A
B
5 4 3 2 1
16 15 14 13
12 11 10 9 8 7 6
27
26
25
24
23
C
onne
ct
ors
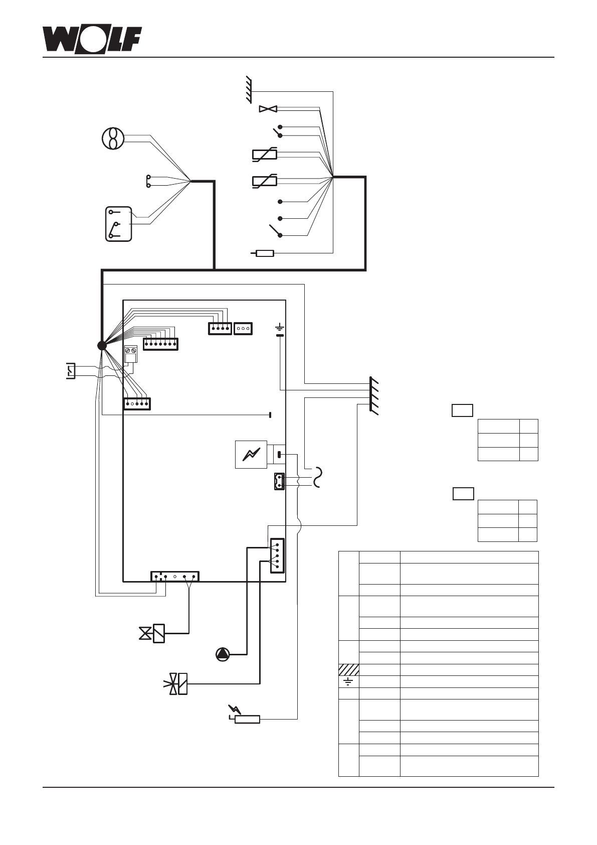
Wiring dia
gram
Wolf 24
FF
Sa
fety th
er
m
os
ta
t
Air
press
ur
e
sw
itc
h
-
C.H
. p
rob
e
D
.H
.W p
ro
be
Flow
sw
itc
h
(blue
- wh
ite
- r
ed
)
W
ater
press
ur
e
sw
itc
h
M
odulator
(1
7V
DC
)
C
hass
is
earth
co
nn
ect
io
n
PC
B e
ar
th c
onnect
ion
Ioniz
ation ele
ct
ro
de
G
as
va
lv
e
(220V
AC)
-
F
an
Pump
3-w
ay
valv
e
(red
- wh
ite
- b
la
ck
)
1
- 2
3
- 5
4
6
- 7
8
- 9
13 - 1
4
15 - 1
6
17
-
-
18 - 1
9
20
21 - 2
2
23 - 2
4
25-26
-2
7
A
B
*
C
D
E
**
IONO
E
**
B
*
Bl
ue 10
W
hi
te 1
1
R
ed
12
10-11
-1
2
Wir
ing
diagr
am
st
icke
r
140
121
W
hi
te 2
6
Re
d 2
5
B
la
ck
27
Ign
iti
on
el
ec
tr
od
e
3-w
ay
valve
E
IONO
N
L
J1
C
B
A
D
IO
NO
Fan
Air
pre
ssu
re
sw
itch
NO
C
NC
R
oo
m th
er
mo
stat
Lin
e vo
ltag
e
8
*
\
8
#
%
Gas va
lv
e
Pump
22
21
20
19
18
Ком
на
тный т
ерм
ост
ат
3-х
одов
ой
перек
л. к
лап
ан
Ком
б. г
аз
овый
клап
ан
Диф. ре
ле
дав
ления
Зап
альный
элек
тро
д
Нас
ос
Вентиля
тор
ОГ
Иони
зац.
элек
тро
д
Се
тев
ой п
ит
. п
ров
од
230 В/50 Г
ц
Схема соединений FGG-K-24
Красный 25
Белый
26
Черный
27
Синий
10
Белый
11
Красный
12
A
1 – 2
Предохранительный термостат
3 – 5
Дифференциальное реле
давления
4
–
B*
6 – 7
Датчик температуры сетевой
воды
8 – 9
Датчик температуры ГВС
10 –11–12 Датчик расхода
C
13 – 14 Реле давления воды
15 – 16 Регулирование (17 В пост. тока)
17
Клеммы заземления
–
Заземление
IONO
–
Ионизационный электрод
D
18 – 19 Комбинированный газовый
клапан
20
–
21 – 22 Вентилятор ОГ
E**
23 – 24 Насос
25–26–27 3-ходовой переключающий
клапан
B*
E**
Рис. Схема соединений
Содержание
- 2 Оглавление; Общая информация
- 3 Указания по безопасности
- 5 Габаритные и монтажные размеры
- 6 Схема конструкции
- 7 Указания по установке/Монтаж
- 9 Подсоединение
- 10 дымоход
- 12 Подсоединение к электрической сети
- 14 Общий обзор системы регулирования
- 16 Порядок действий для перехода к настройке параметров:
- 19 Wiring dia; FF
- 22 Проверка давления в сопле
- 23 Регулировка давления в сопле
- 24 Измерение показателей ОГ
- 25 Выбор ступени насоса; ead; Nota bene : tolerances of each curve are according to EN 1151-1:2006; Head; Specific asynchronous circulators for heating application
- 26 Техническое обслуживание
- 28 Проверка и техническое обслуживание/
- 29 Протокол технического обслуживания
- 30 Протокол ввода в эксплуатацию
- 31 Технические характеристики
- 32 Неисправности, причины и устранение
Не могу установить температуру подачи воды в летнем режиме.
Кончился отопительный сезон, хочу отключить отопление и оставить только нагрев воды. Я повернула тумблер регулировки отопления на ноль, то есть до конца.
Батареи все равно греются, видимо еще что-то надо отключить. Подскажите, пожалуйста, что еще отключить, стобы батареи не грелись? Спасибо!