Котел Navien NCB700-24K - инструкция пользователя по применению, эксплуатации и установке на русском языке. Мы надеемся, она поможет вам решить возникшие у вас вопросы при эксплуатации техники.
Если остались вопросы, задайте их в комментариях после инструкции.
"Загружаем инструкцию", означает, что нужно подождать пока файл загрузится и можно будет его читать онлайн. Некоторые инструкции очень большие и время их появления зависит от вашей скорости интернета.

62 Приложения
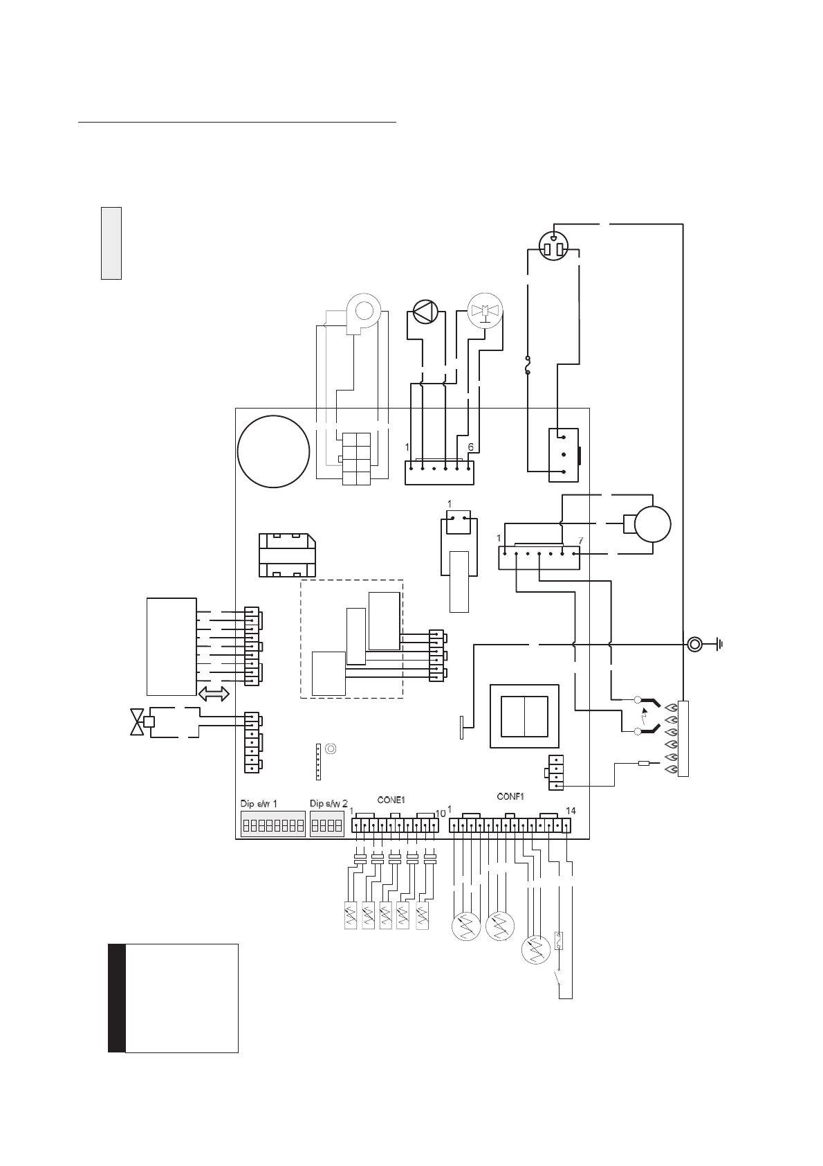
14.1 Принципиальная электрическая схема
ȾɚɬɱɢɤɪɚɫɯɨɞɚȽȼɋ
ɐɂɊɄɍɅəɐɂɈɇɇɕɃ
ɇȺɋɈɋ
Ⱦɚɬɱɢɤɞɚɜɥɟɧɢɹɜɨɞɵ
ɉȿɊȿȾɇəə
ɉȺɇȿɅɖ
Ƚɥɚɜɧɵɣ
ɝɚɡɨɜɵɣɤɪɚɧ
ɋɨɟɞɢɧɢɬɟɥɶɧɚɹɤɨɪɨɛɤɚ
R
Bk
Bk
Bk
Bk
Bk
Bk
Bk
Bk
CO
N10
19
Y
W
B
R
BK
ɌɊȿɏɏɈȾɈȼɈɃɄɊȺɇ
1
3
5
7
2
4
6
8
W
O
Bk
R
Y
ȼȿɇɌɂɅəɌɈɊ
Y
W
.'
&
[0
9
RS
232
14
CO
NK
1
CO
NZ
1
17
ɄɈɇȾȿɇɋȺɌɈɊ
Ɋɟɥɟ
ɩɟɪɟɝɪɟɜɚ
ȾɚɬɱɢɤɬɟɦɩɟɪɚɬɭɪɵɧɚɜɜɨɞɟȽȼɋ
Ⱦɚɬɱɢɤɬɟɦɩɟɪɚɬɭɪɵ ɧɚɩɨɞɚɱɟɨɬɨɩɥɟɧɢɹ
Ⱦɚɬɱɢɤɬɟɦɩɟɪɚɬɭɪɵɧɚ
ɜɨɡɜɪɚɬɟɨɬɨɩɥɟɧɢɹ
Ⱦɚɬɱɢɤɬɟɦɩɟɪɚɬɭɪɵ ɨɬɪɚɛɨɬɚɧɧɵɯɝɚɡɨɜ
Ⱦɚɬɱɢɤɬɟɦɩɟɪɚɬɭɪɵ
ɧɚɜɵɩɭɫɤɟȽȼɋ
ɞɚɬɱɢɤɬɟɦɩɟɪɚɬɭɪɵɧɚɪɭɠɧɨɝɨ
ɪɟɡɟɪɜɭɚɪɚȽȼɋ
B B
B B B B B B B B
CO
L
O
R
CO
D
E
B
:
ɋɢɧɢɣ
BK
:
ɑɟɪɧɵɣ
BR
:
Ʉɨɪɢɱɧɟɜɵɣ
O
:
Ɉɪɚɧɠɟɜɵɣ
R
:
Ʉɪɚɫɧɵɣ
W
:
Ȼɟɥɵɣ
Y
:
ɀɟɥɬɵɣ
YG
:
ɀɟɥɬɨɡɟɥɟɧɵɣ
P
:
Ɋɨɡɨɜɵɣ
Ⱦɚɬɱɢɤɞɚɜɥɟɧɢɹɜɨɡɞɭɯɚ
ɞɜɨɣɧɵɟɞɚɬɱɢɤɢɏɨɥɥɚ
R
BK
W
Y
R YG BK
R
BK
W
BK
BK
CO
N
Z
1
16
ȾȺɌɑɂɄ
ɉɅȺɆȿɇɂ
ɗɅȿɄɌɊɈȾ
ɊɈɁɀɂȽȺ
ȽɈɊȿɅɄȺ
BR
B
T2
ɂɧɞɢɤɚɬɨɪ
ɪɚɛɨɬɵ
ɁȺɁȿɆɅȿɇɂȿɁȺɓɂɌɇɈȿ
YG
ɈȻȿɋɌɈɑȿɇɇɕɃɉɊɈȼɈȾ
ɇȿɃɌɊȺɅɖ
CO
NU1
ɐɢɥɢɧɞɪɢɱɟɫɤɢɣ
ɬɟɪɦɨɫɬɚɬ
Ɉɬɤɪɵɬɵɣ ɬɟɪɦɨɦɟɬɪ ɤɨɦɧɚɬɧɵɣ ɬɟɪɦɨɫɬɚɬ
Ⱦɚɬɱɢɤ
ɧɚɪɭɠɧɨɣ
ɬɟɦɩɟɪɚɬɭɪɵ
T1
CO
N25
CO
NW
1
Bk
ɉɊɈȼɈȾɉɈȾɇȺɉɊəɀȿɇɂȿɆ
ɉɈȾɌɈɄɈɆ
W
YG
M
ȾȼɈɃɇȺəɌɊɍȻɄȺȼȿɇɌɍɊɂ
B
W
BR
CO
N1
CO
N26
Ʉɨɦɧɚɬɧɵɣ ɬɟɪɦɨɫɬɚɬ ȼɩɟɪɟɦɬɨɤɚ
14. Приложения







