Котел Ferroli Fortuna H F 32 с закрытой камерой сгорания - инструкция пользователя по применению, эксплуатации и установке на русском языке. Мы надеемся, она поможет вам решить возникшие у вас вопросы при эксплуатации техники.
Если остались вопросы, задайте их в комментариях после инструкции.
"Загружаем инструкцию", означает, что нужно подождать пока файл загрузится и можно будет его читать онлайн. Некоторые инструкции очень большие и время их появления зависит от вашей скорости интернета.

FORTUNA H
7
RU
•
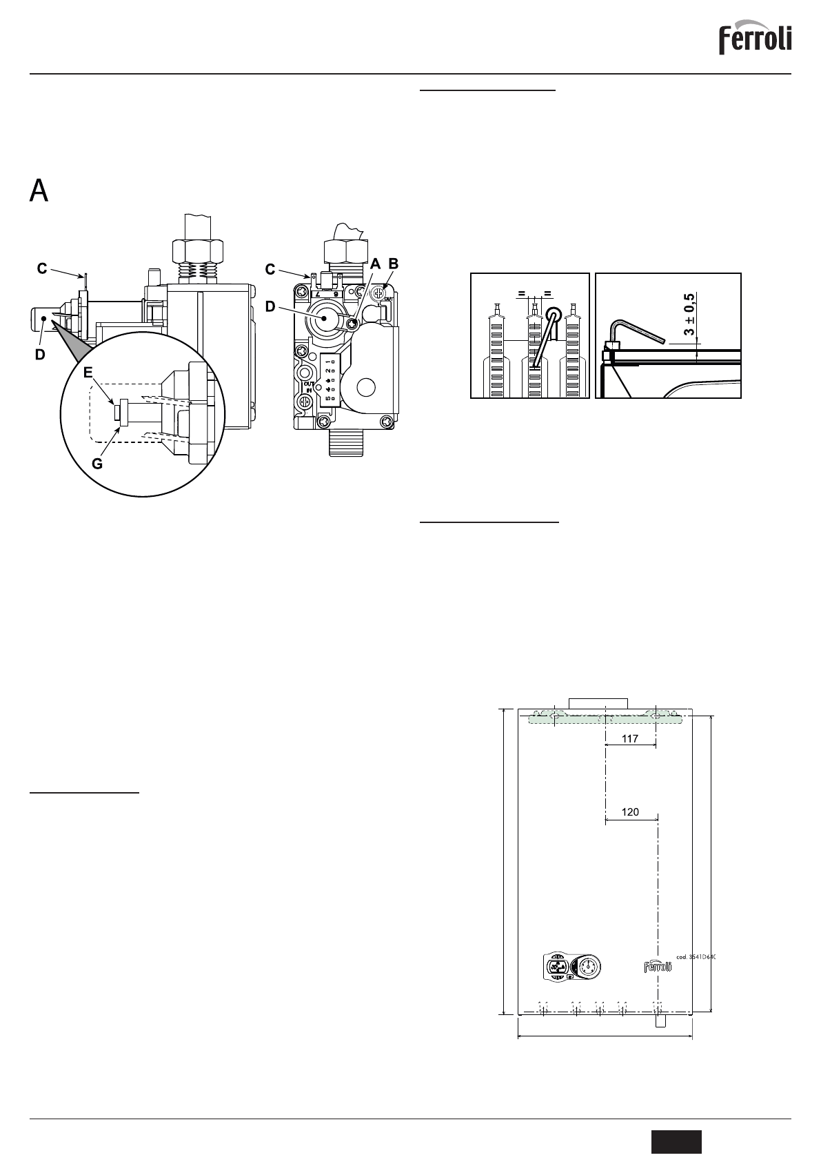
Отрегулируйте минимальное давление винтом «Е», поворачивая его по часовой стрел
-
ки для увеличения и против часовой стрелки - для уменьшения давления.
•
Подсоедините соединитель, ранее снятый с катушки регулирования Modureg, на газо
-
вый клапан.
•
Убедитесь, что максимальное давление не изменилось
•
Верните на место защитный колпачок «D».
•
Для завершения тестового режима TEST повторите процедуру активации или подо
-
ждите 15 минут.
После проверки давления или его регулировки необходимо запечатать
краской или специальной печатью регулировочный винт.
рис. 14 – Газовый клапан
А – Винт защитный колпачок
В – Разъем для замера давления на выходе из клапана
С – Провод катушки регулирования Modureg
D – Защитный колпачок
Е – Регулировка минимального давления
G – Регулировка максимального давления
Регулировка мощности отопления
Для регулировки мощности отопления установите котел в режим TEST (см. п. 4.1). Нажи
-
майте кнопки задания температуры в системе отопления (поз. 3 – рис. 1) для соответствен
-
ного увеличения или уменьшения мощности (минимальная – 00, максимальная – 100). При
нажатии в течение 5 секунд после этого кнопки
«RESET»
сохранится только что заданная
максимальная мощность.
Выйдите из режима TEST (см. п. 4.1).
Регулировка мощности розжига
В течении 5 секунд удерживайте кнопку
«RESET»
, чтобы активировать режим настройки
параметров.
Кнопками отопления (поз.З и 4 – рис.1) пролистайте меню с параметра Р01 до Р09.
Кнопками ГВС (поз.1 и 2 – рис.1) измените параметр Р09 до необходимого значения.
Запоминание происходит автоматически.
В течении 5 секунд удерживайте кнопку
«RESET»
, чтобы выйти из режима.
4.2 Ввод в эксплуатацию
Перед включением котла
•
Проверьте герметичность системы подвода газа.
•
Проверьте величину предварительного давления в расширительном баке котла.
•
Заполните систему водой и полностью спустите воздух из котла и системы отопления.
•
Удостоверьтесь в отсутствии утечек воды из системы отопления, контура ГВС, из котла
и в различных соединениях.
•
Проверьте правильность выполнения электрических соединений и эффективность
заземления.
•
Удостоверьтесь, что величина давления газа соответствуют требуемому значению.
•
Проверьте, что в непосредственной близости от котла не находятся огнеопасные жид
-
кости и материалы.
Контрольные операции, выполняемые во время работы
•
Включите аппарат.
•
Проверьте герметичность топливного контура и водопроводов.
•
При работающем котле проверьте, нормально ли работают дымоход и воздуховоды
для притока воздуха и удаления дымовых газов.
•
Проверьте, правильно ли циркулирует вода между котлом и системой отопления.
•
Удостоверьтесь, что газовый клапан правильно обеспечивает модуляцию мощности,
как в режиме отопления, так и в режиме ГВС.
•
Проверьте работу системы розжига котла. Для этого несколько раз включите и выклю
-
чите котел путем регулировки комнатного термостата или с пульта дистанционного
управления.
•
Удостоверьтесь по показаниям счетчика, что расход газа соответствует величине, ука
-
занной в таблице технических данных.
•
Проверьте правильность запрограммированных параметров и, если необходимо, вне
-
сите необходимые изменения (мощность, температура и т.д.).
4.3 Техническое обслуживание
Периодический контроль
Чтобы обеспечить исправную работу агрегата с течением времени, необходимо раз в год
приглашать квалифицированный персонал для следующих проверок:
•
Управляющие и предохранительные устройства (газовый клапан, термостаты и пр.)
должны исправно работать.
•
Контур отвода дыма должен быть безукоризненно эффективным.
(Котел с закрытой камерой: вентилятор, реле давления и пр. – Закрытая камера долж
-
на быть герметичной: прокладки, прижимы для кабелей и пр.).
(Котел с открытой камерой: стабилизатор тяги, термостат дыма и пр.).
•
Трубопроводы и оголовки для забора воздуха и отвода дыма не должны быть загро
-
мождены и не должны иметь утечек.
•
Горелка и теплообменник должны быть чистыми и без отложений. Для их очистки не
используйте химические продукты или стальные щетки.
•
Электрод не должен иметь нагара и должен правильно располагаться.
рис. 15 – Положение электрода
•
Все газовые и гидравлические соединения должны быть герметичными.
•
Давление воды в холодном отопительном контуре должно составлять около 1,2 бара;
в противном случае следует настроить это значение.
•
Циркуляционный насос не должен быть заблокированным.
•
Давление воздуха в расширительном баке должно равняться 1 бар.
•
Расход и давление газа должны соответствовать значениям из соответствующих
таблиц.
4.4 Устранение неисправностей
Диагностика
Котел оснащен современной системой самодиагностики. В случае возникновения ка
-
кой-либо неисправности, символ неисправности (поз. 11 – рис. 1) и соответствующий код
начинают мигать на дисплее.
Некоторые неисправности (обозначаемые буквой «А») приводят к постоянной блокировке
котла: В этом случае следует произвести ручной сброс блокировки, нажав кнопку
«RESET»
(поз. 6 – рис. 1) в течение 1 секунды или кнопку
«RESET»
на пульте ДУ с таймером
(опция), если таковой установлен; если котел не включится, то необходимо устранить
неисправность.
Другие неисправности (обозначенные буквой «F») вызывают временную блокировку кот
-
ла. Данная блокировка снимается автоматически, как только вызвавший ее возникнове
-
ние параметр возвращается в нормальные рабочие пределы.
Внимание:
категорически запрещается срывать пломбы завода изготовителя или сервис
-
ного центра, в случаях повреждения пломбы – сервисный центр имеет право снять обо
-
рудование с гарантии. Необходимо проводить ежегодное техническое обслуживание для
продления срока гарантии и вашей безопасности.
Содержание
- 2 FORTUNA H
- 6 «RESET»
- 9 Гидравлический контур
- 10 Таблица технических данных; А = Потери напора в котле – 1,2 и З = Скорость циркуляционного насоса
- 11 Электрическая схема; Внимание: Перед подключением; комнатного термостата; или; устройства дис; необходимо удалить перемычку на доске
- 12 ИДЕНТИФИКАЦИОННАЯ ТАБЛИЧКА КОТЛА; Расшифровка обозначений:; NOx; Класс по выбросам NOx; СЕРИЙНЫЙ НОМЕР И ДАТА ИЗГОТОВЛЕНИЯ; Срок службы котла составляет 10 лет.
- 13 Представитель изготовителя:

