Котел Chaffoteaux Alixia 24 CF - инструкция пользователя по применению, эксплуатации и установке на русском языке. Мы надеемся, она поможет вам решить возникшие у вас вопросы при эксплуатации техники.
Если остались вопросы, задайте их в комментариях после инструкции.
"Загружаем инструкцию", означает, что нужно подождать пока файл загрузится и можно будет его читать онлайн. Некоторые инструкции очень большие и время их появления зависит от вашей скорости интернета.

описание продукта
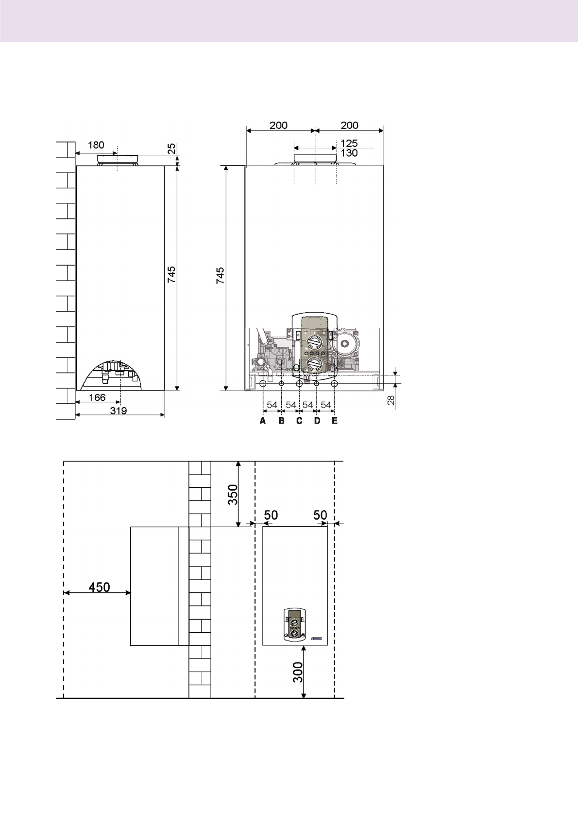
Габаритные размеры котла
A.
Подающий
трубопровод системы
отопления 3/4"
B.
Выход горячей воды
1/2"
C.
Вход газа 3/4"
D.
Вход холодной воды
1/2"
E.
Обратный трубопро-
вод системы
отопления 3/4"
Минимальные расстояния
при монтаже
Для того чтобы обеспечить
удобство во время последую-
щего технического обслуживания
котла, необходимо во время
монтажа предусмотреть некото-
рые минимальные расстояния.
Монтаж производить с
использованием
гидравлического уровня.
Содержание
- 5 Правила техники безопасности
- 9 Общие сведения; Инструкции по монтажу
- 10 РАЗМЕЩЕНИЕ КОТЛА
- 11 Промывка системы отопления
- 12 Присоединение к дымоходу; во время работы; Электрические соединения; В случае замены питающего кабеля
- 13 описание продукта; Общий вид
- 14 Габаритные размеры котла
- 16 Монтаж; Гидравлические и газовые; Гребенка; (краны показаны в открытом
- 17 Остаточный напор циркуляционного насоса; Объём воды в системе отопления
- 18 Инструкции по демонтажу кожуха и; – движением на себя откинуть панель
- 19 Монтаж котла; стене и выровнять его; Предохранительный клапан; тельного клапана «
- 20 Соединение с системой солнечных; За дополнительными сведениями см.; Руководство по; кость
- 22 присоединить провода термостата.; IP
- 25 Пуск; Первый пуск котла
- 26 Регулировки; ПРОВЕРКА НАСТРОЕК ГАЗОВОЙ
- 27 Регулирование максимальной; Dip-переключатель 1 Конфигурация
- 28 Давление газа в режиме отопления; IX; Сводная таблица характеристик газов
- 30 Предохранительные системы и устройства; Предохранительные системы; ного давления воды; в контуре отопления; Аварийная блокировка
- 31 Расшифровка кодов ошибок; желтый красный; Защита от замерзания
- 32 Временная остановка в связи
- 33 техническое обслуживание; Общие рекомендации
- 34 Опорожнение или использование; НЕ СМЕШИВАТЬ РАЗЛИЧНЫЕ ТИПЫ; Слив воды из контура ГВС
- 36 технические характеристики