Кондиционеры Lessar LS-HE18TTA2/LU-HE18UTA2 - инструкция пользователя по применению, эксплуатации и установке на русском языке. Мы надеемся, она поможет вам решить возникшие у вас вопросы при эксплуатации техники.
Если остались вопросы, задайте их в комментариях после инструкции.
"Загружаем инструкцию", означает, что нужно подождать пока файл загрузится и можно будет его читать онлайн. Некоторые инструкции очень большие и время их появления зависит от вашей скорости интернета.

60
LS
-H
E
2
4
T
O
A
2
C N 2 6
C N 6
4
C N 5
C N 8
C N 1 8
1 0
C N 1 0
C N 7
C N 3
CN1
CN2
CN1
CN2
C N 7
CN5
CN3
C N 2 1
C N 2 2
5
5
5
5
C N 2 4
5
CN13
C N 1 4 C N 11
2
L
N
C N 1 9
C N 1 6
S 1 S 2
X Y E
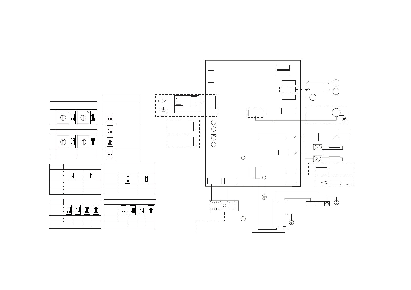
Ɉɫɧɨɜɧɚɹ
ɩɥɚɬɚɭɩɪɚɜɥɟɧɢɹ
CN40
ɞɜɢɝɚɬɟɥɢ
ɝɨɪɢɡɨɧɬɚɥɶɧɵɯ
ɠɚɥɸɡɢ
ɞɜɢɝɚɬɟɥɶ
ɜɟɪɬɢɤɚɥɶɧɵɯɠɚɥɸɡɢ
ɧɚɫɨɫɨɬɜɨɞɚ
ɤɨɧɞɟɧɫɚɬɚ
ɨɩɰɢɹ
ȼɵɯɨɞɫɢɝɧɚɥɚɚɜɚɪɢɢ
ɍɞɚɥɟɧɧɨɟɜɤɥɸɱɟɧɢɟ
CN33
ALARM
CN23
ON/OFF
5
ɉɥɚɬɚ
ɞɢɫɩɥɟɹ
LZ-UPW4F
ɞɚɬɱɢɤɬɟɦɩɬɪɭɛɵɌ
ɞɚɬɱɢɤɬɟɦɩɜɨɡɞɭɯɚɌ
ɩɨɩɥɚɜɨɤɩɨɦɩɵ
ɞɚɬɱɢɤɬɟɦɩɌȼɨɩɰɢɹ
ɩɥɚ
ɬɚɮɢɥɶ
ɬɪɨɜ
ɱɟɪɧɵɣ
ɤɪɚɫɧɵɣ
ɉɢɬɚɧɢɟ
ɮȼȽɰ
ɛɟ
ɥ
ɵ
ɣ
ɫɢɧɢɣ
ɱɟɪɧɵɣ
ɠɟ
ɥɬɵɣ
ɫɟɪɵɣ
Ʉɧɚɪɭɠɧɨɦɭɛɥɨɤɭ
ɷɤɪɚɧɢɪɨɜɚɧɧɵɣɤɚɛɟɥɶ
Ʉɰɟɧɬɪɚɥɶɧɨɦɭ
ɭɩɪɚɜɥɟɧɢɸ
8
ɉɟɪɟɤɥɸɱɚɬɟɥɢɮɭɧɤɰɢɣ
Ɍ ȿ Ɇ ɉ ɄɈ Ɇ ɉ ȿ ɇ ɋȺ ɐ ɂ ə
S W 6
2
4
6
Ⱥ ȼɌɈɊ ȿ ɋɌȺ ɊɌ
S W 3
ȼ Ʉ Ʌ ɘɑ ɂ Ɍ ɖ
ȼ ɕ Ʉ Ʌ ɘɑ ɂ Ɍ ɖ
ȺȾɊȿɋȺɐɂəȻɅɈɄɈȼ
ɐȿɇɌɊȺɅɖɇɈȽɈɉɍɅɖɌȺ
0 ~ 1 5
S2
+
S1
ON
1 2
ON
1 2
ON
1 2
ON
1 2
3 2 ~ 4 7
1 6 ~ 3 1
4 8 ~ 6 3
S2
+
S1
ON
1 2
ON
1 2
ON
1 2
ON
1 2
ON
ON
24
15
Ɉɫɬɚɧɨɜɤɚɦɨɬɨɪɚ
ɜɟɧɬɢɥɹɬɨɪɚ
SW1
ON
1 2
ON
1 2
ON
1 2
ON
1 2
ɁȺɓɂɌȺɈɌɉɈȾȺɑɂ
ɏɈɅɈȾɇɈȽɈȼɈɁȾɍɏȺ
Ɂ ɚ ɪ ɟɡɟ ɪ ɜ ɢ ɪ ɨ ɜɚ ɧ ɨ
Ɂ ɚ ɜɨɞ ɫ ɤ ɚ ɹ
ɭɫ ɬɚ ɧ ɨ ɜ ɤ ɚ
0
8
4
1 2
3
5
6
7
C
9A
B
D
E
F
0
8
4
1 2
3
5
6
7
C
9A
B
D
E
F
0
8
4
1 2
3
5
6
7
C
9A
B
D
E
F
0
8
4
1 2
3
5
6
7
C
9A
B
D
E
F
ɩɨ
ɭɦɨɥɱɚɧɢɸ
ɩɨ
ɭɦɨɥɱɚɧɢɸ
ɍ ɉ ɊȺ ȼɅ ȿ ɇ ɂ ȿɆ Ɉ ɌɈ ɊɈ Ɇ
ȼ ȿ ɇ Ɍ ɂ Ʌ ə ɌɈ ɊȺɉ Ɋ ɂɈ Ɍ ɋɍ Ɍ ɋɌ ȼ ɂ ɂ
ɉ ɂ ɌȺ ɇ ɂ ə
S W 2
ȼ ȿ ɇ Ɍȼ ɕ Ʉ Ʌ
ȼ ȿ ɇ Ɍȼ Ʉ Ʌ
ON
ON
ɩɨ
ɭɦɨɥɱɚɧɢɸ
Ɋ ȿ ɀ ɂ Ɇȼ ɕ ȻɈ ɊȺɉ Ɋ ɂ Ɉ Ɋ ɂ Ɍ ȿ ɌȺ
S W 5
Ɋ ȿ ɀ ɂ Ɇ
H E AT
ON
1 2
ON
1 2
ON
1 2
ON
1 2
H E AT C O O L C O O L
ɩɨ
ɭɦɨɥɱɚɧɢɸ
CN13
CN3
CN15
5
DC
C N 1
3
M
ɦɨɞɭɥɶɜɟɧɬɢɥɹɬɨɪɚ
ɜɟɧɬɢɥɹɬɨɪ