Кондиционеры Daikin EWAD-TZPLB - инструкция пользователя по применению, эксплуатации и установке на русском языке. Мы надеемся, она поможет вам решить возникшие у вас вопросы при эксплуатации техники.
Если остались вопросы, задайте их в комментариях после инструкции.
"Загружаем инструкцию", означает, что нужно подождать пока файл загрузится и можно будет его читать онлайн. Некоторые инструкции очень большие и время их появления зависит от вашей скорости интернета.

D-EIMAC00907-16EN - 6/20
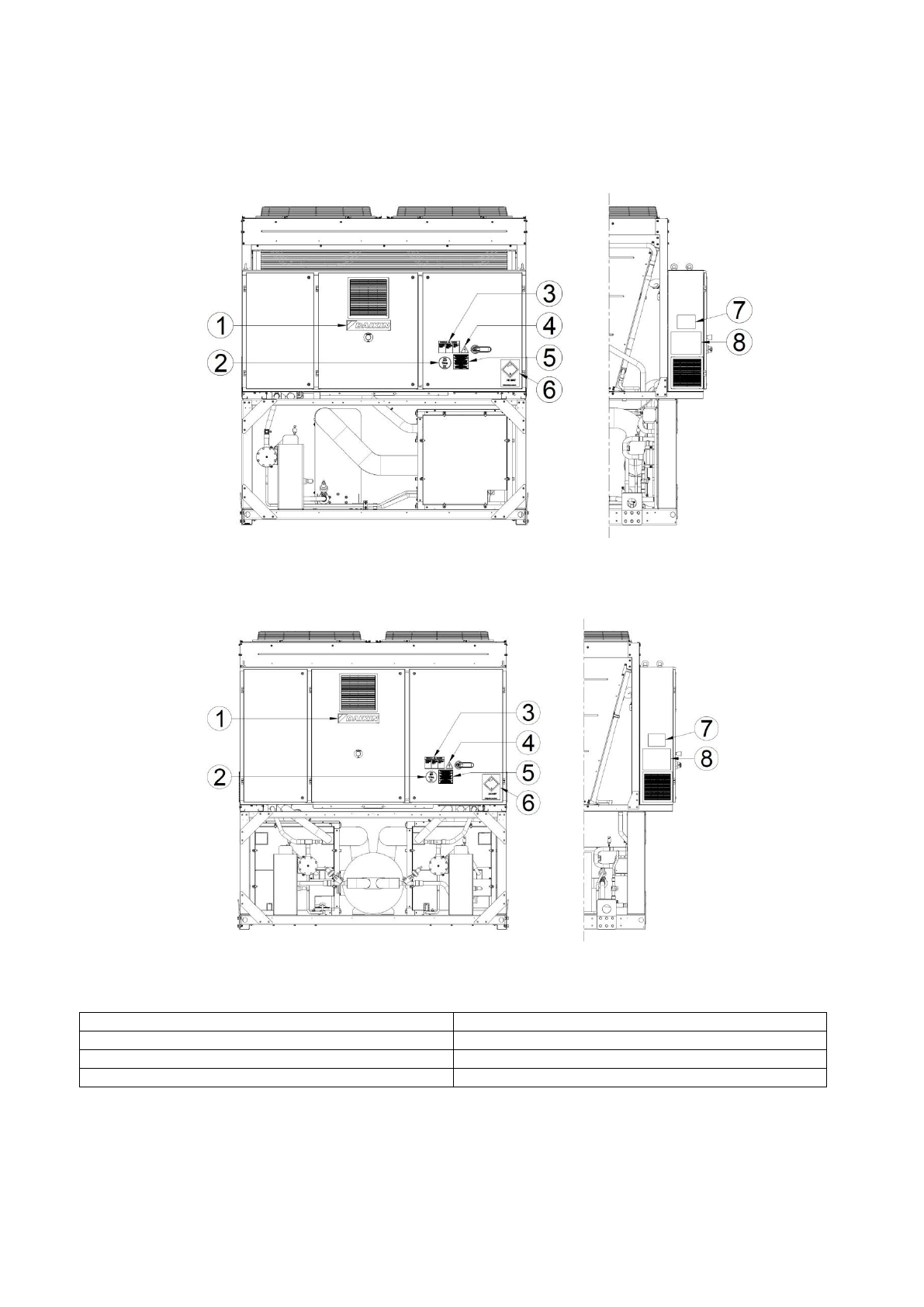
Figure 1 - Description of the labels applied to the electrical panel
Single circuit unit
Double circuits unit
Label Identification
1
– Manufacturer’s logo
5
– Cable tightening warning
2
– Gas type
6
– Non flammable gas symbol
3
– Hazardous Voltage warning
7
– Unit nameplate data
4
– Electrical hazard symbol
8
– Lifting instruction












