Кондиционеры Daikin ARXN-MB - инструкция пользователя по применению, эксплуатации и установке на русском языке. Мы надеемся, она поможет вам решить возникшие у вас вопросы при эксплуатации техники.
Если остались вопросы, задайте их в комментариях после инструкции.
"Загружаем инструкцию", означает, что нужно подождать пока файл загрузится и можно будет его читать онлайн. Некоторые инструкции очень большие и время их появления зависит от вашей скорости интернета.

DIAGRAMME D’INSTALLATION
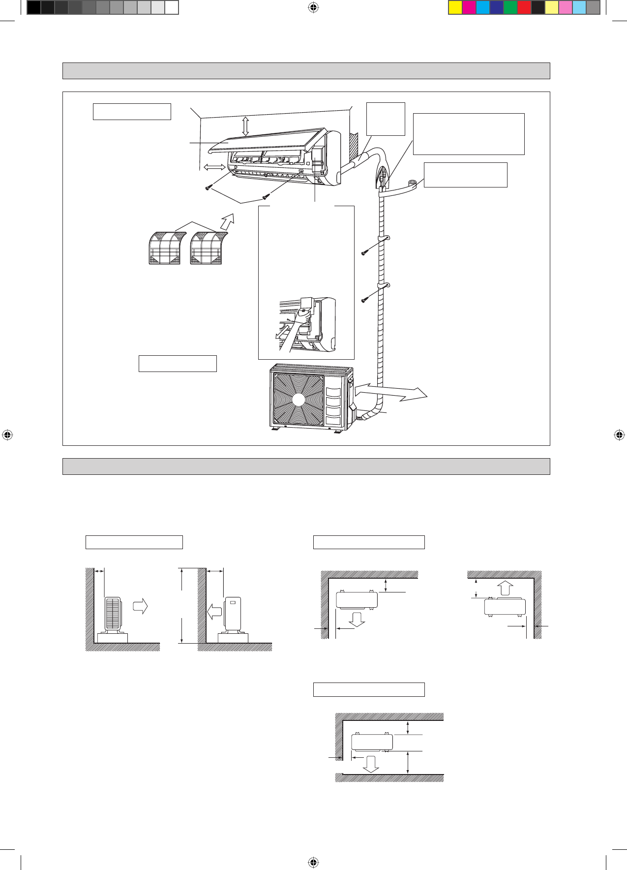
INSTALLATION DE L’UNITÉ EXTÉRIEURE (ARXN25/35MV1B)
5-6
Si un mur ou tout autre obstacle se trouve sur le chemin du jet d’air d’admission ou de rejet de l’unité extérieure, suivre
les directives d’installation ci-dessous.
Pour l’un des modèles ci-dessous d’installation, la hauteur du mur sur le côté échappement doit être d’au moins
1200mm.
•
•
Mur face à deux côtés
Plus de 50
Mur face à un côté
Plus de 100
Plus de 50
Plus de 50
Vue de dessus
Vue latérale
Plus de
100
Plus de 150
Plus de 150
Plus de 300
Plus de 50
Unité : mm
1200 ou
moins
Mur face à trois côtés
Vue de dessus
Unité Intérieure
Filtre à air
M4 x 12L
Panneau avant
30mm ou plus du plafond
Unité Extérieure
50mm ou plus des murs
(des deux côtés)
Trou pour la
tuyauterie
calfaté avec
du mastic.
Coupez le tuyau d’isolation thermique sur
une longueur appropriée et enroulez-la de
ruban en vous assurant qu’aucun espac
en’est laissé à l’endroit de la coupe du
tuyau d’isolation thermique.
Enroulez le tuyau d’isolation
avec la bande de finition du
bas jusqu’en haut.
Couvercle de service
Ouverture du couvercle de
service
Le couvercle de service est de
type à ouverture/fermeture.
Méthode d’ouverture
1) Enlevez les vis du
couvercle de service.
2) Abaissez le couvercle de
service en diagonale dans
le sens de la flèche.
3) Tirez vers le bas.
ó
ó
500mm des murs
5 IM-5WMYJ-1113(0)DK SIESTA_FR.i6 6
5 IM-5WMYJ-1113(0)DK SIESTA_FR.i6 6
1/13/14 5:22:45 PM
1/13/14 5:22:45 PM
Содержание
- 113 Размер
- 114 МЕРЫ ПРЕДОСТОРОЖНОСТИ; РУКОВОДСТВО ПО УСТАНОВКЕ; ПPEДУПPEЖДEHИE
- 116 РИСУНОК УСТАНОВКИ; Наружный блок; Одна сторона обращена к стене
- 117 Прокладка дренажной системы.; Установочные габариты; П р и н а л и ч и и л ю б о г о п р е п я т с т в и я; Ру
- 118 УСТАНОВКА КОМНАТНОГО БЛОКА
- 119 Отвод воды; Прицепите кулачковые захваты нижней рамы к установочной плате.; ОCTOPOЖHO
- 120 ухудшением качества функционирования.; Допустимая длина трубопровода
- 121 Дюйм; ПРОВЕДЕНИЕ ТРУБОПРОВОДОВ ХЛАДАГЕНТА
- 122 ЭЛЕКТРИЧЕСКАЯ СХЕМА СОЕДИНЕНИЙ; прикрепленной к корпусу аппарата.; Прикрепите изоляционный рукав
- 123 Осторожно; Операция заправки
- 124 Операция; ВКЛ; Модуль Охлаждения/Обогревательный Насос; долгий звуковой сигнал; Дополнительная информация; коротких звуковых сигнала
- 125 ВНУТРЕННЯЯ ТЕМПЕРАТУРА (; РАБОЧИЙ ДИАПАЗОН
- 126 СЕРВИС И ТЕХНИЧЕСКОЕ ОБСЛУЖИВАНИЕ; Узлы; ВОЗДУШНЫЙ ФИЛЬТР; Откройте лицевую панель.
- 127 Неисправность; Длительный перерыв в использовании кондиционера
- 133 Importer for Turkey