Кондиционеры Daikin ARXN-MB - инструкция пользователя по применению, эксплуатации и установке на русском языке. Мы надеемся, она поможет вам решить возникшие у вас вопросы при эксплуатации техники.
Если остались вопросы, задайте их в комментариях после инструкции.
"Загружаем инструкцию", означает, что нужно подождать пока файл загрузится и можно будет его читать онлайн. Некоторые инструкции очень большие и время их появления зависит от вашей скорости интернета.

INSTALATIONSDIAGRAMM
3-6
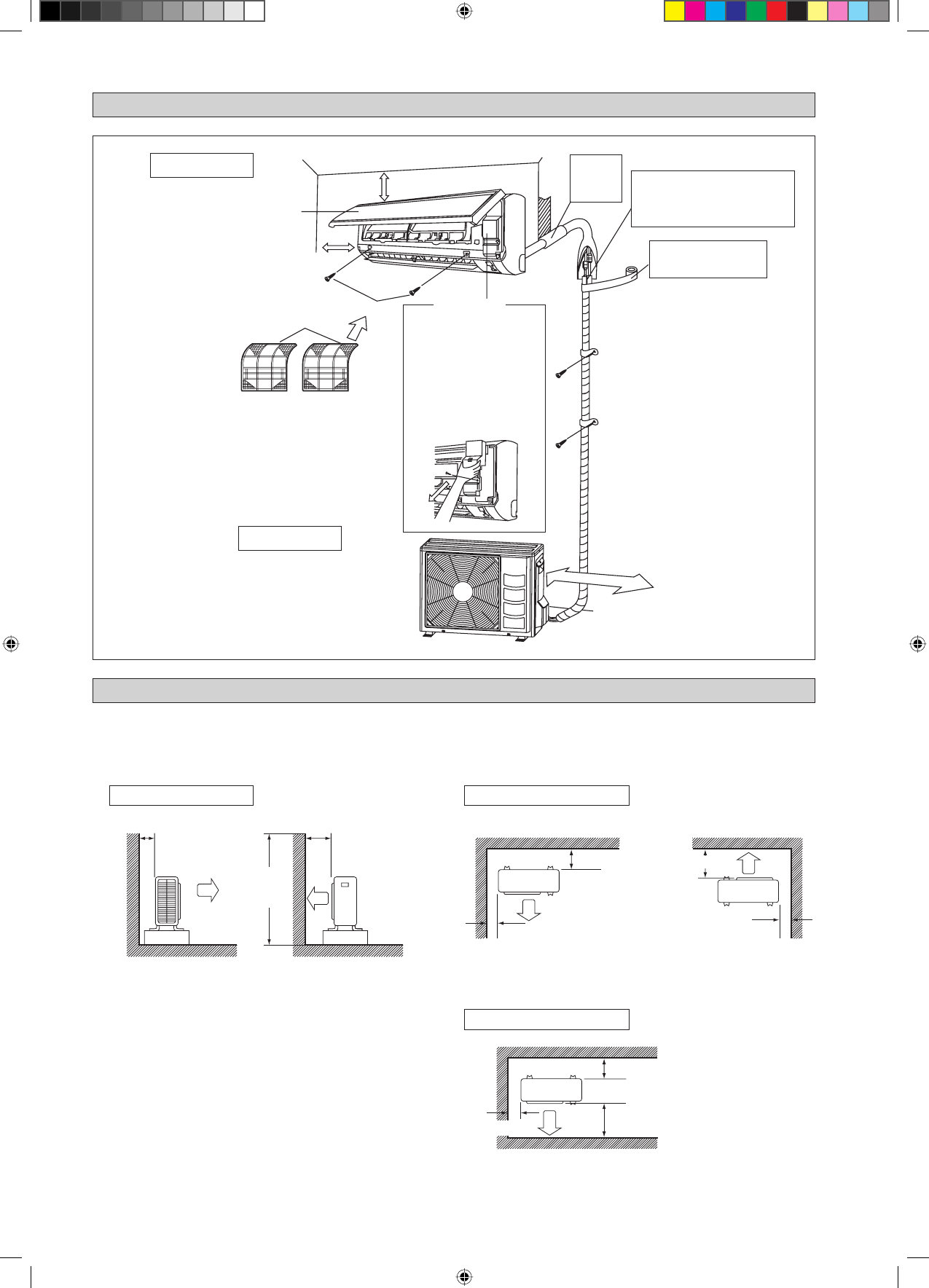
INSTALLATION DES AUßENGERÄTES (ARXN25/35MV1B)
Innen-Gerät
Luftfilter
M4 x 12L
Frontpaneel
30mm oder mehr von der Decke
Außen-Gerät
50mm oder mehr von der Wand
(auf beiden Seiten)
Das
Bohrloch
Mit Kitt
Abdichten.
Wärmeisolierung auf eine angemessene
Länge schneiden und mit Band umwickeln.
Hierbei sicherstellen, daß am Schnitt der
Wärmeisolierung keinSpalt verbleibt.
Die Wärmeisolierung
von unten nach oben mit
Verkleidung Band umwickeln.
Wartungsdeckel
Öffnen des Wartungsdeckels
Der Wartungsdeckel ist vom
Typ offen/geschlossen.
Vorgehensweise zum Öffnen
1) Entfernen Sie die Schrauben
des Wartungsdeckels.
2) Ziehen Sie den
Wartungsdeckel in
Pfeilrichtung diagonal nach
unten heraus.
3) Nach unten ziehen.
ó
ó
500mm von der
Wand
Befolgen Sie nachfolgende Installationshinweise, um zu verhindern, dass eine Wand oder ein anderer Gegenstand den
Ein- oder Auslassstrom des Außengeräts behindert.
Für die unten gezeigten Installationskonfigurationen sollte die Wandhöhe auf der Auslassseite nicht höher als max. 1200mm
sein.
•
•
Wand an zwei Seiten
Über 50
Wand an einer Seite
Über 100
Über 50
Über 50
Draufsicht
Seitenansicht
Über 100
Über 150
Über 150
Über 300
Über 50
Gerät: mm
1200 oder
weniger
Wand an drei Seiten
Draufsicht
3 IM-5WMYJ-1113(0)DK SIESTA_DE.i6 6
3 IM-5WMYJ-1113(0)DK SIESTA_DE.i6 6
1/13/14 5:20:58 PM
1/13/14 5:20:58 PM
Содержание
- 113 Размер
- 114 МЕРЫ ПРЕДОСТОРОЖНОСТИ; РУКОВОДСТВО ПО УСТАНОВКЕ; ПPEДУПPEЖДEHИE
- 116 РИСУНОК УСТАНОВКИ; Наружный блок; Одна сторона обращена к стене
- 117 Прокладка дренажной системы.; Установочные габариты; П р и н а л и ч и и л ю б о г о п р е п я т с т в и я; Ру
- 118 УСТАНОВКА КОМНАТНОГО БЛОКА
- 119 Отвод воды; Прицепите кулачковые захваты нижней рамы к установочной плате.; ОCTOPOЖHO
- 120 ухудшением качества функционирования.; Допустимая длина трубопровода
- 121 Дюйм; ПРОВЕДЕНИЕ ТРУБОПРОВОДОВ ХЛАДАГЕНТА
- 122 ЭЛЕКТРИЧЕСКАЯ СХЕМА СОЕДИНЕНИЙ; прикрепленной к корпусу аппарата.; Прикрепите изоляционный рукав
- 123 Осторожно; Операция заправки
- 124 Операция; ВКЛ; Модуль Охлаждения/Обогревательный Насос; долгий звуковой сигнал; Дополнительная информация; коротких звуковых сигнала
- 125 ВНУТРЕННЯЯ ТЕМПЕРАТУРА (; РАБОЧИЙ ДИАПАЗОН
- 126 СЕРВИС И ТЕХНИЧЕСКОЕ ОБСЛУЖИВАНИЕ; Узлы; ВОЗДУШНЫЙ ФИЛЬТР; Откройте лицевую панель.
- 127 Неисправность; Длительный перерыв в использовании кондиционера
- 133 Importer for Turkey












