Холодильник Samsung RS68N8670SL - инструкция пользователя по применению, эксплуатации и установке на русском языке. Мы надеемся, она поможет вам решить возникшие у вас вопросы при эксплуатации техники.
Если остались вопросы, задайте их в комментариях после инструкции.
"Загружаем инструкцию", означает, что нужно подождать пока файл загрузится и можно будет его читать онлайн. Некоторые инструкции очень большие и время их появления зависит от вашей скорости интернета.

O'zbek
29
O‘rnatish
Oraliq bo'shliqlari
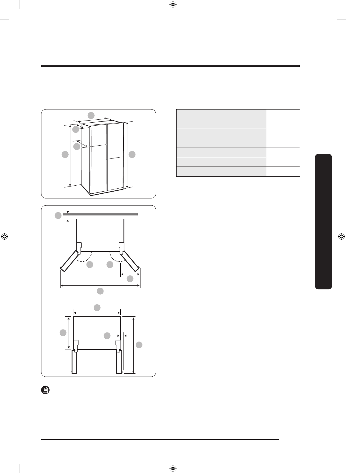
O'rnatish uchun kerakli bo'shliq talablari bo'yicha quyidagi rasm va jadvalga qarang.
A
B
D
C
E
“A” chuqurlik
O‘yiq tutqich turidagi
716
“A” chuqurlik
Dastali tutqich turidagi
772
“B” kengligi
912
“C” balandligi
1747
“D” umumiy balandligi
1780
(o'lchov birligi: mm)
01
02
03
05
06
07
08
09
04
01
50 mm.dan ortiq bo‘lishi tavsiya etiladi
02
165°
03
170°
04
564 mm
05
1726 mm
06
610 mm
07
912 mm
08
29 mm (tutqichsiz)
09
1165 mm
IZOH
O‘lchash usuliga qarab, yuqoridagi jadvalda keltirilgan o‘lchovlar farqlanishi mumkin.
Untitled-17 29
6/28/2019 7:44:41 PM