Холодильник Liebherr CBNb 3913 Comfort - инструкция пользователя по применению, эксплуатации и установке на русском языке. Мы надеемся, она поможет вам решить возникшие у вас вопросы при эксплуатации техники.
Если остались вопросы, задайте их в комментариях после инструкции.
"Загружаем инструкцию", означает, что нужно подождать пока файл загрузится и можно будет его читать онлайн. Некоторые инструкции очень большие и время их появления зависит от вашей скорости интернета.

tive. Misuse of the appliance can result in the stored products
suffering harm or perishing. Furthermore, the appliance is not
suitable for operation in potentially explosive atmospheres.
The appliance is set to operate within specific ambient temper-
ature limits according to its climate rating. The correct climate
rating for your appliance is indicated on the type plate.
Note
u
Compliance with the ambient temperatures indicated is
required, otherwise the cooling performance is reduced.
Climate
rating
for ambient temperatures of
SN
10 °C to 32 °C
N
16 °C to 32 °C
ST
16 °C to 38 °C
T
16 °C to 43 °C
1.3 Conformity
The refrigerant circuit has been tested for leaks. The appliance
complies with current safety regulations and EC directives
2006/95/EC and 2004/108/EC.
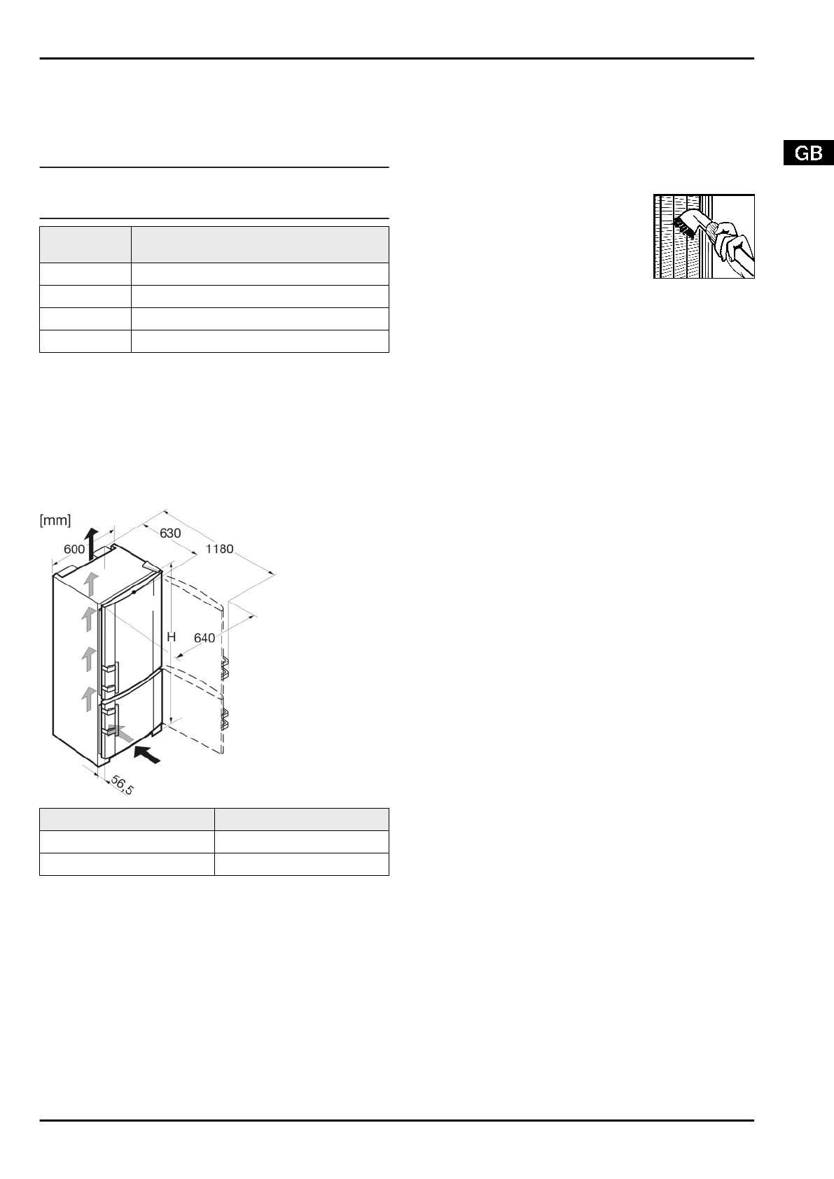
1.4 External dimensions of the appli-
ance
Fig. 2
H (mm)
CBN(esf).. 39..
2011
CBNb.. 39..
2011
1.5 Saving energy
-
Always ensure good ventilation. Do not cover ventilation
openings or grille.
-
Always keep fan louvres clear.
-
Do not place appliance in areas of direct sunlight or next to a
stove, heater or similar object.
-
The energy consumption depends on the installation condi-
tions, e.g. the ambient temperature (see 1.2) .
-
Keep the time the appliance is open to a minimum.
-
The lower the temperature setting, the higher the power
consumption.
-
Store food logically. (see Appliance at a glance).
-
Ensure that all food is well packed and covered for storage.
This will prevent frost from forming.
-
Remove food as needed in order that it does not warm too
much.
-
First cool warm food to room temperature before storing it .
-
Defrost frozen food in the refrigerator.
-
Empty and switch off refrigerating unit for longer vacation
periods.
Accumulated dust increases the energy
consumption:
-
Once a year, dust the refrigerating unit
together with the metal grille of the heat
exchanger at the back of the appliance.
2 General safety information
Danger for the user:
-
This appliance is not designed for persons (including chil-
dren) with physical, sensory or mental impairment or
persons not having sufficient experience and knowledge,
unless they are instructed in the use of the appliance and
are initially supervised by a person responsible for their
safety. Keep children under supervision to ensure they do
not play with the appliance.
-
In case of a fault, pull out the mains plug (not by pulling the
connecting cable) or switch off the fuse.
-
Have any repairs to or intervention in the appliance, and any
change of the mains power cable, carried out by the
customer service only or by other specialised personnel
trained for the purpose.
-
When disconnecting the appliance from the supply, always
take hold of the plug. Do not pull the cable.
-
Install and connect the appliance only as instructed.
-
Please keep these instructions in a safe place and pass
them on to any subsequent owners.
-
Special-purpose lamps (incandescent lamps, LEDs, fluores-
cent tubes) in the appliance serve to illuminate the appliance
interior and are not suited for room illumination.
Fire hazard:
-
The refrigerant R 600a is environmentally friendly but flam-
mable. Escaping refrigerant may ignite.
•
Do not damage the refrigerant circuit pipes.
•
Do not allow naked flames or ignition sources to enter the
appliance.
•
Do not use any electrical appliances in the interior (e.g.
steam cleaners, heaters, ice cream maker etc.).
•
If refrigerant escapes: eliminate naked flames or sources
of ignition from the vicinity. Pull out the power plug. Venti-
late the area well. Notify customer service.
-
Do not store explosives or sprays using combustible propel-
lants such as butane, propane, pentane, etc. in the appli-
ance. Respective spray cans can be identified by reference
to the contents printed on the can or by a flame symbol.
Gases possibly escaping may ignite due to electrical
components.
-
Keep burning candles, lamps and other items with naked
flames away from the appliance so that they do not set the
appliance on fire.
-
Only store high-percentage alcohol in tightly sealed, upright
containers. Alcohol possibly escaping may ignite due to
electrical components.
Danger of tipping and falling:
-
Do not misuse the plinth, drawers, doors etc. as a step or for
support. This applies particularly to children.
Danger of food poisoning:
-
Do not consume food which has been stored too long.
Danger of frostbite, numbness and pain:
General safety information
3
Характеристики
Остались вопросы?Не нашли свой ответ в руководстве или возникли другие проблемы? Задайте свой вопрос в форме ниже с подробным описанием вашей ситуации, чтобы другие люди и специалисты смогли дать на него ответ. Если вы знаете как решить проблему другого человека, пожалуйста, подскажите ему :)