Духовые шкафы Whirlpool AKZM 8640 IX - инструкция пользователя по применению, эксплуатации и установке на русском языке. Мы надеемся, она поможет вам решить возникшие у вас вопросы при эксплуатации техники.
Если остались вопросы, задайте их в комментариях после инструкции.
"Загружаем инструкцию", означает, что нужно подождать пока файл загрузится и можно будет его читать онлайн. Некоторые инструкции очень большие и время их появления зависит от вашей скорости интернета.

RU13
ПОЛЬЗОВАНИЕ ДУХОВКОЙ
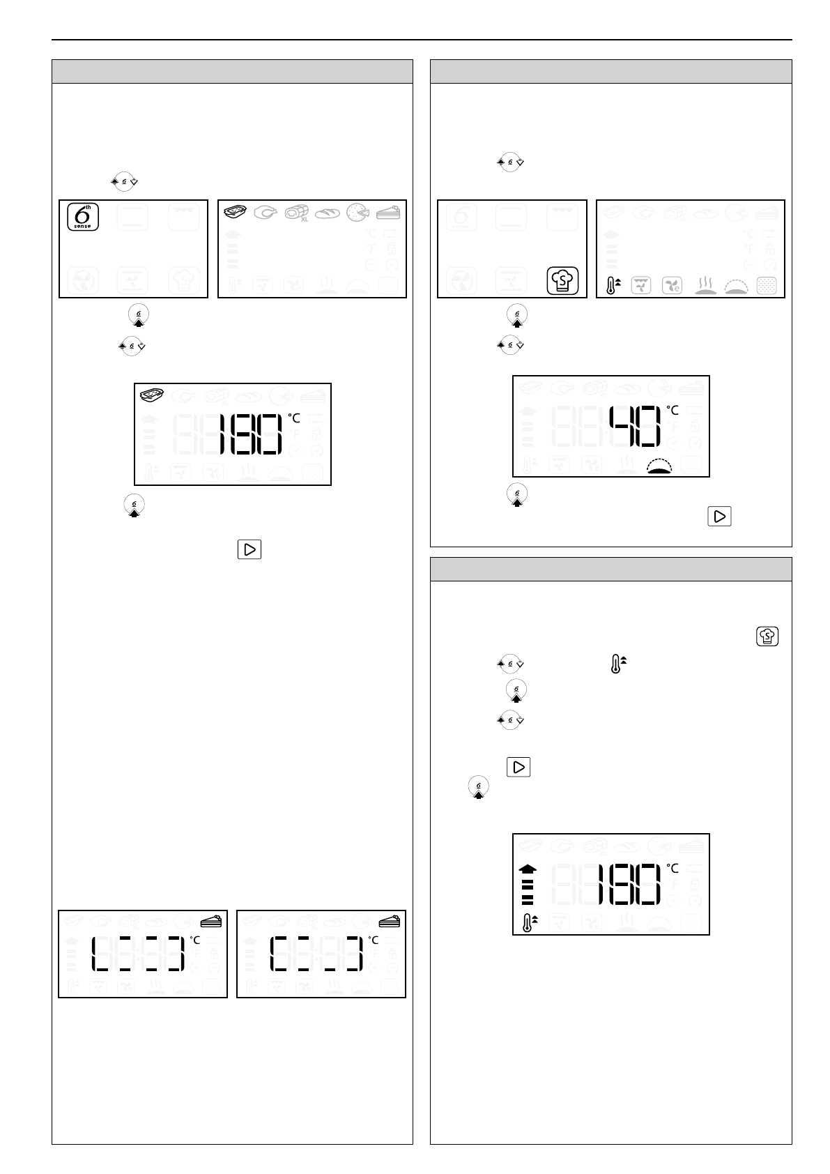
7 РЕЖИМЫ 6
TH
SENSE
Выбор одного из 6 режимов приготовления
с уже заданными параметрами. Полный
перечень и описание режимов представлен
в таблице на странице 17.
Вращая
, выберите семейство режимов 6
th
Sense.
Нажмите
для подтверждения.
Вращая
, выберите желаемый режим из
семейства 6
th
Sense.
Нажмите для подтверждения выбора и
перехода к установке значений длительности/
времени окончания либо
для Быстрого старта.
ПРИМЕЧАНИЕ:
Для всех режимов семейства
6
th
Sense предварительный нагрев духовки не
требуется. В таблице на странице 19
представлены рекомендуемые значения
температуры и длительности приготовления.
ВОССТАНОВЛЕНИЕ ТЕМПЕРАТУРЫ
В РЕЖИМЕ 6
TH
SENSE
Если во время приготовления в режиме 6
th
Sense
температура в духовке снизится по причине
открытия дверцы, функция поддержания
температуры 6
th
Sense автоматически
восстановит исходное значение температуры.
В процессе восстановления температуры
функцией 6
th
Sense на дисплей выводится
анимация “змейка”. Это продолжается до
достижения требуемой температуры.
ПРИМЕЧАНИЕ:
Для цикла приготовления
заданной длительности, в целях обеспечения
надлежащего качества блюда, длительность
увеличивается на то время, в течение
которого была открыта дверца.
8 СПЕЦИАЛЬНЫЕ РЕЖИМЫ
Выбор одного из специальных режимов
приготовления. Полный перечень и описание
режимов представлен в таблице на странице 18.
Вращая
, выберите семейство
специальных режимов.
Нажмите
для подтверждения.
Вращая
, выберите желаемый
специальный режим.
Нажмите
для подтверждения выбора и
перехода к установке значений либо
для Быстрого старта.
8.1 БЫСТРЫЙ ПРОГРЕВ
Ускоренный предварительный нагрев духовки.
См. полное описание на странице 18.
Перейдите к семейству специальных режимов
.
Вращая
, выберите .
Нажмите
для подтверждения.
Вращая
, установите требуемую
температуру.
Нажмите
для запуска быстрого прогрева
или
для установки длительности
последующего цикла приготовления.
В момент достижения духовкой требуемой
температуры подается звуковой сигнал.
Поместите пищу в камеру и закройте дверцу.
При этом автоматически стартует выбранный
цикл приготовления с поддержанием
достигнутой температуры.
Не помещайте пищу в духовку до завершения
быстрого прогрева.
Содержание
- 7 РУССКИЙ; НАГРЕВАТЕЛЬНОГО ЭЛЕМЕНТА
- 8 ВАЖНЫЕ УКАЗАНИЯ ПО БЕЗОПАСНОСТИ; ВАША БЕЗОПАСНОСТЬ И БЕЗОПАСНОСТЬ ДРУГИХ ЛЮДЕЙ ОЧЕНЬ; РЕКОМЕНДАЦИИ ПО БЕЗОПАСНОСТИ
- 12 УСТАНОВКА
- 13 ПОЛЬЗОВАНИЕ ДУХОВКОЙ; ПРИБОР; (число уровней для полок; ПРИНАДЛЕЖНОСТИ
- 15 ОПИСАНИЕ ПАНЕЛИ УПРАВЛЕНИЯ; РУЧКА И СЕНСОРНЫЕ КНОПКИ; Представленное изображение может
- 20 ПРЕДУПРЕЖДЕНИЕ
- 22 Блокировка кнопок панели управления.
- 23 ТАБЛИЦА РЕЖИМОВ; Тр
- 24 Специа
- 25 ТАБЛИЦА ПРИГОТОВЛЕНИЯ БЛЮД
- 29 РЕКОМЕНДАЦИИ ПО ИСПОЛЬЗОВАНИЮ И ПОЛЕЗНЫЕ СОВЕТЫ
- 30 ЧИСТКА; Во время пиролитической
- 31 ТЕХОБСЛУЖИВАНИЕ
- 32 В случае необходимости