Carrier FB4B- Инструкция по эксплуатации

Carrier FB4B

Carrier FB4B- инструкция пользователя по применению, эксплуатации и установке на русском языке. Мы надеемся, она поможет вам решить возникшие у вас вопросы при эксплуатации техники.

Если остались дополнительные вопросы — свяжитесь с нами через контактную форму.

1 Страница 1
2 Страница 2
3 Страница 3
4 Страница 4
5 Страница 5
6 Страница 6
7 Страница 7
8 Страница 8
9 Страница 9
10 Страница 10
11 Страница 11
12 Страница 12
13 Страница 13
14 Страница 14
15 Страница 15
16 Страница 16
17 Страница 17
18 Страница 18
19 Страница 19
20 Страница 20
Страница: / 20

Содержание:

  • Страница 2 – Характеристики FB4B; Обозначения моделей фанкойлов
  • Страница 5 – Подключение агрегата:
  • Страница 6 – Технические характеристики
  • Страница 7 – Производительность
  • Страница 10 – Обозначения в таблице на следующей странице:
  • Страница 13 – Дополнительное оборудование Carrier; Описание аксессуаров и их использование
  • Страница 14 – Аксессуары для электронагревателей
  • Страница 16 – Мощность звука, создаваемого фанкойлами FB4B*
  • Страница 17 – Переводные коэффициенты; Применение
Загрузка инструкции

Руководство по установке, запуску и обслуживанию

внутреннего блока канального кондиционера

FB4B (50 Гц)

Модели: 018 - 070

Гарантии качества

FB4B - лучшее в технологии
обработки воздуха.

Фанкойлы FB4B - лучшие внутренние блоки
для канальных кондиционеров из-за
их эффективности, гибкости применения,
простоты монтажа и высокой
производительности.

Фанкойлы FB4B - моноблочные агрегаты
в корпусе, предназначенные для вертикальной
установки (поток направлен вверх или вниз).
Установка с направленным вниз потоком
требует дополнительного адаптера,
поставляемого отдельно. Модели 042, 048, 060
и 070 имеют также “модульную” модификацию
для установки при недостатке свободного
места.

Фанкойлы FB4B компактны, допускают монтаж
в различных положениях (в том числе
и горизонтальный). Вы можете установить
их в любом месте, где это потребуется.

Прочный корпус из окрашенного металла
и современные надежные комплектующие
внутри него гарантируют, что агрегат будет
безотказно работать долгие годы.

Теплообменник фанкойла состоит из медных
труб с желобками и волнистого алюминиевого
оребрения. Каждый агрегат снабжен удобными
устройствами управления.

Прибор AccuRater® ведет точный учет и
контроль количества хладагента, увеличивая
надежность и производительность работы
агрегата. К устройству AccuRater® обеспечен
простой доступ для замены поршня и текущего
обслуживания.

Компания Carrier разработала фанкойлы FB4B
с принудительной циркуляцией хладагента и
высокоэффективной изоляцией. Соединения
труб в фанкойлах FB4B обеспечивают полное
отсутствие утечек.

Трехскоростной двигатель обеспечивает
прекрасную гибкость в эксплуатации.
Для дополнительного нагрева можно установить
электронагреватели мощностью до 20 кВт.

Компактный, эстетичный, простой
в обслуживании, легко монтируемый,
универсальный блок FB4B - оптимальный
вариант как для установщиков, так и для
пользователей...

Очень легко понять причину этого выбора.

"Загрузка инструкции" означает, что нужно подождать пока файл загрузится и можно будет его читать онлайн. Некоторые инструкции очень большие и время их появления зависит от вашей скорости интернета.

Краткое содержание

Страница 2 - Характеристики FB4B; Обозначения моделей фанкойлов

2 Характеристики FB4B • 9 моделей — 6 типоразмеров моноблочной конструкции мощностью 6–18.0 кВт, и 3 типоразмера модульной конструкции мощностью 14 - 18.0 кВт. • Все модели допускают установку в нескольких положениях - с потоком, направленным вверх, вниз или горизонтально. • Уникальная конструкция к...

Страница 5 - Подключение агрегата:

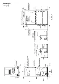
5 Размеры Модель 018, 024 030 036 042 048 048(мод.) 060 070 Тип теплообменника наклонный наклонный наклонный наклонный А А А А Размеры: А, дюймов 42-11/16 47-11/16 49-5/8 53-7/16 49-5/8 53-7/16 53-7/16 59-3/16 мм 1084,3 1211,5 1260,5 1357,3 1260,5 1357,3 1357,3 1503,4 B, дюймов 14-5/16 17-5/8 17-5/8...

Страница 6 - Технические характеристики

6 Технические характеристики Модель 018 024 030 036 042 048 060 070 Номинальная мощность (*) 1.5 (6.4) 2.0 (8.2) 2.5 (10.2) 3.0 (12.3) 3.5 (14.1) 4.0 (17.3) 5.0 (17.6) 5.0 (17.6) Вес, кг 44 51 55 58 67 72 80 92 Габаритные размеры (вертикальная версия):Высота, мм 1084 1084 1212 1261 1357 1261 1357 15...

Характеристики

Другие модели - Carrier

Все другое Carrier