Страница 3 - Puron®; ВНИМАНИЕ; Puron
3 УКАЗАНИЯ ПО УСТАНОВКЕ Замена / модернизация – R22 на Puron® ( с переходом на другой хладагент ) При замене / модернизации установок требуется замена наружного блока , дозирующего устройства и фильтра - осушителя . Рекомендуется также замена внутреннего змеевика ( испарителя ) и соединительных труб...
Страница 4 - Рис
4 Стандарт - ный вес Угол A Угол B Угол C Угол D Центр тяжести . Размеры по осям , мм Высота блока БЛОК Кг кг кг кг кг X Y Z H 38AUZ*07 149 58 31 28 32 533,4 482,6 330,2 1076,0 38AUZ*08 160 63 33 29 35 482,6 584,2 330,2 1076,0 38AUD*12 226 88 50 38 56 508,0 584,2 381,0 1279,2 38AUD*14 229 86 40 34 6...
Страница 5 - ODS –
5 Таблица 1B — Физические характеристики — блока 38AUZ*07-08— 50 Гц СИ ТИПОРАЗМЕР БЛОКА 38AU Z*07 Z*08 НОМИНАЛЬНАЯ МОЩНОСТЬ ( кВт ) 21,1 26,4 РАБОЧАЯ МАССА ( кг ) При алюминиевом оребрении змеевиков 149 | 160 ТИП ХЛАДАГЕНТА * Рабочая заправка , стандартная ( кг ) Транспортная заправка ( кг ) 4,1 2,0...
Страница 8 - УСТАНОВКА
8 Соответствие моделей 38AU и теплообменника испарителя Модель 38AUZ – это одноконтурный блок , для которого требуется один комплект трубок для циркуляции хладагента , Эту модель можно подключать к одно - или двухконтурному испарительному теплообменнику ( объединяя штуцеры испарителя в единую систем...
Страница 10 - Street
10 Такелаж – данные блоки предназначены для верхнего такелажа . Предпочтительный способ такелажа указан на специальной табличке . Если на блоке остается верхняя решетка , то распорки не требуются . В момент монтажа все панели должны находиться на месте . В качестве дополнительной защиты для поверхно...
Страница 14 - Рисунок
14 ИЗОЛЯЦИЯ всасывающего трубопровода – установите пористый теплоизолирующий материал для труб на трубопровод всасывания между штуцером теплообменником испарителя и сервисным клапаном всасывания блока AU38. БАЙПАС ГОРЯЧЕГО ГАЗА – Перепуск горячего газа , если он применяется , должен иметь вход до ис...
Страница 16 - LLSV; SAE 1⁄4
16 Таблица 9. Номера по каталогу -- специальные устройства для работы с хладагентом Диаметр магистрали жидкостной линии , дюймов Электромагнитный клапан жидкостной линии (LLSV) Катушка LLSV Смотровое стекло Фильтр - осушитель 3/8 ALC-066208 AMG-24/50-60 HMI-1TT3 ½ ALC-066209 AMG-24/50-60 HMI-1TT4 5/...
Страница 21 - АЛЮМИНИЕВЫЙ
21 Блоки , не имеющие заводского выключателя — При установке блока необходимо установить также выключатель ( рубильник ), рассчитанный на достаточную мощность в соответствии с Правилами устройства электроустановок . Требуемая мощность выключателя приведена на табличке с идентификационными данными . ...
Страница 25 - Термостат; Carrier
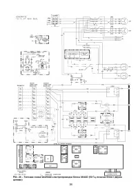
25 Остальные соединения цепи управления системы отличаются в соответствии с конкретными конструктивными деталями внутренней секции ( блок подготовки воздуха или агрегатированный вентиляторный конвектор ). На Рис . 15 (38AUZ) и 16 (38AUD) изображены стандартные соединения с вентиляторным конвектором ...
Страница 27 - TRAN1; Таблица; RLA
27 Рис . 16 – Типовые соединения удаленного термостата – 38AUD Примечание 1: Стандартная многофункциональная маркировка . Для выбора Y2 следуйте указаниям производителя по настройке конфигурации . Примечание 2: Подключайте только в том случае , если для термостата нужен источник питания переменного ...
Страница 28 - NEC
28 Z*08 400-3-50 380 420 12.2 101 270 0.7 2 16.7 25 19.0 30 Таблица 12 – Электрические характеристики – 38AUD*12-14 Блоки 60 Гц Номинальное напряжение Диапазон напряжений ‡ Компрессор 1 Компрессор 2 Электродвигатели наружных вентиляторов (ea) Без запитанной электрической розетки С запитанной электри...
Страница 30 - Copeland
30 Если не прошло время после завершения этапа предварительной заправки , необходимо подождать 24 часа . Предварительные проверки 1. Убедитесь , что параметры источника электропитания соответствуют данным , указанным на паспортной табличке блока . 2. Убедитесь , что подогреватель картера компрессора...
Страница 31 - ASTP
31 Рис . 17 – Этикетка , указывающая на наличие усовершенствованной тепловой защиты спирали * Компрессия может прекратиться при работающем двигателе Отключите компрессор для остывания Для этого может потребоваться время более 1 часа * Интервалы времени являются приблизительными . ПРИМЕЧАНИЕ : Время ...
Страница 36 - FIOP
36 Надписи на схеме : Выключатель Рабочее питание Черный Желтый Голубой Белый FIOP Незапитанная электрическая розетка Красный Регулирование скорости Температурный датчик змеевика Примечания : 1. Подключения должны выполняться согласно местным правилам Вторичная обмотка 120 В Зеленый - желтый Нагрузк...
Страница 41 - Schrader
41 Компрессорное масло - ВНИМАНИЕ ОПАСНОСТЬ ПОВРЕЖДЕНИЯ ОБОРУДОВАНИЯ Несоблюдение данного предупреждения может приводить к повреждению оборудования . В компрессорах , входящих в состав систем , работающих на хладагенте Puron, применяется полиолэфирное масло . Это масло исключительно гигроскопично , ...
Страница 42 - RCD; CoreMax
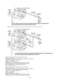
42 Заводские отверстия доступа на участке максимального расхода В системе имеются два дополнительных штуцера доступа – на всасывающей трубе между компрессором и клапаном обслуживания всасывающей линии , и на жидкостной трубе вблизи клапана обслуживания жидкостной линии ( см . Рис . 28 и 30). Это два...
Страница 43 - Вход
43 Модуль диагностики и устранения неисправностей Модуль диагностики и устранения неисправностей (CADM) отслеживает и анализирует данные , получаемые от компрессора Copeland Scroll®, а также командный сигнал термостата . Кроме того , модуль CADM обеспечивает 3- минутную временную задержку от цикличн...
Страница 46 - CADM
46 Повреждена обмотка электродвигателя компрессора Пропала одна фаза в сетевом питании Желтый светодиодный индикатор « ТРЕВОГА », код мигания 7 Перепутана последовательность фаз БЛОКИРОВКА 1. Компрессор вращается в обратную сторону . Желтый светодиодный индикатор « ТРЕВОГА », код мигания 8 Приварива...
Страница 51 - Motormaster
51 Рис . 30 – Стандартное исполнение -- вид изнутри , двухконтурный блок ( показана модель 38AUD*14) Очистка и техническое обслуживание змеевика конденсатора NOVATION™ - Для очистки теплообменника конденсатора NOVATION не допускается использование химических веществ ; в качестве моющего средства доп...
Страница 52 - NOVATION; Replacement Components Division.
52 Рис . 31 – Откиньте и закрепите верхнюю крышку 3. Осторожно удалите все посторонние предметы и мусор , налипшие на поверхность змеевика или скопившиеся в каркасе или в кронштейнах . 4. Прежде чем промыть змеевик , при помощи высоконапорного водораспылителя удалите мыло или промышленные чистящие с...
Страница 56 - ПРИЛОЖЕНИЕ
56 2. Шум при работе компрессора . 2. В случае износа подшипников замените компрессор . ПОТЕРЯ МАСЛА В КОМПРЕССОРЕ 1. Утечка в системе . 1. Устраните утечку . 2. Во время отключения компрессора подогреватели картера обесточиваются . 2. Проверьте электропроводку и реле . Проверьте обогреватель , если...
Страница 57 - MOTORMASTER
57 • Соблюдайте все предупреждения , предостережения , а также указания , набранные жирным шрифтом . • Все тепловые насосы для Puron® должны быть оборудованы внутренним TXV. • Не допускайте , чтобы фильтры - осушители всасывающей линии с Puron® оставались на месте более 72 часов . ПРИЛОЖЕНИЕ B ЭЛЕКТ...